Mill Lane, Petersfield, Hampshire, GU32 2AJ
By Pattinson Estate Agents
£ 330,000
Reviews
2 out of 5 stars
Pattinson Estate Agents says ..
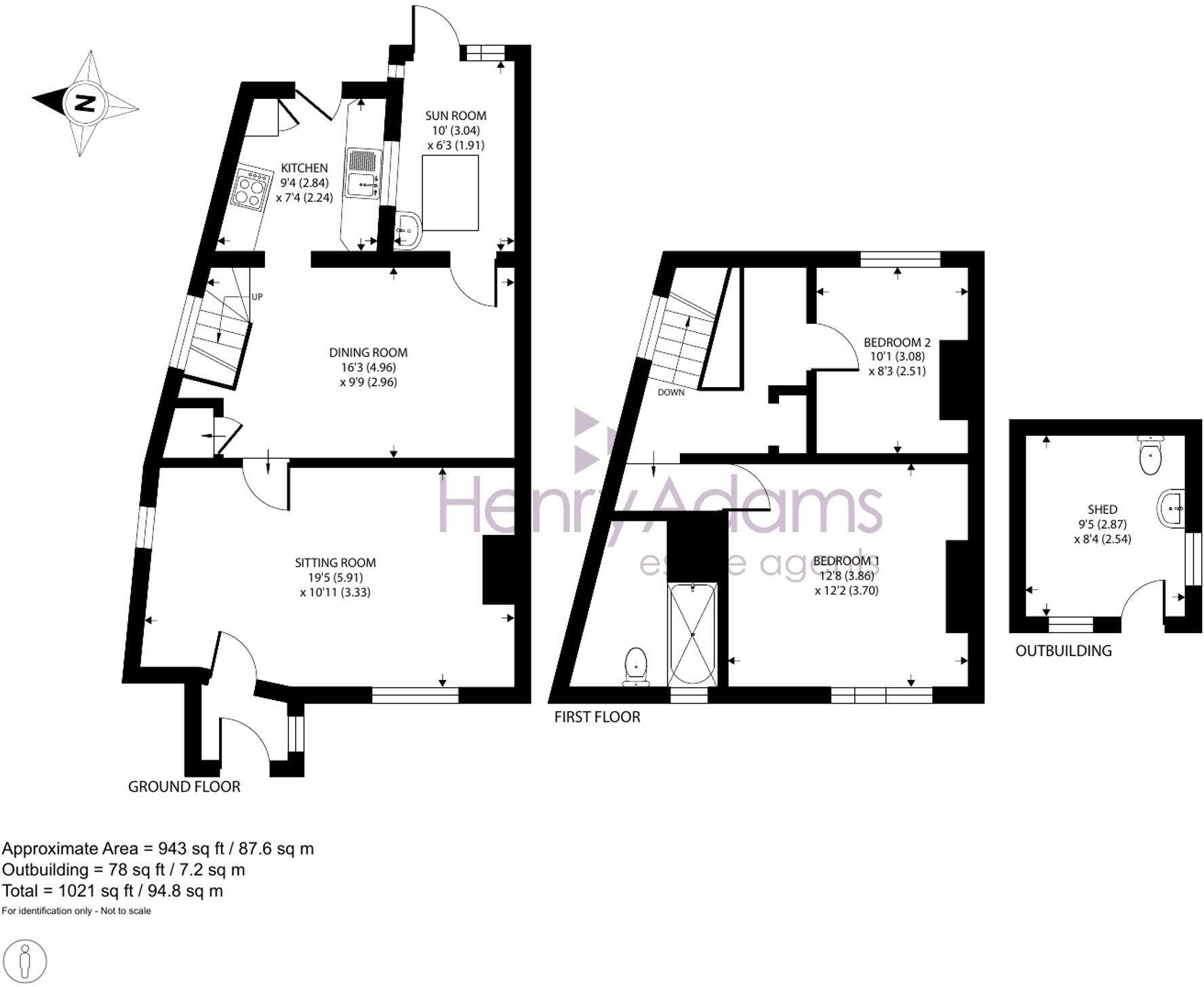
Nestled in the heart of a popular village location, this character cottage exudes charm and potential. Boasting two double bedrooms, this property offers the perfect canvas for those looking to stamp their own mark and create their dream home. With a brick outbuilding for added storage and a conv...
Property Oracle says ..
This end-of-terrace property in Petersfield, Hampshire, presents a unique opportunity. While it benefits from a desirable location with proximity to schools and transport links, it requires significant renovation. The property includes a garden with a shed, adding to its appeal. The price is slightly above the local average, reflecting the potential of the location but also the need for investment in the property’s condition.
Therefore, we give this property 5 / 10. *Disclaimer: This is our option and does constitute a recommendation or financial advice. Do your own research. *
- Price
- 6
- Condition
- 4
- Location
- 7
- Land
- 6
- Bedrooms
- 2
- Bathrooms
- 1
The heatmap indicates the level of crime in the area. The color of the heatmap indicates the crime severity and recency.
Metrics Year-on-Year
- Average area value
- 317,500.00 £Increased by 26.46 %
- Average area rental value
- 900.00 £/moDecreased by 13.71 %
- Est rental Yield
- 3.40 %Decreased by 31.86 %
- Crime Rate
- 8.00 %Unchanged by 0.00 %
Agent Activity
Pattinson Estate Agents created the listing.
Nearby Schools
| Name | Type | Ofsted | Distance |
|---|---|---|---|
| Sheet Primary School | Community School | Good | 0.68 KM |
| Herne Junior School | Community School | Good | 1.21 KM |
| Churcher'S College | Other Independent School | 1.29 KM | |
| Heath Children'S Centre | Children's Centre | 2.33 KM | |
| Steep Church Of England Voluntary Controlled Primary School | Voluntary Controlled School | Good | 2.43 KM |
Images
Nearby Streets
| Name | Average Price | Average Sqft | Distance |
|---|---|---|---|
| Long Road | £ 0 | 0 | 0.00 KM |
| Sandy Lane | £ 0 | 0 | 0.00 KM |
| Britannia Street | £ 0 | 0 | 0.00 KM |
| Love Lane | £ 0 | 0 | 0.00 KM |
| Nine Acres | £ 0 | 0 | 0.00 KM |
Nearby Transport
| Name | NLC | TLC | Distance |
|---|---|---|---|
| Petersfield | 5657 | PTR | 2.76 KM |
| Liss | 5635 | LIS | 4.16 KM |
Nearby Listings
| Address | Price | Type | Score | Distance |
|---|---|---|---|---|
| Mill Lane, Petersfield, Hampshire, GU32 2AJ | £ 330,000 | BUY | 5 / 10 | 0.00 KM |
| Mill Lane, Petersfield, GU32 | £ 330,000 | BUY | 6 / 10 | 0.13 KM |
| Mill Lane, Petersfield, GU32 | £ 400,000 | BUY | Unknown | 0.13 KM |
| Village Street, Sheet, Hampshire | £ 375,000 | BUY | 7 / 10 | 0.21 KM |
| Village Street, Petersfield, Hampshire, GU32 | £ 250,000 | BUY | 7 / 10 | 0.21 KM |
Nearby Properties
| Address | Price | Distance |
|---|---|---|
| 32 Mill Lane | £ 269,000 | 0.13 KM |
| 13 Mill Lane | £ 340,000 | 0.13 KM |
| Bridge Mill | £ 1,300,000 | 0.13 KM |
| Bluebell Cottage | £ 327,500 | 0.13 KM |
| Laundry Cottage | £ 480,000 | 0.13 KM |