RE
Filbert Street East, Leicester
By Readings Property Group
£ 290,000
Reviews
3 out of 5 stars
Readings Property Group says ..
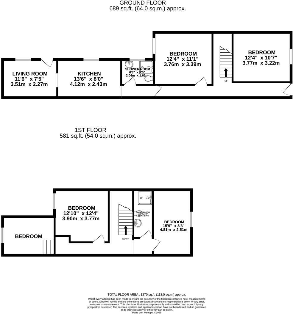
An excellent opportunity to purchase a well maintained and designed licenced HMO in the article 4 area. Offered Close ot LRI teaching hospital, DMU and Leicester University. Offering 5 bedrooms, a communal kitchen, lounge and two shower rooms. Currently let on a Joint tenancy. Term: 1/9/25 to 3...
Property Oracle says ..
Therefore, we give this property 6 / 10. *Disclaimer: This is our option and does constitute a recommendation or financial advice. Do your own research. *
- Price
- 7
- Condition
- 6
- Location
- 7
- Land
- 5
- Bedrooms
- 5
- Bathrooms
- 2
- Sqft (est)
- 788.96
The heatmap indicates the level of crime in the area. The color of the heatmap indicates the crime severity and recency.
Metrics Year-on-Year
- Average area value
- 430,000.00 £Decreased by 17.39 %
- Est sale value
- 382,645.60 £Increased by 23.41 %
- Average area rental value
- 1,715.00 £/moIncreased by 5.67 %
- Est letting value
- 788.96 £/moUnchanged by 0.00 %
- Est rental Yield
- 4.79 %Increased by 28.07 %
- Crime Rate
- 1.00 %Unchanged by 0.00 %
from 520,527.00 £
from 310,061.28 £
from 1,623.00 £/mo
from 788.96 £/mo
from 3.74 %
from 1.00 %
Agent Activity
Readings Property Group created the listing.
Nearby Schools
| Name | Type | Ofsted | Distance |
|---|---|---|---|
| Hazel Community Primary School | Community School | Good | 0.21 KM |
| Leicester College | Further Education | Good | 0.29 KM |
| The Children'S Hospital School | Foundation Special School | Outstanding | 0.41 KM |
| De Montfort University | Higher Education Institutions | Good | 0.95 KM |
| Beauchamp City Sixth Form | Free Schools 16 To 19 | 1.13 KM |
Images
Nearby Streets
| Name | Average Price | Average Sqft | Distance |
|---|---|---|---|
| Almond Road | £ 0 | 0 | 0.00 KM |
| Infirmary Square | £ 0 | 0 | 0.00 KM |
| Winifred Street | £ 0 | 0 | 0.00 KM |
| Pelham Way | £ 0 | 0 | 0.00 KM |
| Corah Street | £ 75,000 | 0 | 0.00 KM |
Nearby Transport
| Name | NLC | TLC | Distance |
|---|---|---|---|
| Leicester | 1947 | LEI | 1.39 KM |
| South Wigston | 1949 | SWS | 4.67 KM |
| Narborough | 1881 | NBR | 9.54 KM |
| Syston | 1900 | SYS | 9.76 KM |
Nearby Listings
| Address | Price | Type | Score | Distance |
|---|---|---|---|---|
| Filbert Street East, Leicester | £ 290,000 | BUY | 6 / 10 | 0.00 KM |
| 1A Filbert Street East, Leicester, Leicestershire, LE2 7JG | £ 150,000 | BUY | 5 / 10 | 0.00 KM |
| Hazel Street, Bede Island, Leicester | £ 210,000 | BUY | Unknown | 0.13 KM |
| Martindale Close, Leicester, Leicestershire, LE2 | £ 249,000 | BUY | 5 / 10 | 0.22 KM |
| Brazil Street, Leicester | £ 290,000 | BUY | 6 / 10 | 0.22 KM |
Nearby Properties
| Address | Price | Distance |
|---|---|---|
| 23 Filbert Street East | £ 28,500 | 0.00 KM |
| 1a Filbert Street East | £ 128,000 | 0.00 KM |
| 13 Filbert Street East | £ 43,000 | 0.00 KM |
| 19 Filbert Street East | £ 120,000 | 0.00 KM |
| 27 Filbert Street East | £ 89,500 | 0.00 KM |