TYNINGS says ..
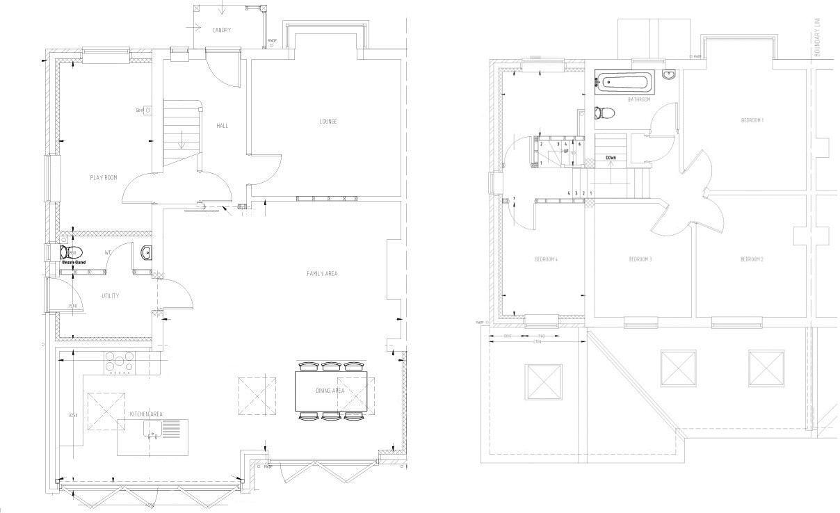
A three bedroom semi-detached family home with approved planning permission to fully extend. The proposed works would then provide five bedrooms with modern open-plan living accommodation. Highly desired residential square with 120' garden backing onto woodland.
Property Oracle says ..
Therefore, we give this property 6 / 10. *Disclaimer: This is our option and does constitute a recommendation or financial advice. Do your own research. *
- Price
- 8
- Condition
- 4
- Location
- 7
- Land
- 7
- Bedrooms
- 3
- Bathrooms
- 1
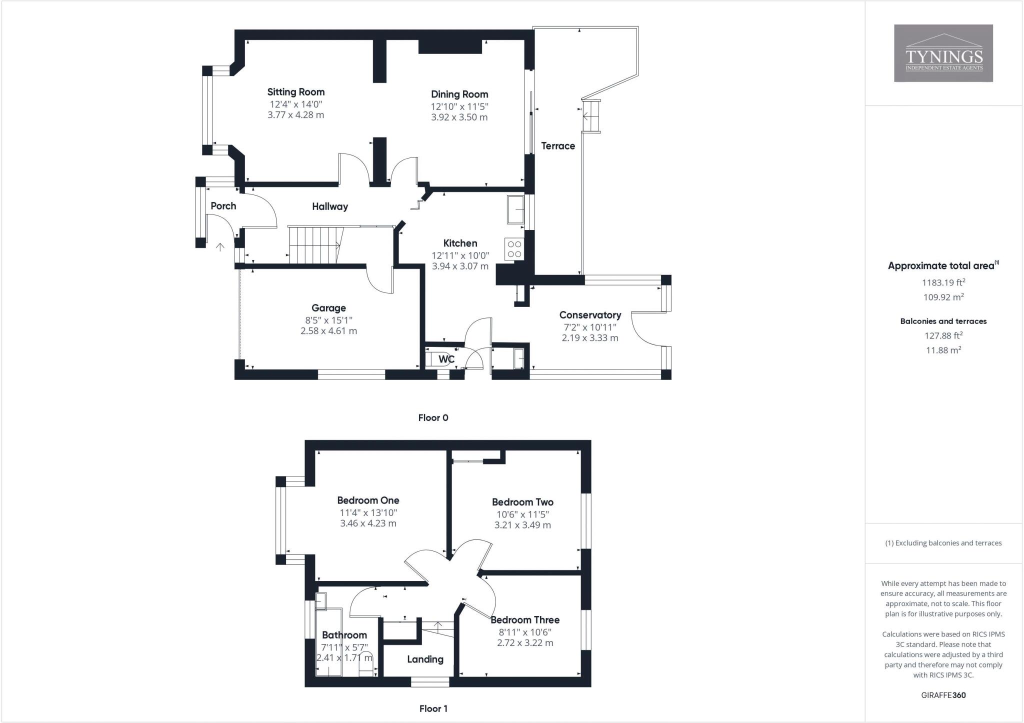
- Sqft (est)
- 1,183.17
The heatmap indicates the level of crime in the area. The color of the heatmap indicates the crime severity and recency.
Metrics Year-on-Year
- Average area value
- 812,500.00 £Increased by 46.80 %
- Est sale value
- 637,728.63 £Increased by 8.67 %
- Average area rental value
- 1,223.00 £/moDecreased by 43.04 %
- Est letting value
- 0.00 £/moDecreased by 100.00 %
- Est rental Yield
- 1.81 %Decreased by 61.08 %
- Crime Rate
- 0.00 %
from 553,478.00 £
from 586,852.32 £
from 2,147.00 £/mo
from 1,183.17 £/mo
from 4.65 %
from 0.00 %
Agent Activity
TYNINGS created the listing.
Nearby Schools
| Name | Type | Ofsted | Distance |
|---|---|---|---|
| Three Ways School | Academy Special Converter | Outstanding | 0.62 KM |
| Aspire Academy | Academy Special Sponsor Led | Good | 0.62 KM |
| St Martins Garden Children'S Centre | Children's Centre | 0.76 KM | |
| St Martin'S Garden Primary School | Academy Sponsor Led | Requires improvement | 0.92 KM |
| Moorlands Junior School | Academy Converter | Good | 1.42 KM |
Images
Nearby Streets
| Name | Average Price | Average Sqft | Distance |
|---|---|---|---|
| Quarry Close | £ 0 | 0 | 0.00 KM |
| Wellsway | £ 0 | 0 | 0.00 KM |
| Ivy Bank Park | £ 0 | 0 | 0.00 KM |
| Frome Road | £ 1,250,000 | 0 | 0.00 KM |
| Oakhill Drive | £ 0 | 0 | 0.00 KM |
Nearby Transport
| Name | NLC | TLC | Distance |
|---|---|---|---|
| Bath Spa | 3271 | BTH | 2.26 KM |
| Oldfield Park | 3219 | OLF | 2.55 KM |
| Freshford | 3344 | FFD | 7.64 KM |
| Avoncliff | 3265 | AVF | 9.81 KM |
Nearby Listings
| Address | Price | Type | Score | Distance |
|---|---|---|---|---|
| Hansford Square, Combe Down, Bath | £ 600,000 | BUY | 6 / 10 | 0.00 KM |
| Hansford Square, Bath, Somerset, BA2 | £ 600,000 | BUY | 6 / 10 | 0.12 KM |
| Hansford Square, Bath, Somerset, BA2 | £ 800,000 | BUY | 6 / 10 | 0.13 KM |
| Hansford Close, Bath, Somerset, BA2 | £ 525,000 | BUY | 6 / 10 | 0.24 KM |
| Quarry Close, Bath, Somerset, BA2 | £ 725,000 | BUY | 7 / 10 | 0.26 KM |
Nearby Properties
| Address | Price | Distance |
|---|---|---|
| 64 Hansford Square | £ 717,000 | 0.10 KM |
| 63 Hansford Square | £ 405,000 | 0.10 KM |
| 53 Hansford Square | £ 638,000 | 0.10 KM |
| 46 Hansford Square | £ 420,000 | 0.10 KM |
| 93 Hansford Square | £ 555,000 | 0.10 KM |