NE
Main Road, Wyre Piddle, Pershore, Worcestershire, WR10
By Nested
£ 895,000
Reviews
3 out of 5 stars
Nested says ..
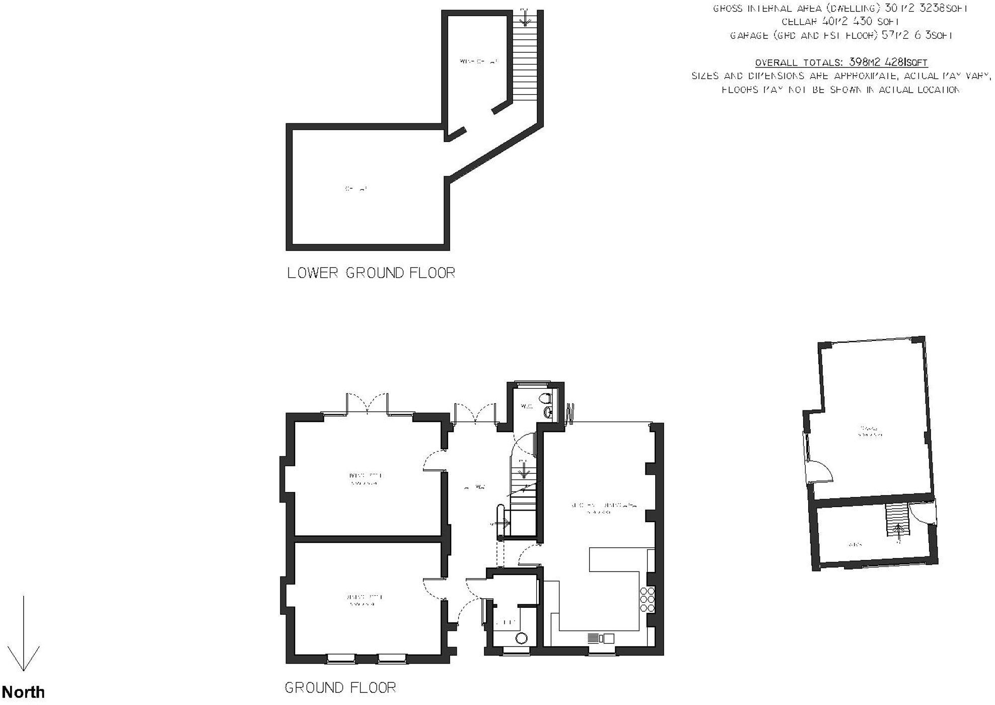
Stunning 6-bed Victorian riverside home with heated pool, planning permission for office, extensive dock, and modern interiors. Perfect blend of period charm and contemporary living.
Property Oracle says ..
Therefore, we give this property 7 / 10. *Disclaimer: This is our option and does constitute a recommendation or financial advice. Do your own research. *
- Price
- 7
- Condition
- 8
- Location
- 7
- Land
- 9
- Bedrooms
- 6
- Bathrooms
- 3
- Sqft (est)
- 4,281.00
The heatmap indicates the level of crime in the area. The color of the heatmap indicates the crime severity and recency.
Metrics Year-on-Year
- Average area value
- 655,000.00 £Increased by 29.62 %
- Est sale value
- 1,729,524.00 £Increased by 5.48 %
- Average area rental value
- 1,275.00 £/moDecreased by 17.10 %
- Est letting value
- 0.00 £/moDecreased by 100.00 %
- Est rental Yield
- 2.34 %Decreased by 35.89 %
- Crime Rate
- 54.00 %Unchanged by 0.00 %
from 505,331.00 £
from 1,639,623.00 £
from 1,538.00 £/mo
from 4,281.00 £/mo
from 3.65 %
from 54.00 %
Agent Activity
Nested created the listing.
Nearby Schools
| Name | Type | Ofsted | Distance |
|---|---|---|---|
| Pinvin Cofe First School | Academy Converter | Good | 2.10 KM |
| St Nicholas' Cofe Middle School | Academy Converter | Requires improvement | 2.13 KM |
| Pershore High School | Academy Converter | Good | 2.42 KM |
| Orchard Primary School | Academy Converter | 2.59 KM | |
| Holy Redeemer Catholic Primary School | Voluntary Aided School | Outstanding | 3.08 KM |
Images
Nearby Streets
| Name | Average Price | Average Sqft | Distance |
|---|---|---|---|
| Mill Lane | £ 500,000 | 0 | 0.00 KM |
| Skylark Drive | £ 0 | 0 | 0.00 KM |
Nearby Transport
| Name | NLC | TLC | Distance |
|---|---|---|---|
| Pershore | 4887 | PSH | 2.13 KM |
Nearby Listings
| Address | Price | Type | Score | Distance |
|---|---|---|---|---|
| Main Road, Wyre Piddle, Pershore, Worcestershire, WR10 | £ 895,000 | BUY | 7 / 10 | 0.00 KM |
| Avonbury, Church Street, Wyre Piddle, Pershore, Worcestershire. WR10 2JD | £ 450,000 | BUY | 7 / 10 | 0.04 KM |
| Avon Cottage, Main Road, Wyre Piddle, Pershore, Worcestershire WR10 2JB | £ 275,000 | BUY | 6 / 10 | 0.04 KM |
| Ryelands, Wyre Piddle | £ 400,000 | BUY | 8 / 10 | 0.16 KM |
| Ryelands, Wyre Piddle, Pershore, Worcestershire | £ 325,000 | BUY | Unknown | 0.16 KM |
Nearby Properties
| Address | Price | Distance |
|---|---|---|
| Cross Villa | £ 195,000 | 0.03 KM |
| White Horse Cottage | £ 170,000 | 0.03 KM |
| Lavender House | £ 375,000 | 0.03 KM |
| 2 Haines Avenue | £ 275,000 | 0.12 KM |
| 6a Haines Avenue | £ 143,500 | 0.12 KM |