Saltram Crescent, Maida Vale , London
By Excel Property Services
£ 600,000
Reviews
3 out of 5 stars
Excel Property Services says ..
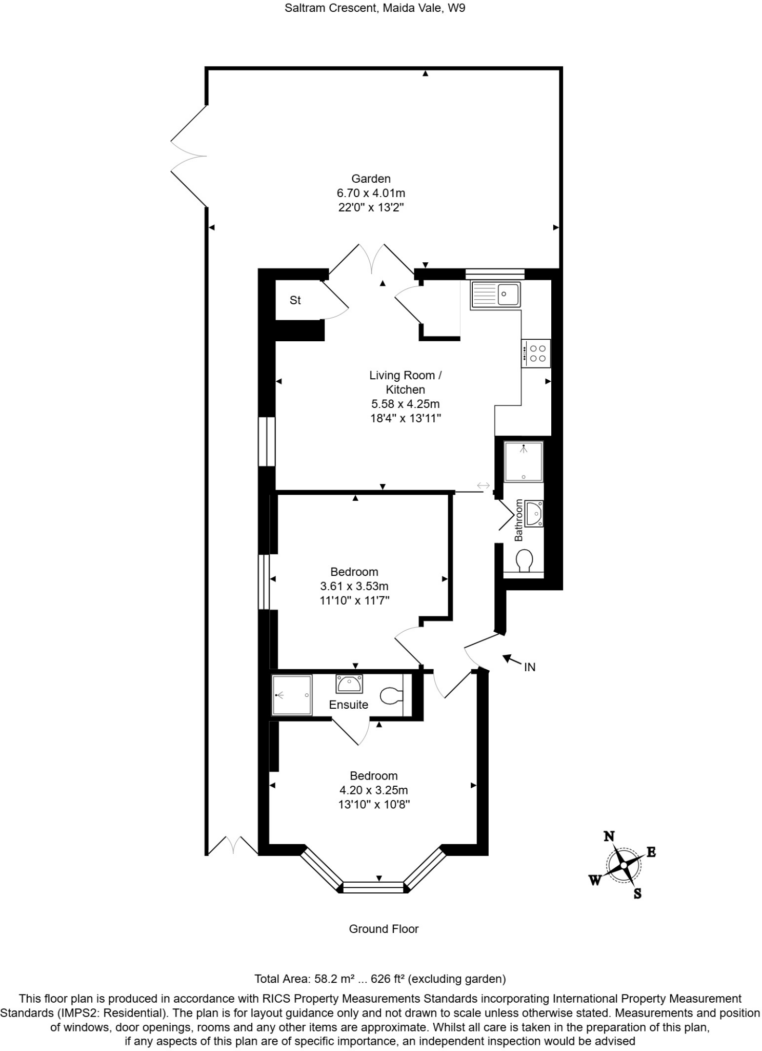
Victorian Conversion | Private Garden | Open-Plan Kitchen/Living Room | Two Shower Rooms | Share-of-Freehold | Chain Free | Wood Flooring | Queens Park Tube Station 0.3 miles
Property Oracle says ..
This is a two-bedroom apartment in Maida Vale, London. The property is in a good location, close to schools, transportation, and local amenities. The apartment has two bathrooms and a patio garden. The property appears to be in reasonable condition, with modern fixtures and fittings. The listing price is £600,000.
Therefore, we give this property 7 / 10. *Disclaimer: This is our option and does constitute a recommendation or financial advice. Do your own research. *
- Price
- 7
- Condition
- 7
- Location
- 8
- Land
- 6
- Bedrooms
- 2
- Bathrooms
- 2
The heatmap indicates the level of crime in the area. The color of the heatmap indicates the crime severity and recency.
Metrics Year-on-Year
- Average area value
- 943,571.00 £Increased by 41.23 %
- Average area rental value
- 3,456.00 £/moIncreased by 69.08 %
- Est rental Yield
- 4.40 %Increased by 19.89 %
- Crime Rate
- 5.00 %Unchanged by 0.00 %
Agent Activity
Excel Property Services created the listing.
Nearby Schools
| Name | Type | Ofsted | Distance |
|---|---|---|---|
| Maida Vale School | Other Independent School | 0.11 KM | |
| Dorothy Gardner Nursery School | Local Authority Nursery School | Requires improvement | 0.34 KM |
| Mary Paterson Nursery School | Local Authority Nursery School | Outstanding | 0.36 KM |
| Carlton Vale Infant School | Community School | Good | 0.39 KM |
| The Kilburn Park School Foundation | Foundation School | Good | 0.41 KM |
Images
Nearby Streets
| Name | Average Price | Average Sqft | Distance |
|---|---|---|---|
| Shirland Road | £ 640,000 | 0 | 0.00 KM |
| Malvern Place | £ 0 | 0 | 0.00 KM |
| Errington Road | £ 1,200,000 | 0 | 0.00 KM |
| Mile Walk | £ 0 | 0 | 0.00 KM |
| Granville Road | £ 0 | 0 | 0.00 KM |
Nearby Transport
| Name | NLC | TLC | Distance |
|---|---|---|---|
| Queens Park (London) | 1419 | QPW | 0.92 KM |
| Kilburn High Road | 1415 | KBN | 1.21 KM |
| Brondesbury Park | 1438 | BSP | 1.85 KM |
| Brondesbury | 1437 | BSY | 1.89 KM |
| West Hampstead | 1421 | WHD | 2.26 KM |
Nearby Listings
| Address | Price | Type | Score | Distance |
|---|---|---|---|---|
| Saltram Crescent, Maida Vale , London | £ 600,000 | BUY | 7 / 10 | 0.00 KM |
| Saltram Crescent, London, W9 | £ 530,000 | BUY | 8 / 10 | 0.06 KM |
| Croxley Road, London, W9 | £ 450,000 | BUY | 4 / 10 | 0.08 KM |
| Saltram Crescent, London | £ 1,500,000 | BUY | 7 / 10 | 0.08 KM |
| Shirland Mews, Maida Vale, W9 | £ 1,475,000 | BUY | 6 / 10 | 0.10 KM |
Nearby Properties
| Address | Price | Distance |
|---|---|---|
| 19 Saltram Crescent | £ 1,200,000 | 0.05 KM |
| 7 Saltram Crescent | £ 245,000 | 0.05 KM |
| 4 Fordingley Road | £ 430,000 | 0.08 KM |
| 2a Fordingley Road | £ 499,999 | 0.08 KM |
| 29c Fordingley Road | £ 752,000 | 0.08 KM |