The Marina, Deal, Kent, CT14
By Bright and Bright
£ 290,000
Reviews
2 out of 5 stars
Bright and Bright says ..
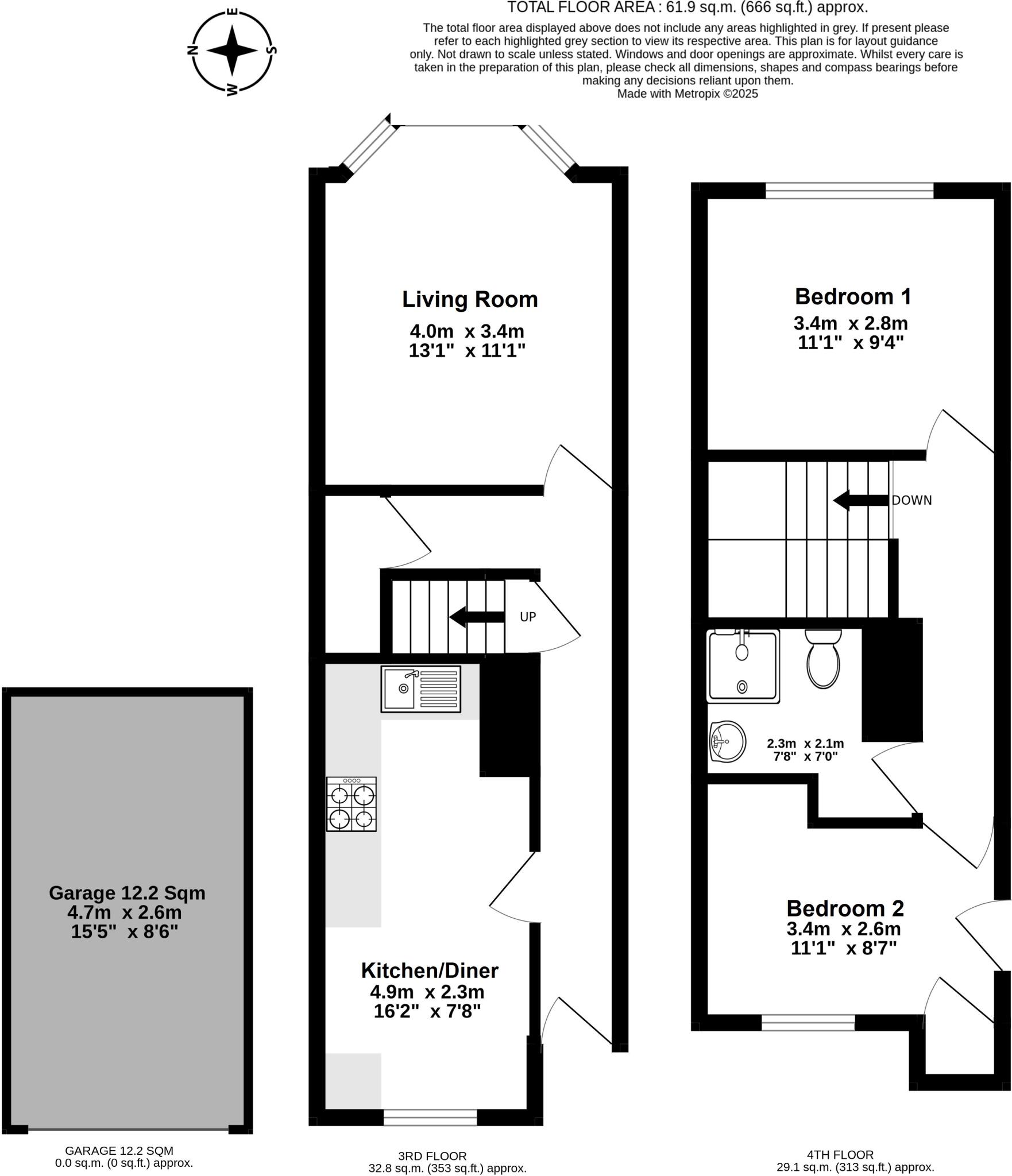
A spacious split level apartment with uninterrupted sea views and a garage.
Property Oracle says ..
This two-bedroom apartment on The Marina in Deal presents a fantastic opportunity for those seeking a coastal lifestyle. The property’s prime location offers stunning sea views and easy access to the beach. While the apartment requires modernisation, it is priced accordingly, allowing the new owner to create a bespoke living space. The proximity to Deal’s amenities, including shops, restaurants, and transport links, further enhances its appeal. Although it lacks a garden, the benefits of beachfront living outweigh this for many buyers. Overall, this property is a sound investment in a sought-after location.
Therefore, we give this property 5 / 10. *Disclaimer: This is our option and does constitute a recommendation or financial advice. Do your own research. *
- Price
- 7
- Condition
- 5
- Location
- 7
- Land
- 1
- Bedrooms
- 2
- Bathrooms
- 1
The heatmap indicates the level of crime in the area. The color of the heatmap indicates the crime severity and recency.
Metrics Year-on-Year
- Average area value
- 505,375.00 £Increased by 53.39 %
- Average area rental value
- 1,085.00 £/moDecreased by 20.22 %
- Est rental Yield
- 2.58 %Decreased by 47.88 %
- Crime Rate
- 8.00 %Unchanged by 0.00 %
Agent Activity
Bright and Bright created the listing.
Nearby Schools
| Name | Type | Ofsted | Distance |
|---|---|---|---|
| Sandown School | Academy Converter | 0.57 KM | |
| Brewood Secondary School | Other Independent Special School | Good | 1.68 KM |
| Goodwin Academy | Academy Sponsor Led | 2.04 KM | |
| Deal Parochial Church Of England Primary School | Academy Converter | 2.06 KM | |
| Warden House Primary School | Academy Converter | Outstanding | 2.78 KM |
Images
Nearby Streets
| Name | Average Price | Average Sqft | Distance |
|---|---|---|---|
| Dibdin Road | £ 0 | 0 | 0.00 KM |
| Hengist Road | £ 0 | 0 | 0.00 KM |
| Peter Street | £ 0 | 0 | 0.00 KM |
| Brewer Street | £ 950,000 | 0 | 0.00 KM |
| Chapel Street | £ 0 | 0 | 0.00 KM |
Nearby Transport
| Name | NLC | TLC | Distance |
|---|---|---|---|
| Deal | 5011 | DEA | 0.96 KM |
| Walmer | 5041 | WAM | 3.78 KM |
| Sandwich | 5026 | SDW | 8.17 KM |
| Martin Mill | 5040 | MTM | 9.04 KM |
Nearby Listings
| Address | Price | Type | Score | Distance |
|---|---|---|---|---|
| The Marina, Deal, Kent, CT14 | £ 290,000 | BUY | 5 / 10 | 0.00 KM |
| Prince William Court, The Marina, Deal, Kent, CT14 | £ 275,000 | BUY | 6 / 10 | 0.01 KM |
| The Marina, Deal, CT14 | £ 279,950 | BUY | 6 / 10 | 0.01 KM |
| The Marina, Deal, CT14 | £ 310,000 | BUY | 6 / 10 | 0.01 KM |
| Prince William Court, The Marina, Deal, CT14 | £ 295,000 | BUY | 5 / 10 | 0.01 KM |
Nearby Properties
| Address | Price | Distance |
|---|---|---|
| 18 Prince William Court | £ 162,000 | 0.03 KM |
| 11 Prince William Court | £ 167,500 | 0.03 KM |
| 3 Prince William Court | £ 142,000 | 0.03 KM |
| 13 Prince William Court | £ 225,000 | 0.03 KM |
| 12 Prince William Court | £ 195,000 | 0.03 KM |