Vandyke, Bracknell, Berkshire, RG12
By Prospect Estate Agency
£ 375,000
Reviews
3 out of 5 stars
Prospect Estate Agency says ..
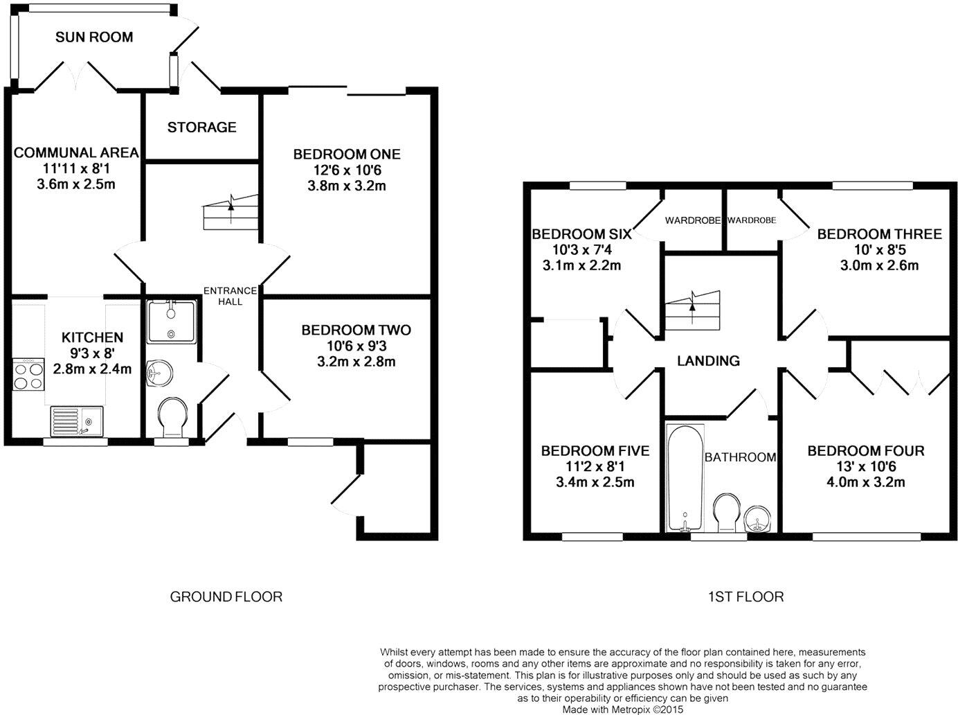
This versatile six bedroom property has come available for investment buyers only in the popular residential area of Great Hollands. The well-planned accommodation includes a good size dual aspect kitchen/dining room that via double doors opens into a sunroom, the main living room/bedroom five is...
Property Oracle says ..
The property is located in Bracknell, Berkshire, a town with a mix of housing options and amenities. The proximity to several schools, including Easthampstead Park Community School (rated ‘Good’ by Ofsted), is a positive aspect for families. The presence of nearby railway stations (Bracknell, Martins Heron) offers convenient access to commuting routes. However, the provided data does not offer further details on the quality of local shops or places of significance, limiting a comprehensive assessment of location desirability.
Based on the images, the property appears to be in reasonable condition. While the interior is presented as clean and well-maintained, there is no evidence of recent renovations or significant upgrades. The property shows signs of age, but no major issues are visible in the provided photographs. Further inspection would be needed to fully assess the condition of the property’s structure, plumbing, and electrical systems.
The property includes a small garden, which is a positive feature, though its size is not specified. The presence of a garden adds to the property’s appeal, particularly for families or those who value outdoor space. However, the overall size of the garden appears modest based on the image provided.
Considering the list price of £375,000 and the average price per square foot of £474 in the area, the property seems reasonably priced, potentially even slightly below average. The average house price in the area is significantly higher (£499,997), and the subject property has fewer square feet than the average. However, the lower price may reflect the smaller plot size and the property’s age. A more detailed comparison with similar properties in the immediate vicinity would be necessary to definitively assess the price’s competitiveness.
Therefore, we give this property 6 / 10. *Disclaimer: This is our option and does constitute a recommendation or financial advice. Do your own research. *
- Price
- 7
- Condition
- 7
- Location
- 7
- Land
- 4
- Bedrooms
- 6
- Bathrooms
- 2
- Sqft (est)
- 784.80
The heatmap indicates the level of crime in the area. The color of the heatmap indicates the crime severity and recency.
Metrics Year-on-Year
- Average area value
- 423,333.00 £Decreased by 1.00 %
- Est sale value
- 309,996.00 £Increased by 7.63 %
- Average area rental value
- 1,767.00 £/moDecreased by 10.30 %
- Est letting value
- 784.80 £/moUnchanged by 0.00 %
- Est rental Yield
- 5.01 %Decreased by 9.40 %
- Crime Rate
- 21.00 %Unchanged by 0.00 %
Agent Activity
Prospect Estate Agency marked this listing as sold.
Prospect Estate Agency created the listing.
Nearby Schools
| Name | Type | Ofsted | Distance |
|---|---|---|---|
| Great Hollands Primary School | Academy Sponsor Led | 0.38 KM | |
| Oaks And Hollies Children'S Centre | Children's Centre | 0.79 KM | |
| The Hollies Children'S Centre | Children's Centre Linked Site | 0.79 KM | |
| Easthampstead Park Community School | Community School | Good | 0.84 KM |
| Wooden Hill Primary And Nursery School | Community School | Good | 0.85 KM |
Images
Nearby Streets
| Name | Average Price | Average Sqft | Distance |
|---|---|---|---|
| Ringmead | £ 0 | 0 | 0.00 KM |
| Redwing Place | £ 0 | 0 | 0.00 KM |
| Great Hollands Road | £ 340,000 | 0 | 0.00 KM |
| Aysgarth | £ 0 | 0 | 0.00 KM |
| Dry Pond Ride | £ 0 | 0 | 0.00 KM |
Nearby Transport
| Name | NLC | TLC | Distance |
|---|---|---|---|
| Bracknell | 5693 | BCE | 3.02 KM |
| Martins Heron | 5692 | MAO | 5.69 KM |
| Crowthorne | 5628 | CRN | 6.07 KM |
| Sandhurst (Berks) | 5646 | SND | 6.66 KM |
| Blackwater | 5625 | BAW | 7.52 KM |
Nearby Listings
| Address | Price | Type | Score | Distance |
|---|---|---|---|---|
| Vandyke, Bracknell, Berkshire, RG12 | £ 375,000 | BUY | 6 / 10 | 0.00 KM |
| Viking, Bracknell, Berkshire, RG12 | £ 375,000 | BUY | 7 / 10 | 0.09 KM |
| Viking, Bracknell, RG12 | £ 345,000 | BUY | Unknown | 0.09 KM |
| Vandyke, Bracknell, Berkshire, RG12 | £ 300,000 | BUY | 6 / 10 | 0.17 KM |
| Viking, Bracknell | £ 400,000 | BUY | 6 / 10 | 0.17 KM |
Nearby Properties
| Address | Price | Distance |
|---|---|---|
| 37 Vandyke | £ 190,000 | 0.01 KM |
| 18 Vandyke | £ 183,000 | 0.01 KM |
| 16 Vandyke | £ 345,000 | 0.01 KM |
| 34 Vandyke | £ 189,950 | 0.01 KM |
| 27 Vandyke | £ 153,000 | 0.01 KM |