Pennys says ..
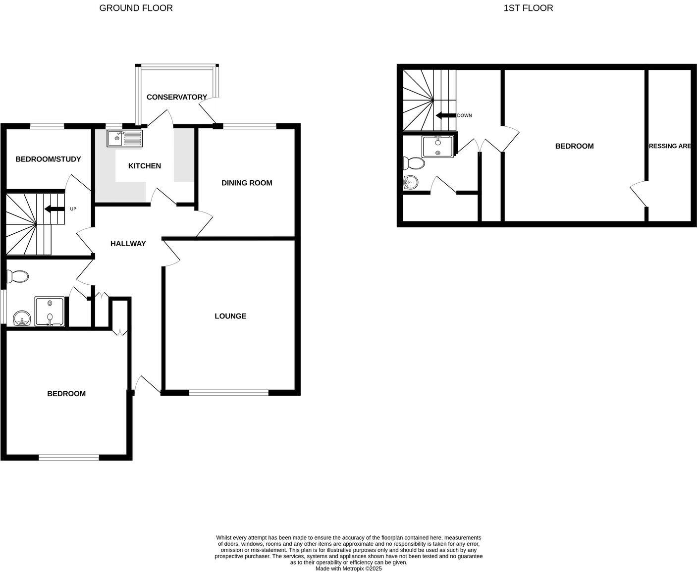
A Well Presented Detached Chalet Style Bungalow With Manageable Gardens, Garage, Conveniently Situated For Local Amenities And A Short Walk To The Town Centre And Beach
Property Oracle says ..
Therefore, we give this property 7 / 10. *Disclaimer: This is our option and does constitute a recommendation or financial advice. Do your own research. *
- Price
- 7
- Condition
- 7
- Location
- 8
- Land
- 7
- Bedrooms
- 3
- Bathrooms
- 2
- Sqft (est)
- 1,151.00
The heatmap indicates the level of crime in the area. The color of the heatmap indicates the crime severity and recency.
Metrics Year-on-Year
- Average area value
- 313,952.00 £Increased by 24.10 %
- Est sale value
- 362,565.00 £Increased by 16.24 %
- Average area rental value
- 876.00 £/moIncreased by 10.19 %
- Est letting value
- 0.00 £/mo
- Est rental Yield
- 3.35 %Decreased by 11.14 %
- Crime Rate
- 4.00 %Unchanged by 0.00 %
from 252,982.00 £
from 311,921.00 £
from 795.00 £/mo
from 0.00 £/mo
from 3.77 %
from 4.00 %
Agent Activity
Pennys created the listing.
Nearby Schools
| Name | Type | Ofsted | Distance |
|---|---|---|---|
| Axe Valley Children'S Centre | Children's Centre | 0.28 KM | |
| Seaton Primary School | Community School | Outstanding | 0.43 KM |
| Colyton Grammar School | Academy Converter | 1.88 KM | |
| Colyton Primary Academy | Academy Sponsor Led | 3.21 KM | |
| Beer Church Of England Primary School | Academy Converter | Requires improvement | 3.70 KM |
Images
Nearby Streets
| Name | Average Price | Average Sqft | Distance |
|---|---|---|---|
| Gravel Lane | £ 0 | 0 | 0.00 KM |
| Stock Lane | £ 0 | 0 | 0.00 KM |
| Celandine Close | £ 0 | 0 | 0.00 KM |
| Kings Court | £ 245,000 | 0 | 0.00 KM |
| Turnstone Avenue | £ 0 | 0 | 0.00 KM |
Nearby Listings
| Address | Price | Type | Score | Distance |
|---|---|---|---|---|
| Colyford Road, Seaton, EX12 2DP | £ 385,000 | BUY | 7 / 10 | 0.00 KM |
| Colyford Road, Seaton, EX12 | £ 340,000 | BUY | 6 / 10 | 0.00 KM |
| Colyford Road, Seaton | £ 385,000 | BUY | 6 / 10 | 0.03 KM |
| Colyford Road, Seaton, Devon, EX12 | £ 380,000 | BUY | Unknown | 0.05 KM |
| Hillymead, Seaton | £ 368,000 | BUY | Unknown | 0.09 KM |
Nearby Properties
| Address | Price | Distance |
|---|---|---|
| 15 Colyford Road | £ 340,000 | 0.01 KM |
| 21 Colyford Road | £ 300,000 | 0.01 KM |
| 19 Colyford Road | £ 282,500 | 0.01 KM |
| 5 Colyford Road | £ 250,000 | 0.01 KM |
| 16 Hillymead | £ 265,000 | 0.11 KM |