David Andrew says ..
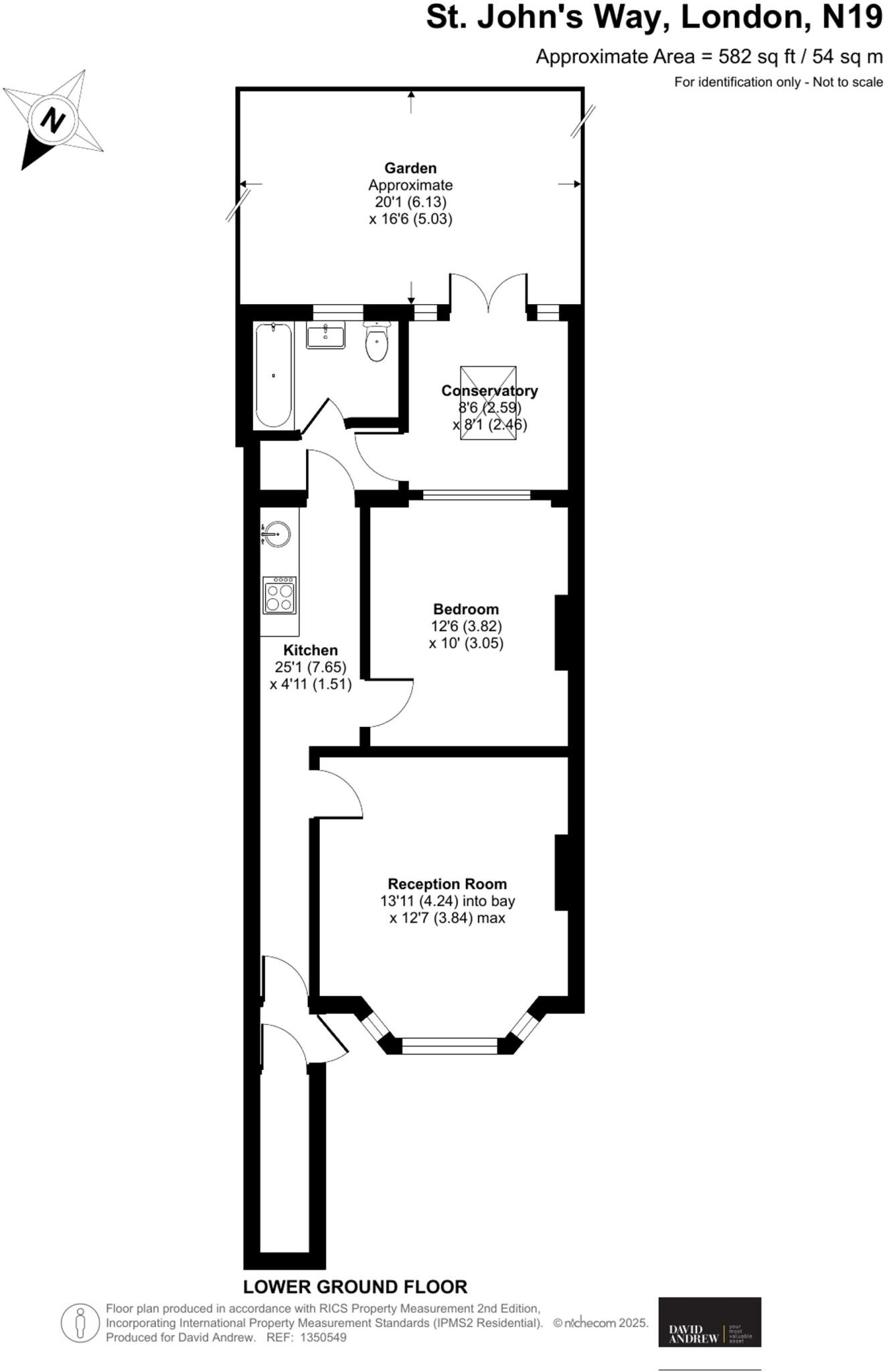
David Andrew is proud to present this delightful lower ground floor period home, offered chain-free and featuring its own private entrance.
Property Oracle says ..
This is a one-bedroom property located in the Junction area of Islington, London. The property includes a garden, which is a significant advantage. While the property is in reasonable condition, it would benefit from some modernisation, particularly in the kitchen and bathroom. The location is good, with access to local amenities and transportation links. The asking price of £400,000 seems reasonable given the location, size, and features of the property.
Therefore, we give this property 6 / 10. *Disclaimer: This is our option and does constitute a recommendation or financial advice. Do your own research. *
- Price
- 7
- Condition
- 5
- Location
- 7
- Land
- 7
- Bedrooms
- 1
- Bathrooms
- 1
- Sqft (est)
- 824.91
The heatmap indicates the level of crime in the area. The color of the heatmap indicates the crime severity and recency.
Metrics Year-on-Year
- Average area value
- 629,167.00 £Decreased by 26.23 %
- Est sale value
- 612,908.13 £Decreased by 14.00 %
- Average area rental value
- 2,211.00 £/moDecreased by 8.37 %
- Est letting value
- 1,649.82 £/moUnchanged by 0.00 %
- Est rental Yield
- 4.22 %Increased by 24.12 %
- Crime Rate
- 19.00 %Unchanged by 0.00 %
Agent Activity
David Andrew created the listing.
Nearby Schools
| Name | Type | Ofsted | Distance |
|---|---|---|---|
| Archway Children'S Centre | Children's Centre | 0.37 KM | |
| St John'S Upper Holloway Cofe Primary School | Voluntary Aided School | Good | 0.40 KM |
| City Of London Academy, Highgate Hill | Free Schools | 0.47 KM | |
| New River College Medical | Pupil Referral Unit | Outstanding | 0.55 KM |
| Yerbury Primary School | Community School | Outstanding | 0.64 KM |
Images
Nearby Streets
| Name | Average Price | Average Sqft | Distance |
|---|---|---|---|
| A1 | £ 0 | 0 | 0.00 KM |
| A1 | £ 0 | 0 | 0.00 KM |
| Navigator Square | £ 0 | 0 | 0.00 KM |
| Bovington Close | £ 0 | 0 | 0.00 KM |
| Larch Close | £ 0 | 0 | 0.00 KM |
Nearby Transport
| Name | NLC | TLC | Distance |
|---|---|---|---|
| Upper Holloway | 1524 | UHL | 0.50 KM |
| Crouch Hill | 7406 | CRH | 1.87 KM |
| Kentish Town | 1553 | KTN | 1.92 KM |
| Gospel Oak | 1409 | GPO | 2.28 KM |
| Kentish Town West | 1449 | KTW | 2.64 KM |
Nearby Listings
| Address | Price | Type | Score | Distance |
|---|---|---|---|---|
| St. John's Way, London, N19 | £ 400,000 | BUY | 6 / 10 | 0.00 KM |
| St. John's Way, London | £ 930,000 | BUY | 7 / 10 | 0.02 KM |
| Giesbach Road, London, N19 | £ 485,000 | BUY | Unknown | 0.05 KM |
| Giesbach Road, London, N19 | £ 575,000 | BUY | Unknown | 0.05 KM |
| Holloway Road, Holloway | £ 750,000 | BUY | 6 / 10 | 0.10 KM |
Nearby Properties
| Address | Price | Distance |
|---|---|---|
| 24 St Johns Way | £ 430,000 | 0.02 KM |
| 21 Giesbach Road | £ 545,000 | 0.04 KM |
| 5 Giesbach Road | £ 365,000 | 0.04 KM |
| 25 Giesbach Road | £ 500,000 | 0.04 KM |
| 19 Giesbach Road | £ 295,000 | 0.04 KM |