Heritage Estates says ..
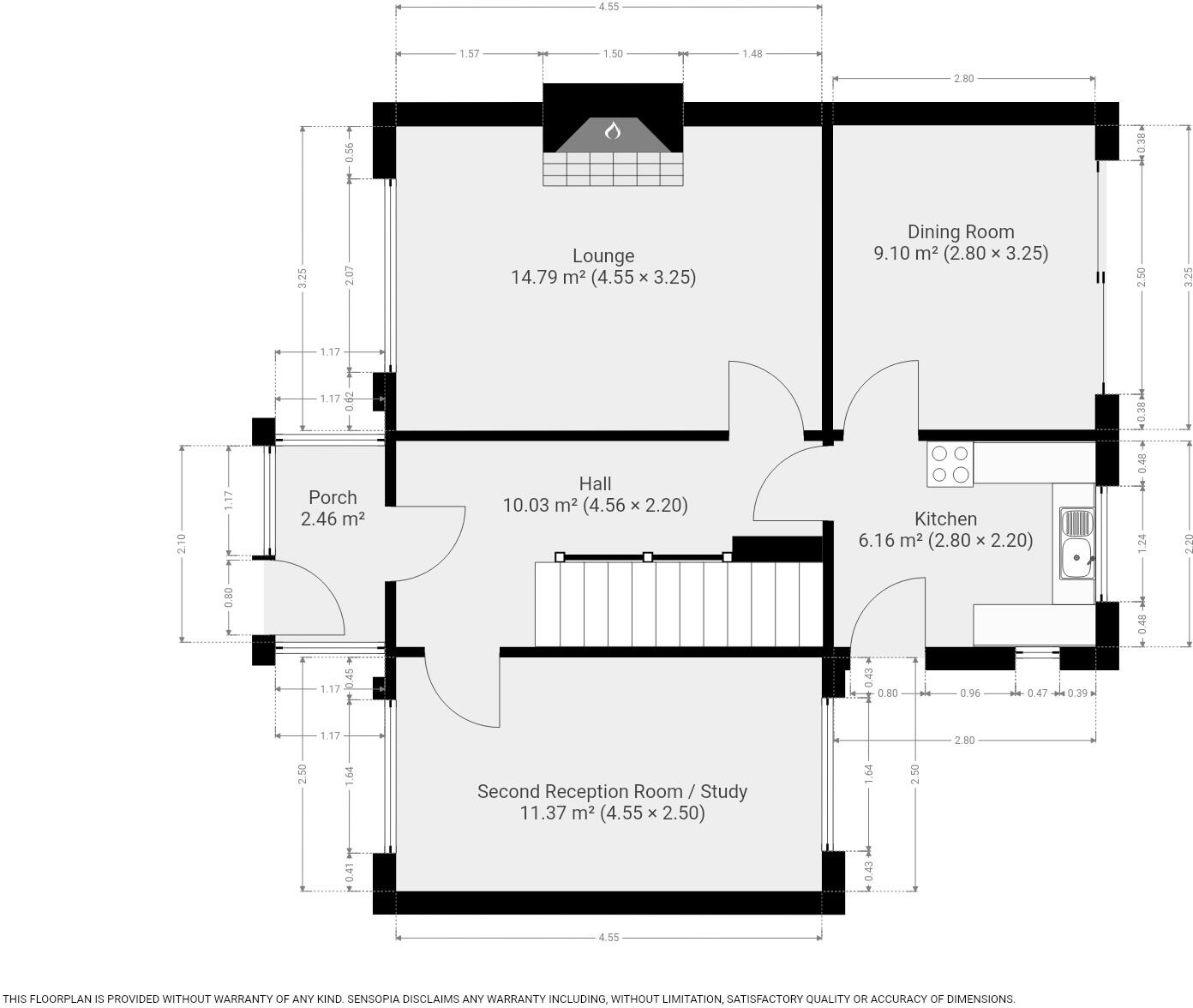
3-BED, SEMI-DETACHED FAMILY HOME FOR SALE GARAGE & PARKING TO REAR NO FORWARD CHAIN With a guide price of £395,000 to £405,000. Heritage Estates are delighted to offer for sale this semi-detached house with no forward chain. The property comprises: a porch; hallway; loun (cont.)
Property Oracle says ..
This property is a 3-bedroom semi-detached house located in Chalk, Gravesend. The location benefits from being relatively close to several primary schools (within 1km) which received a “Good” Ofsted rating, as well as multiple train stations within a 7km radius. The property itself is in need of modernisation and updating, as seen in the provided images. The garden is a reasonable size for a semi-detached property of this type. The list price of £395,000 seems slightly high compared to the average price of similar properties in the area (£249,300) and the average price per sqft (£264). However, the lack of sqft information for comparable properties makes a definitive statement difficult. More information on the size of this property would be required to accurately assess the value for money.
Therefore, we give this property 5 / 10. *Disclaimer: This is our option and does constitute a recommendation or financial advice. Do your own research. *
- Price
- 5
- Condition
- 4
- Location
- 7
- Land
- 6
- Bedrooms
- 3
- Bathrooms
- 0
- Sqft (est)
- 580.28
The heatmap indicates the level of crime in the area. The color of the heatmap indicates the crime severity and recency.
Metrics Year-on-Year
- Average area value
- 257,500.00 £Increased by 0.03 %
- Est sale value
- 239,075.36 £Increased by 62.85 %
- Average area rental value
- 1,610.00 £/moIncreased by 45.31 %
- Est letting value
- 1,160.56 £/moIncreased by 100.00 %
- Est rental Yield
- 7.50 %Increased by 45.35 %
- Crime Rate
- 3.00 %Unchanged by 0.00 %
Agent Activity
Heritage Estates created the listing.
Nearby Schools
| Name | Type | Ofsted | Distance |
|---|---|---|---|
| Link19 College | Special Post 16 Institution | 0.59 KM | |
| Westcourt Primary School | Academy Converter | Good | 0.90 KM |
| North West Kent Alternative Provision Service | Academy Alternative Provision Sponsor Led | 0.96 KM | |
| Thamesview School | Foundation School | Good | 1.02 KM |
| Riverside Children'S Centre (Gravesend) | Children's Centre | 1.04 KM |
Images
Nearby Streets
| Name | Average Price | Average Sqft | Distance |
|---|---|---|---|
| Chalk Park | £ 0 | 0 | 0.00 KM |
| Oxford Close | £ 305,000 | 0 | 0.00 KM |
| West Court Lane | £ 500,000 | 0 | 0.00 KM |
| Farriers Close | £ 0 | 0 | 0.00 KM |
| Dalefield Way | £ 180,000 | 0 | 0.00 KM |
Nearby Transport
| Name | NLC | TLC | Distance |
|---|---|---|---|
| Gravesend | 5172 | GRV | 3.91 KM |
| Sole Street | 5126 | SOR | 5.95 KM |
| East Tilbury | 7471 | ETL | 6.08 KM |
| Tilbury Town | 7462 | TIL | 6.19 KM |
| Meopham | 5116 | MEP | 6.98 KM |
Nearby Listings
| Address | Price | Type | Score | Distance |
|---|---|---|---|---|
| Chalk Road, Gravesend | £ 395,000 | BUY | 5 / 10 | 0.00 KM |
| Goldsmith Mews, Gravesend, Kent, DA12 | £ 375,000 | BUY | 7 / 10 | 0.07 KM |
| Goldsmith Mews, Chalk, Kent, DA12 | £ 375,000 | BUY | 7 / 10 | 0.07 KM |
| Goldsmith Mews, Chalk, Kent, DA12 | £ 400,000 | BUY | 6 / 10 | 0.07 KM |
| Goldsmith Mews, Chalk, Kent, DA12 | £ 400,000 | BUY | 7 / 10 | 0.07 KM |
Nearby Properties
| Address | Price | Distance |
|---|---|---|
| 11 Chalk Road | £ 164,000 | 0.09 KM |
| 1 Chalk Road | £ 265,000 | 0.09 KM |
| 26 Chalk Road | £ 197,000 | 0.10 KM |
| 32 Chalk Road | £ 410,000 | 0.10 KM |
| 18 Chalk Road | £ 210,000 | 0.10 KM |