LU
Flat 1, Moat Hill House, Totnes
By Luscombe Maye
£ 440,000
Reviews
3 out of 5 stars
Luscombe Maye says ..
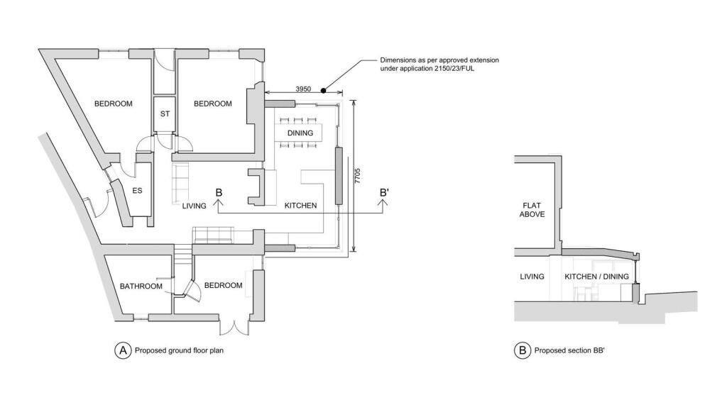
No Forward Chain | Ground Floor Apartment | Two Double Bedrooms | Walking Distance to Town Centre | Immaculately Presented | Character Features Throughout | Conservatory | Planning Permission for Extension | Idyllic Garden | Far Reaching Views
Property Oracle says ..
Therefore, we give this property 6 / 10. *Disclaimer: This is our option and does constitute a recommendation or financial advice. Do your own research. *
- Price
- 4
- Condition
- 8
- Location
- 7
- Land
- 8
- Bedrooms
- 2
- Bathrooms
- 2
- Sqft (est)
- 817.26
The heatmap indicates the level of crime in the area. The color of the heatmap indicates the crime severity and recency.
Metrics Year-on-Year
- Average area value
- 418,833.00 £Increased by 5.75 %
- Est sale value
- 330,990.30 £Increased by 5.47 %
- Average area rental value
- 1,017.00 £/moDecreased by 11.64 %
- Est letting value
- 0.00 £/moDecreased by 100.00 %
- Est rental Yield
- 2.91 %Decreased by 16.62 %
- Crime Rate
- 11.00 %Unchanged by 0.00 %
from 396,049.00 £
from 313,827.84 £
from 1,151.00 £/mo
from 817.26 £/mo
from 3.49 %
from 11.00 %
Agent Activity
Luscombe Maye created the listing.
Nearby Schools
| Name | Type | Ofsted | Distance |
|---|---|---|---|
| Roc College (Part Of United Response) | Special Post 16 Institution | Good | 0.54 KM |
| The Grove School | Community School | Outstanding | 0.54 KM |
| Daisy Play Centre Totnes And District Children'S Centre | Children's Centre | 0.74 KM | |
| On Track Education - Totnes | Other Independent Special School | Good | 0.80 KM |
| Totnes St John'S Church Of England Primary School | Academy Sponsor Led | 0.89 KM |
Images
Nearby Streets
| Name | Average Price | Average Sqft | Distance |
|---|---|---|---|
| Mansion Way | £ 0 | 0 | 0.00 KM |
| Heath Court | £ 0 | 0 | 0.00 KM |
| Chapel Lane | £ 0 | 0 | 0.00 KM |
| Paradise Walk | £ 0 | 0 | 0.00 KM |
| North Street Mews | £ 325,000 | 0 | 0.00 KM |
Nearby Transport
| Name | NLC | TLC | Distance |
|---|---|---|---|
| Totnes | 3558 | TOT | 1.06 KM |
Nearby Listings
| Address | Price | Type | Score | Distance |
|---|---|---|---|---|
| Flat 1, Moat Hill House, Totnes | £ 440,000 | BUY | 6 / 10 | 0.00 KM |
| Moat Hill, Totnes | £ 900,000 | BUY | 6 / 10 | 0.02 KM |
| Sharpham Drive, Totnes | £ 795,000 | BUY | 7 / 10 | 0.08 KM |
| New Walk, Totnes | £ 340,000 | BUY | 6 / 10 | 0.09 KM |
| Moat Hill, Totnes | £ 430,000 | BUY | 5 / 10 | 0.11 KM |
Nearby Properties
| Address | Price | Distance |
|---|---|---|
| Kirkstone House | £ 770,000 | 0.00 KM |
| 2 Taunton Court | £ 197,000 | 0.09 KM |
| 8 Taunton Court | £ 182,500 | 0.09 KM |
| 4 Taunton Court | £ 182,000 | 0.09 KM |
| 6 Taunton Court | £ 230,000 | 0.09 KM |