HA
The Barracks, Parkend
By Hattons Estate Agents
£ 319,950
Reviews
3 out of 5 stars
Hattons Estate Agents says ..
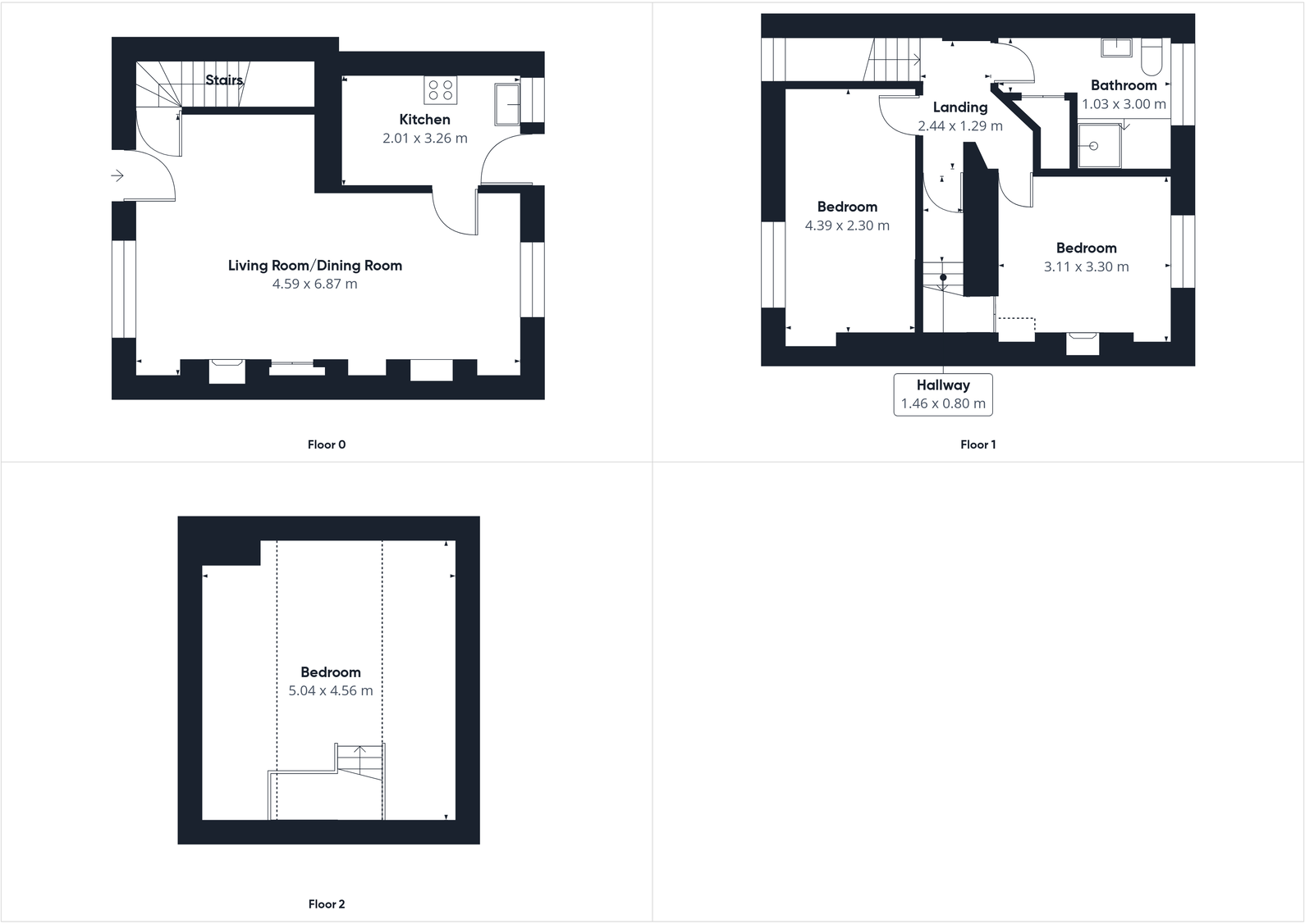
Rarely available in this location and nestled within the heart of the woodland, this charming three-bedroom character home is tucked away in ‘The Barracks’, a unique and highly sought-after position in the popular village of Parkend. Rich in history and full of period charm, t...
Property Oracle says ..
Therefore, we give this property 6 / 10. *Disclaimer: This is our option and does constitute a recommendation or financial advice. Do your own research. *
- Price
- 5
- Condition
- 6
- Location
- 7
- Land
- 8
- Bedrooms
- 3
- Bathrooms
- 1
- Sqft (est)
- 956.16
The heatmap indicates the level of crime in the area. The color of the heatmap indicates the crime severity and recency.
Metrics Year-on-Year
- Average area value
- 268,125.00 £Increased by 15.58 %
- Est sale value
- 261,031.68 £Increased by 19.21 %
- Average area rental value
- 1,044.00 £/moIncreased by 5.56 %
- Est letting value
- 956.16 £/mo
- Est rental Yield
- 4.67 %Decreased by 8.79 %
- Crime Rate
- 0.00 %
from 231,978.00 £
from 218,960.64 £
from 989.00 £/mo
from 0.00 £/mo
from 5.12 %
from 0.00 %
Agent Activity
Hattons Estate Agents created the listing.
Nearby Schools
| Name | Type | Ofsted | Distance |
|---|---|---|---|
| Parkend Primary School | Community School | Requires improvement | 1.93 KM |
| Yorkley Primary School | Community School | Good | 2.55 KM |
| Pillowell Community Primary School | Community School | Good | 2.99 KM |
| Heart Of The Forest Community Special School | Community Special School | Good | 3.28 KM |
| Soudley School | Community School | Good | 4.90 KM |
Images
Nearby Transport
| Name | NLC | TLC | Distance |
|---|---|---|---|
| Lydney | 4826 | LYD | 7.47 KM |
Nearby Listings
| Address | Price | Type | Score | Distance |
|---|---|---|---|---|
| The Barracks, Parkend | £ 319,950 | BUY | 6 / 10 | 0.00 KM |
| Moseley Green, Parkend, Lydney | £ 300,000 | BUY | Unknown | 0.61 KM |
| Moseley Green, Parkend, Lydney, Gloucestershire. GL15 4HN | £ 475,000 | BUY | 6 / 10 | 0.63 KM |
Nearby Properties
| Address | Price | Distance |
|---|---|---|
| 19 The Barracks | £ 306,000 | 0.01 KM |
| 2 The Barracks | £ 180,000 | 0.01 KM |
| 12 The Barracks | £ 370,000 | 0.01 KM |
| 1 The Barracks | £ 349,950 | 0.01 KM |
| 17 The Barracks | £ 199,500 | 0.01 KM |