Chancellors says ..
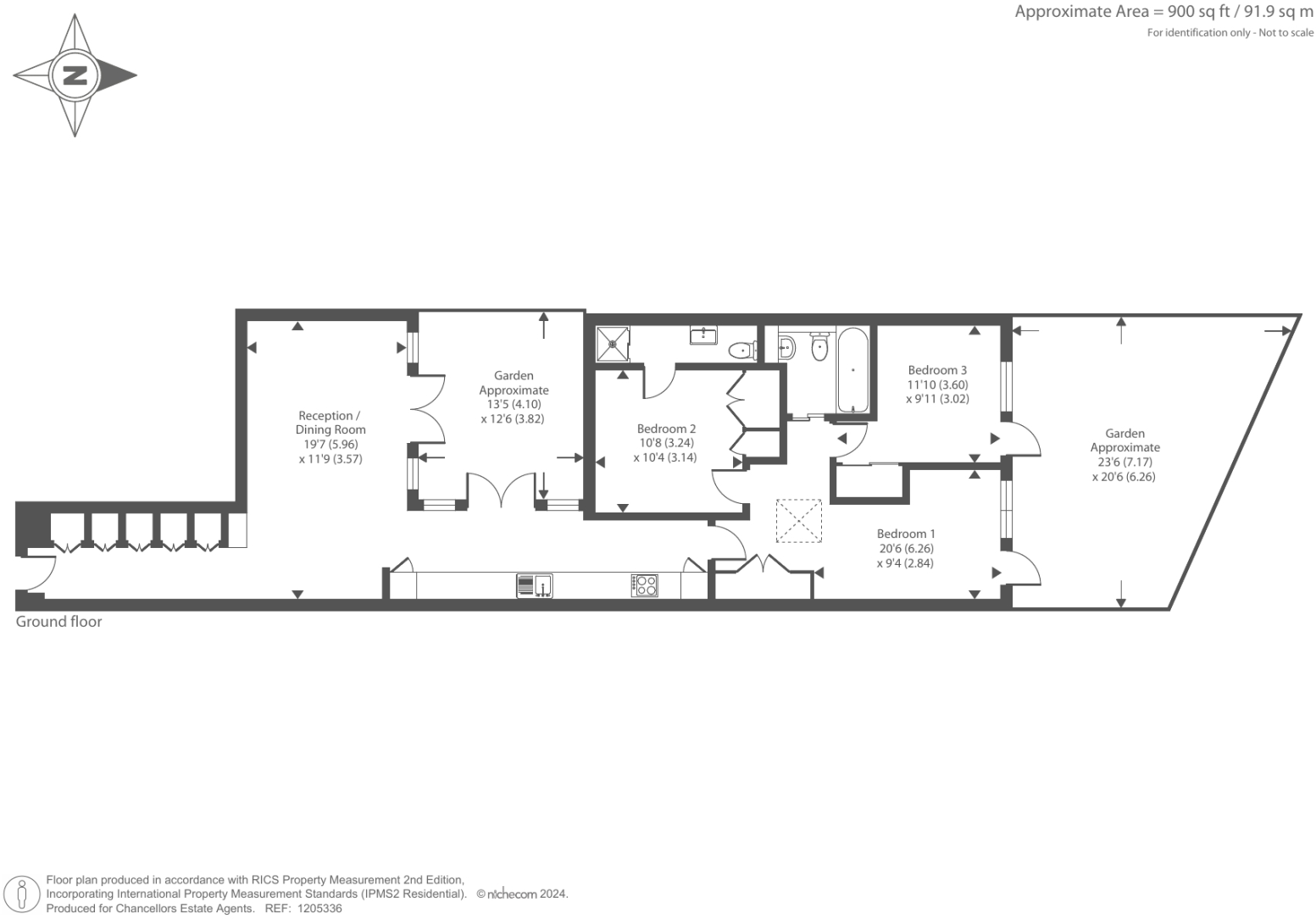
Ground floor purpose-built maisonette in this mews development that runs from Beechwood Avenue to Edgehill Avenue . The property was built as a three bedroom home but an internal wall was removed to make the room open plan. There is direct access to own rear garden
Property Oracle says ..
This three-bedroom, two-bathroom maisonette in Finchley’s Garden Suburb offers a blend of modern living and a convenient location. The property boasts a contemporary interior with a clean, bright aesthetic. The open-plan living space and modern kitchen are well-presented. The inclusion of a private rear garden adds to its appeal. The property’s proximity to highly-rated schools enhances its family-friendly nature. While the distance to transportation might be considered a slight drawback, the reasonable price and overall excellent condition makes the property a relatively attractive offering in the current market. The relatively small plot size is a factor buyers should consider. Further information on the property’s exact square footage would be beneficial for a complete assessment.
Therefore, we give this property 6 / 10. *Disclaimer: This is our option and does constitute a recommendation or financial advice. Do your own research. *
- Price
- 7
- Condition
- 8
- Location
- 7
- Land
- 4
- Bedrooms
- 3
- Bathrooms
- 2
- Sqft (est)
- 900.00
The heatmap indicates the level of crime in the area. The color of the heatmap indicates the crime severity and recency.
Metrics Year-on-Year
- Average area value
- 1,617,059.00 £Decreased by 47.03 %
- Est sale value
- 576,000.00 £Decreased by 60.64 %
- Average area rental value
- 2,345.00 £/moDecreased by 26.70 %
- Est letting value
- 0.00 £/moDecreased by 100.00 %
- Est rental Yield
- 1.74 %Increased by 38.10 %
- Crime Rate
- 5.00 %Unchanged by 0.00 %
Agent Activity
Chancellors created the listing.
Nearby Schools
| Name | Type | Ofsted | Distance |
|---|---|---|---|
| Garden Suburb Infant School | Community School | Good | 0.60 KM |
| Garden Suburb Junior School | Community School | Good | 0.60 KM |
| Brookland Infant And Nursery School | Community School | Outstanding | 0.64 KM |
| Brookland Junior School | Community School | Outstanding | 0.64 KM |
| Christ'S College Finchley | Academy Converter | Good | 0.78 KM |
Images
Nearby Streets
| Name | Average Price | Average Sqft | Distance |
|---|---|---|---|
| Eger Close | £ 374,975 | 0 | 0.00 KM |
| Monkville Avenue | £ 0 | 0 | 0.00 KM |
| Alberon Gardens | £ 750,000 | 0 | 0.00 KM |
| Anatoolpad | £ 0 | 0 | 0.00 KM |
| Hendon Park Row | £ 0 | 0 | 0.00 KM |
Nearby Transport
| Name | NLC | TLC | Distance |
|---|---|---|---|
| Cricklewood | 1519 | CRI | 3.98 KM |
| Finchley Road And Frognal | 1445 | FNY | 4.48 KM |
| West Hampstead Thameslink | 1525 | WHP | 4.52 KM |
| West Hampstead | 1421 | WHD | 4.63 KM |
| Hampstead Heath | 1413 | HDH | 4.89 KM |
Nearby Listings
| Address | Price | Type | Score | Distance |
|---|---|---|---|---|
| Edgewood Mews, Finchley, N3 | £ 585,000 | BUY | Unknown | 0.00 KM |
| Edgewood Mews, Finchley, N3 | £ 650,000 | BUY | 6 / 10 | 0.00 KM |
| Beaufort Park, Hampstead Garden Suburb, London, NW11 | £ 475,000 | BUY | 7 / 10 | 0.05 KM |
| Beaufort Park, Hampstead Garden Suburb, NW11 | £ 435,000 | BUY | 6 / 10 | 0.09 KM |
| Beaufort Park, Hampstead Garden Suburb, London, NW11 | £ 410,000 | BUY | Unknown | 0.09 KM |
Nearby Properties
| Address | Price | Distance |
|---|---|---|
| 39 Beaufort Park | £ 199,000 | 0.03 KM |
| 45 Beaufort Park | £ 61,000 | 0.03 KM |
| 31 Beaufort Park | £ 230,000 | 0.03 KM |
| 42 Beaufort Park | £ 81,000 | 0.03 KM |
| 30 Beaufort Park | £ 231,000 | 0.03 KM |