Kirby Drive, Bramley, Tadley, Hampshire, RG26
SA

Kirby Drive, Bramley, Tadley, Hampshire, RG26

By Sansome & George

£ 425,000

Reviews

3 out of 5 stars

Sansome & George says ..

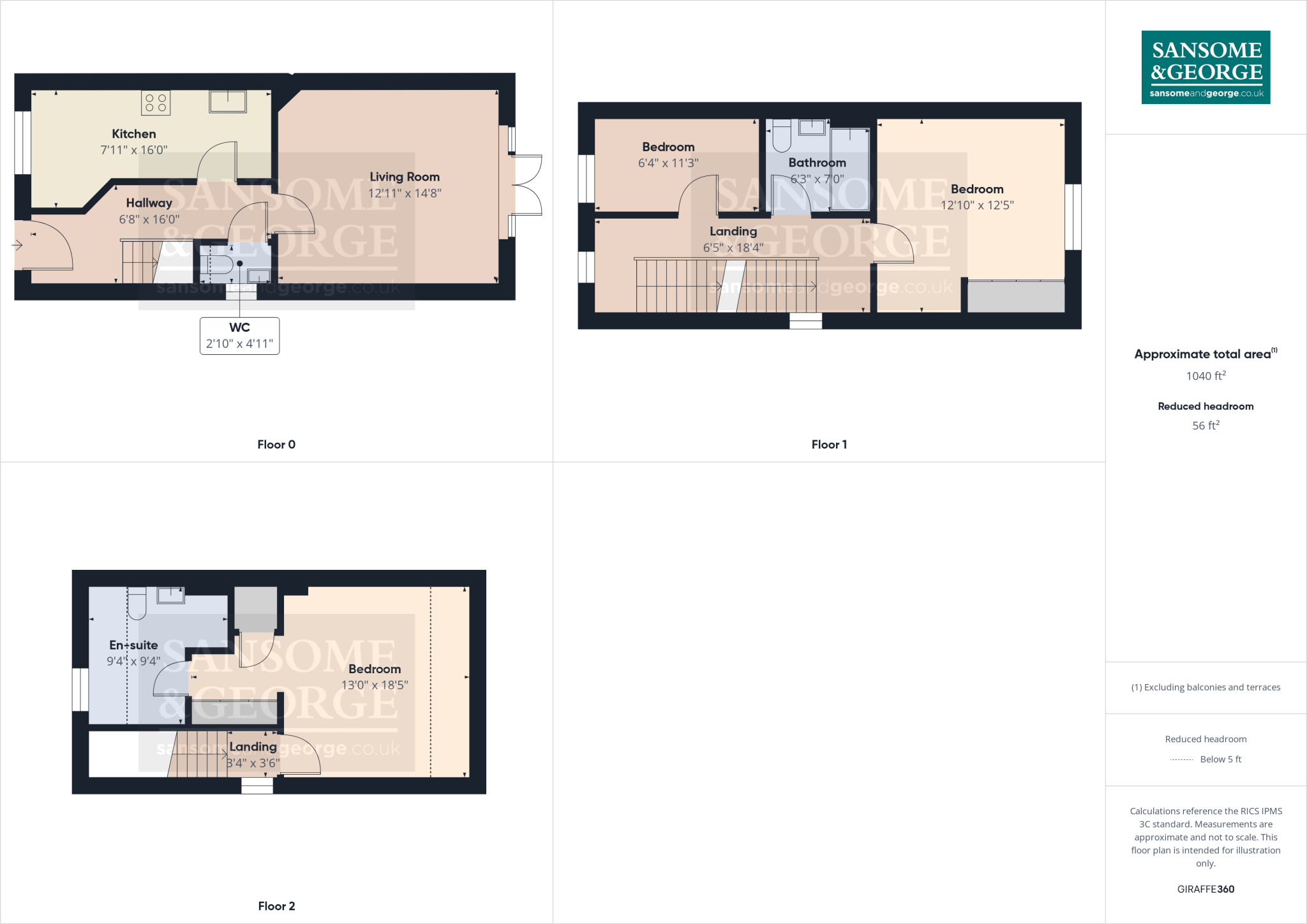
SANSOME & GEORGE ** Virtual Tour Available ** Step into this delightful 3-bedroom home that exudes charm and character at every corner. Boasting a generous 1,040 sq ft of living space, this modern property offers a perfect blend of comfort and style. The inviting interior features three ...

Property Oracle says ..

Therefore, we give this property 7 / 10. *Disclaimer: This is our option and does constitute a recommendation or financial advice. Do your own research. *

Price
8
Condition
8
Location
7
Land
7
Bedrooms
3
Bathrooms
2
Sqft (est)
1,040.00

The heatmap indicates the level of crime in the area. The color of the heatmap indicates the crime severity and recency.

Metrics Year-on-Year

Average area value
1,258,750.00 £
Increased by 38.62 %
from 908,045.00 £
Est sale value
612,560.00 £
Decreased by 3.12 %
from 632,320.00 £
Average area rental value
2,017.00 £/mo
Decreased by 42.17 %
from 3,488.00 £/mo
Est letting value
0.00 £/mo
Decreased by 100.00 %
from 2,080.00 £/mo
Est rental Yield
1.92 %
Decreased by 58.35 %
from 4.61 %
Crime Rate
9.00 %
Unchanged by 0.00 %
from 9.00 %

Agent Activity

  • Sansome & George created the listing.

Nearby Schools

NameTypeOfstedDistance
Bramley Church Of England Primary SchoolVoluntary Controlled SchoolGood1.22 KM
Four Lanes Infant SchoolCommunity SchoolOutstanding3.24 KM
The Loddon SchoolOther Independent Special SchoolOutstanding3.26 KM
Four Lanes Community Junior SchoolCommunity SchoolGood3.31 KM
Sherfield SchoolOther Independent School3.67 KM

Images

Picture No. 28 Picture No. 24 Picture No. 09 Picture No. 06 Picture No. 02 Picture No. 07 Picture No. 16 Picture No. 17 Picture No. 21 Picture No. 14 Picture No. 04 Picture No. 08 Picture No. 11 Picture No. 20 Picture No. 05 Picture No. 12 Picture No. 15 Picture No. 13 Picture No. 19 Picture No. 23 Picture No. 10 Picture No. 18 Picture No. 22 Picture No. 25 Picture No. 26 Picture No. 27 Picture No. 29 Picture No. 03

Nearby Streets

NameAverage PriceAverage SqftDistance
Campbell Road £ 000.00 KM
Bartlett Close £ 595,00000.00 KM
St. Barbara's Close £ 000.00 KM
Bramley Lane £ 000.00 KM
Folly Lane £ 2,750,00000.00 KM

Nearby Transport

NameNLCTLCDistance
Bramley (Hampshire)5500BMY1.19 KM
Mortimer5501MOR5.79 KM
Basingstoke5520BSK7.17 KM

Nearby Listings

AddressPriceTypeScoreDistance
Kirby Drive, Bramley, Tadley, Hampshire, RG26 £ 425,000BUY7 / 100.00 KM
OLIVERS CLOSE, BRAMLEY, TADLEY, HAMPSHIRE, RG26 £ 500,000BUY7 / 100.11 KM
Olivers Close, Bramley £ 500,000BUYUnknown0.11 KM
Kirby Drive, Bramley, Tadley, Hampshire, RG26 £ 385,000BUYUnknown0.12 KM
Olivers Close, Bramley, Tadley, Hampshire, RG26 £ 350,000BUY7 / 100.13 KM

Nearby Properties

AddressPriceDistance
9 Olivers Close £ 165,0000.11 KM
10 Olivers Close £ 249,9500.11 KM
11 Olivers Close £ 270,0000.11 KM
16 Olivers Close £ 545,0000.11 KM
6 Olivers Close £ 180,0000.11 KM