Howards says ..
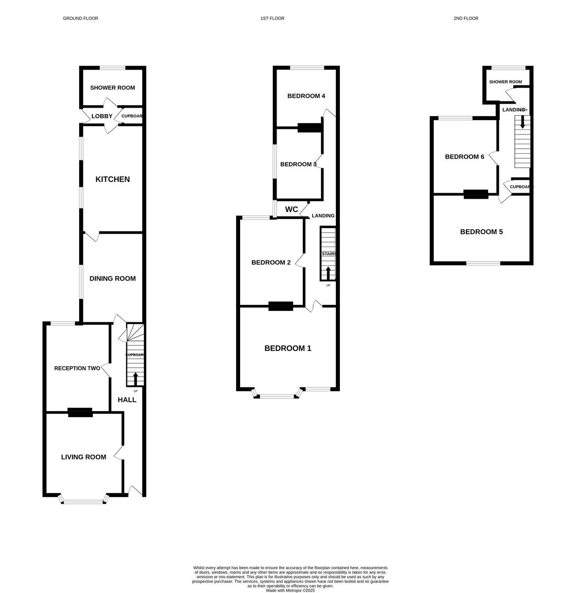
Charming Family Home with Great Potential! This spacious property features 2 lounges, a dining room, and a kitchen with a breakfast bar. With 5 bedrooms and 2 shower rooms across two floors, there's room for everyone. Steps from a green, park and beach
Property Oracle says ..
This six-bedroom, two-bathroom property located on North Denes Road in Great Yarmouth, Norfolk presents a compelling opportunity for buyers seeking a large family home with potential. The property’s location is noteworthy, with convenient proximity to the seafront, local amenities, and several schools. The Great Yarmouth train station is also within reach, adding to its appeal. However, a thorough review of the presented images reveals a mixed bag in terms of condition. While some areas, such as the kitchen, appear to have undergone some degree of modernization, others clearly require attention. Several bedrooms exhibit outdated features and appear to be in need of updating, alongside at least one of the bathrooms. The flooring in some areas also appears worn. The small enclosed rear garden offers a degree of outdoor space, although it isn’t extensive. Given its proximity to the coast and the amenities of Great Yarmouth, the property holds potential value. However, potential buyers must carefully consider the required renovations and updates to estimate accurate costs. The six bedrooms present a significant benefit if the buyer needs several rooms, but it is important to bear in mind that this comes with the large responsibility of keeping it habitable and maintained. The price, while seeming reasonably competitive within the context of similar listings in the area, should be viewed in conjunction with the substantial costs associated with renovations and modernisation. Potential buyers should obtain a professional survey and factor in renovation costs before making an offer. Overall, this property presents a substantial project, rather than a move-in ready home.
Therefore, we give this property 5 / 10. *Disclaimer: This is our option and does constitute a recommendation or financial advice. Do your own research. *
- Price
- 7
- Condition
- 5
- Location
- 7
- Land
- 3
- Bedrooms
- 6
- Bathrooms
- 2
- Sqft (est)
- 1,300.00
The heatmap indicates the level of crime in the area. The color of the heatmap indicates the crime severity and recency.
Metrics Year-on-Year
- Average area value
- 170,000.00 £Increased by 4.27 %
- Est sale value
- 284,700.00 £Increased by 28.82 %
- Average area rental value
- 840.00 £/moIncreased by 14.29 %
- Est letting value
- 1,300.00 £/mo
- Est rental Yield
- 5.93 %Increased by 9.61 %
- Crime Rate
- 4.00 %Unchanged by 0.00 %
Agent Activity
Howards created the listing.
Nearby Schools
| Name | Type | Ofsted | Distance |
|---|---|---|---|
| Great Yarmouth Charter Academy | Free Schools | Good | 0.21 KM |
| Northgate Primary School | Academy Converter | 0.80 KM | |
| Bure Park Specialist Academy | Free Schools Special | 0.85 KM | |
| Visiting Teacher Service East At Education Services Centre | Miscellaneous | 0.90 KM | |
| Novaturient School | Other Independent Special School | Good | 0.90 KM |
Images
Nearby Streets
| Name | Average Price | Average Sqft | Distance |
|---|---|---|---|
| Astley Cooper Place | £ 0 | 0 | 0.00 KM |
| Churchill Road | £ 220,625 | 0 | 0.00 KM |
| Arundel Road | £ 160,000 | 0 | 0.00 KM |
| Royal Avenue | £ 0 | 0 | 0.00 KM |
| Belvidere Road | £ 140,000 | 0 | 0.00 KM |
Nearby Transport
| Name | NLC | TLC | Distance |
|---|---|---|---|
| Great Yarmouth | 7328 | GYM | 1.59 KM |
Nearby Listings
| Address | Price | Type | Score | Distance |
|---|---|---|---|---|
| North Denes Road, Great Yarmouth | £ 230,000 | BUY | 5 / 10 | 0.00 KM |
| North Denes Road, Great Yarmouth | £ 210,000 | BUY | 6 / 10 | 0.03 KM |
| North Denes Road, Great Yarmouth | £ 325,000 | BUY | 6 / 10 | 0.09 KM |
| 10 North Denes Road, Great Yarmouth, Norfolk NR30 4LW | £ 200,000 | BUY | 4 / 10 | 0.12 KM |
| North Denes Road, Great Yarmouth | £ 300,000 | BUY | Unknown | 0.13 KM |
Nearby Properties
| Address | Price | Distance |
|---|---|---|
| 106 North Denes Road | £ 217,000 | 0.03 KM |
| 101 North Denes Road | £ 187,796 | 0.03 KM |
| 107 North Denes Road | £ 129,000 | 0.03 KM |
| 103 North Denes Road | £ 220,000 | 0.03 KM |
| 109 North Denes Road | £ 165,000 | 0.03 KM |