Derby Avenue, Harrow, Greater London, HA3 5JU
By Andrew Pearce
£ 365,000
Reviews
3 out of 5 stars
Andrew Pearce says ..
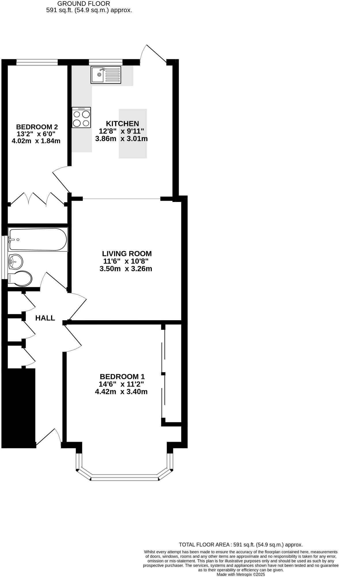
A two bedroom ground floor maisonette, with no service charge and no ground rent. Chain free sale.
Property Oracle says ..
This is a two-bedroom maisonette in Harrow Weald, Greater London. The property is in reasonable condition and has a modern kitchen. It also benefits from having a garden. The location is good, with schools and transportation links nearby. The list price of £365,000 seems reasonable for the area. The property is located 1.33KM from Headstone Lane station.
Therefore, we give this property 7 / 10. *Disclaimer: This is our option and does constitute a recommendation or financial advice. Do your own research. *
- Price
- 8
- Condition
- 7
- Location
- 7
- Land
- 6
- Bedrooms
- 2
- Bathrooms
- 1
- Sqft (est)
- 590.94
The heatmap indicates the level of crime in the area. The color of the heatmap indicates the crime severity and recency.
Metrics Year-on-Year
- Average area value
- 1,226,000.00 £Increased by 57.72 %
- Est sale value
- 907,683.84 £Increased by 218.01 %
- Average area rental value
- 2,238.00 £/moDecreased by 40.32 %
- Est letting value
- 1,181.88 £/moUnchanged by 0.00 %
- Est rental Yield
- 2.19 %Decreased by 62.18 %
- Crime Rate
- 3.00 %Unchanged by 0.00 %
Agent Activity
Andrew Pearce created the listing.
Nearby Schools
| Name | Type | Ofsted | Distance |
|---|---|---|---|
| Harrow Collegiate | Sixth Form Centres | 0.42 KM | |
| Children'S Centre At Whitefriars | Children's Centre Linked Site | 0.69 KM | |
| Salvatorian Roman Catholic College | Academy Converter | Good | 0.73 KM |
| Whitefriars School | Academy Converter | Outstanding | 0.73 KM |
| Kingsley High School | Community Special School | Outstanding | 0.76 KM |
Images
Nearby Streets
| Name | Average Price | Average Sqft | Distance |
|---|---|---|---|
| Derby Avenue | £ 0 | 0 | 0.00 KM |
| Mulberry Place | £ 0 | 0 | 0.00 KM |
| Mulberry Place | £ 895,000 | 0 | 0.00 KM |
| College Avenue | £ 0 | 0 | 0.00 KM |
| Fenton Road | £ 623,317 | 0 | 0.00 KM |
Nearby Transport
| Name | NLC | TLC | Distance |
|---|---|---|---|
| Headstone Lane | 1434 | HDL | 1.33 KM |
| Harrow And Wealdstone | 1397 | HRW | 1.66 KM |
| Hatch End | 1398 | HTE | 2.69 KM |
| Harrow-On-The-Hill | 598 | HOH | 2.76 KM |
| Kenton | 1399 | KNT | 3.89 KM |
Nearby Listings
| Address | Price | Type | Score | Distance |
|---|---|---|---|---|
| Derby Avenue, Harrow, Greater London, HA3 5JU | £ 365,000 | BUY | 7 / 10 | 0.00 KM |
| Derby Avenue, Harrow, Middlesex HA3 | £ 550,000 | BUY | 6 / 10 | 0.03 KM |
| Derby Avenue, Harrow, Middlesex | £ 355,000 | BUY | 7 / 10 | 0.04 KM |
| Stox Mead, Harrow | £ 625,000 | BUY | 6 / 10 | 0.07 KM |
| Clewer Crescent, Harrow Weald | £ 535,000 | BUY | 6 / 10 | 0.09 KM |
Nearby Properties
| Address | Price | Distance |
|---|---|---|
| 9 Derby Avenue | £ 405,000 | 0.03 KM |
| 10 Derby Avenue | £ 438,000 | 0.03 KM |
| 8a Derby Avenue | £ 125,000 | 0.03 KM |
| 19 Derby Avenue | £ 400,000 | 0.03 KM |
| 21a Derby Avenue | £ 350,000 | 0.03 KM |