Connells says ..
These three bedroom homes at the popular Saxon Park development are available to buy via Shared Ownership. Shares available from 40-75% with the option to staircase to 100% in the future. Rents from £440 based on a 40% share with a monthly service charge of £65.94 and a minimum deposit required o...
Property Oracle says ..
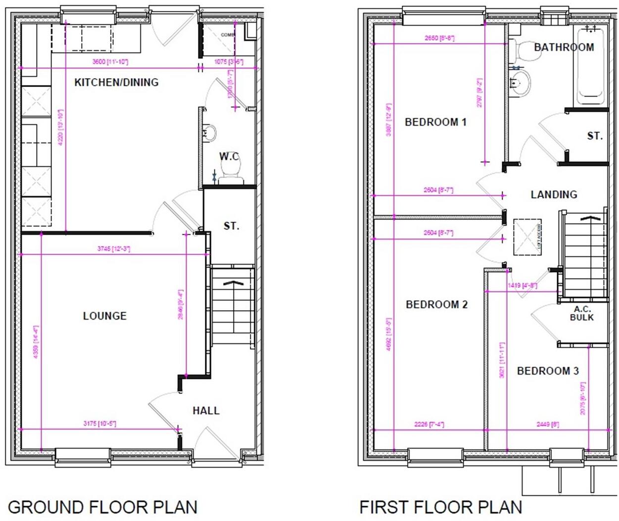
This property is a 2-bedroom, 1-bathroom house located in the Cottage Farm development in Oadby, Leicester. Oadby is generally considered a desirable area with good schools and amenities. The property itself appears to be a new-build, showing good exterior condition based on the images. However, the lack of information about the property’s interior and the absence of a garden are significant drawbacks. The list price of £128,000 is considerably lower than other properties in the area, which could indicate a good value proposition, but further details are needed to confirm this. The lack of square footage for nearby properties makes direct comparison difficult. The absence of a garden will likely appeal to a limited segment of buyers. Overall, the property presents a potentially attractive option for first-time buyers or investors looking for a relatively affordable property in a good location, but the lack of land and limited information require further investigation before a definitive assessment can be made. Potential buyers should carefully consider the trade-offs between price and the lack of outdoor space.
Therefore, we give this property 6 / 10. *Disclaimer: This is our option and does constitute a recommendation or financial advice. Do your own research. *
- Price
- 7
- Condition
- 8
- Location
- 7
- Land
- 2
- Bedrooms
- 2
- Bathrooms
- 1
- Sqft (est)
- 1,202.01
The heatmap indicates the level of crime in the area. The color of the heatmap indicates the crime severity and recency.
Metrics Year-on-Year
- Average area value
- 305,000.00 £Increased by 0.19 %
- Est sale value
- 328,148.73 £Decreased by 4.88 %
- Average area rental value
- 750.00 £/moDecreased by 12.18 %
- Est letting value
- 0.00 £/mo
- Est rental Yield
- 2.95 %Decreased by 12.46 %
- Crime Rate
- 53.00 %Unchanged by 0.00 %
Agent Activity
Connells created the listing.
Nearby Schools
| Name | Type | Ofsted | Distance |
|---|---|---|---|
| Woodland Grange Primary School | Academy Converter | 0.81 KM | |
| Beauchamp College | Academy Converter | 0.97 KM | |
| Gartree High School | Academy Converter | Outstanding | 1.14 KM |
| Brocks Hill Primary School | Academy Converter | 1.44 KM | |
| Manor High School | Academy Converter | Good | 1.86 KM |
Images
Nearby Streets
| Name | Average Price | Average Sqft | Distance |
|---|---|---|---|
| Laurel Drive | £ 0 | 0 | 0.00 KM |
| Weston Rise | £ 0 | 0 | 0.00 KM |
| Windsor Close | £ 0 | 0 | 0.00 KM |
| Belvoir Close | £ 0 | 0 | 0.00 KM |
| Richmond Way | £ 312,500 | 0 | 0.00 KM |
Nearby Transport
| Name | NLC | TLC | Distance |
|---|---|---|---|
| South Wigston | 1949 | SWS | 7.80 KM |
| Leicester | 1947 | LEI | 8.42 KM |
Nearby Listings
| Address | Price | Type | Score | Distance |
|---|---|---|---|---|
| Jamie Marcus Way, Oadby, Leicester, Leicestershire, LE2 | £ 295,000 | BUY | 7 / 10 | 0.00 KM |
| Cottage Farm, Oadby, Leicester | £ 128,000 | BUY | 6 / 10 | 0.00 KM |
| Jamie Marcus Way, Cottage Farm, Oadby | £ 550,000 | BUY | 9 / 10 | 0.00 KM |
| Durrad Drive, Oadby, Leicester | £ 350,000 | BUY | 7 / 10 | 0.03 KM |
| Durrad Drive, Oadby, Leicester | £ 330,000 | BUY | 7 / 10 | 0.03 KM |
Nearby Properties
| Address | Price | Distance |
|---|---|---|
| 15 Hyde Close | £ 295,000 | 0.10 KM |
| 14 Hyde Close | £ 213,000 | 0.10 KM |
| 2 Hyde Close | £ 250,000 | 0.10 KM |
| 13 Hyde Close | £ 147,000 | 0.10 KM |
| 8 Hyde Close | £ 380,000 | 0.10 KM |