GA
Macclesfield Road, Whaley Bridge, High Peak
By Gascoigne Halman
£ 250,000
Reviews
3 out of 5 stars
Gascoigne Halman says ..
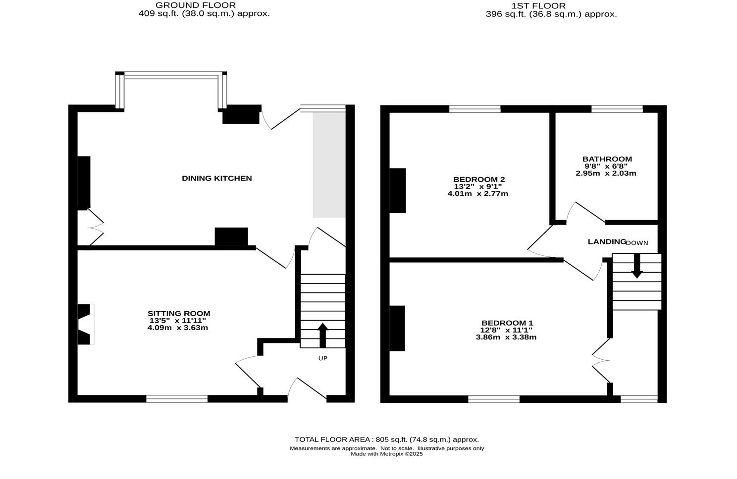
An Attractive PERIOD SEMI DETACHED HOME which is nicely presented throughout and has EXCELLENT bright spacious LIVING AND DINING KITCHEN SPACE. The property has the privilege of a nice enclosed GARDEN to the rear and a useful STONE OUTBUILDING. Popular location close to the town with good ameniti...
Property Oracle says ..
Therefore, we give this property 7 / 10. *Disclaimer: This is our option and does constitute a recommendation or financial advice. Do your own research. *
- Price
- 8
- Condition
- 7
- Location
- 7
- Land
- 6
- Bedrooms
- 2
- Bathrooms
- 1
- Sqft (est)
- 805.00
The heatmap indicates the level of crime in the area. The color of the heatmap indicates the crime severity and recency.
Metrics Year-on-Year
- Average area value
- 334,167.00 £Increased by 24.23 %
- Est sale value
- 206,885.00 £Decreased by 19.44 %
- Average area rental value
- 1,252.00 £/moIncreased by 4.33 %
- Est letting value
- 0.00 £/moDecreased by 100.00 %
- Est rental Yield
- 4.50 %Decreased by 15.89 %
- Crime Rate
- 10.00 %Unchanged by 0.00 %
from 269,000.00 £
from 256,795.00 £
from 1,200.00 £/mo
from 805.00 £/mo
from 5.35 %
from 10.00 %
Agent Activity
Gascoigne Halman created the listing.
Nearby Schools
| Name | Type | Ofsted | Distance |
|---|---|---|---|
| Taxal And Fernilee Cofe Primary School | Voluntary Controlled School | Good | 0.32 KM |
| Whaley Bridge Primary School | Community School | Requires improvement | 0.89 KM |
| Furness Vale Primary And Nursery School | Community School | Good | 2.92 KM |
| Kettleshulme St James Cofe (Va) Primary School | Voluntary Aided School | Good | 3.17 KM |
| Buxworth Primary School | Community School | Good | 3.23 KM |
Images
Nearby Streets
| Name | Average Price | Average Sqft | Distance |
|---|---|---|---|
| Overton Lane | £ 0 | 0 | 0.00 KM |
| Linglongs Road | £ 426,235 | 0 | 0.00 KM |
| Vaughan Road | £ 0 | 0 | 0.00 KM |
| Manor Road | £ 0 | 0 | 0.00 KM |
| Williamson Crescent | £ 0 | 0 | 0.00 KM |
Nearby Transport
| Name | NLC | TLC | Distance |
|---|---|---|---|
| Whaley Bridge | 2772 | WBR | 1.20 KM |
| Furness Vale | 2952 | FNV | 2.97 KM |
| New Mills Newtown | 2769 | NMN | 4.55 KM |
| New Mills Central | 2974 | NMC | 4.98 KM |
| Chinley | 2823 | CLY | 5.67 KM |
Nearby Listings
| Address | Price | Type | Score | Distance |
|---|---|---|---|---|
| Macclesfield Road, Whaley Bridge, High Peak | £ 250,000 | BUY | 7 / 10 | 0.00 KM |
| Macclesfield Road, Whaley Bridge, SK23 | £ 365,000 | BUY | 7 / 10 | 0.07 KM |
| Reddish Avenue, Whaley Bridge, High Peak | £ 239,000 | BUY | 7 / 10 | 0.10 KM |
| Mereside Gardens, Whaley Bridge, High Peak | £ 489,000 | BUY | 6 / 10 | 0.13 KM |
| Mereside Gardens, Whaley Bridge, SK23 | £ 475,000 | BUY | Unknown | 0.13 KM |
Nearby Properties
| Address | Price | Distance |
|---|---|---|
| 11 Reddish Lane | £ 277,000 | 0.10 KM |
| 5 Reddish Lane | £ 220,000 | 0.10 KM |
| 6 Reddish Lane | £ 362,000 | 0.10 KM |
| 145 Macclesfield Road | £ 210,000 | 0.14 KM |
| 165 Macclesfield Road | £ 60,000 | 0.16 KM |