RDR Dassaur says ..
A well located and functional three bedroom mid-terraced house in the heart of CV1.
Property Oracle says ..
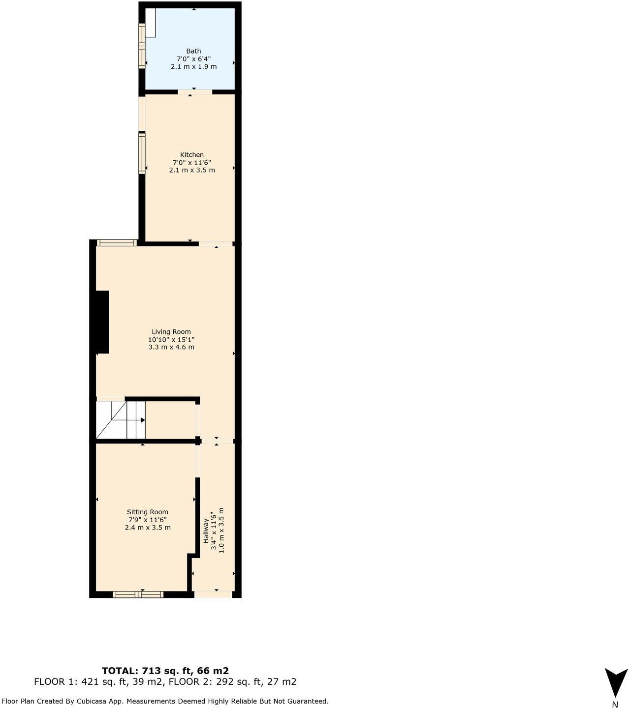
This three-bedroom terraced house in Coventry is located close to good schools and transport links. The property benefits from a rear garden, however, the images suggest the property is in need of some modernisation and updating. The list price is below the average price for the area, but significantly lower than the average price per square foot. This could be due to the condition of the property requiring renovation. Further investigation into the specifics of the required works is recommended to determine the true value.
Therefore, we give this property 5 / 10. *Disclaimer: This is our option and does constitute a recommendation or financial advice. Do your own research. *
- Price
- 6
- Condition
- 4
- Location
- 7
- Land
- 5
- Bedrooms
- 3
- Bathrooms
- 1
- Sqft (est)
- 710.42
The heatmap indicates the level of crime in the area. The color of the heatmap indicates the crime severity and recency.
Metrics Year-on-Year
- Average area value
- 234,977.00 £Increased by 10.88 %
- Est sale value
- 208,863.48 £Increased by 28.95 %
- Average area rental value
- 1,065.00 £/moDecreased by 1.11 %
- Est letting value
- 710.42 £/moUnchanged by 0.00 %
- Est rental Yield
- 5.44 %Decreased by 10.82 %
- Crime Rate
- 7.00 %Unchanged by 0.00 %
Agent Activity
RDR Dassaur created the listing.
Nearby Schools
| Name | Type | Ofsted | Distance |
|---|---|---|---|
| Gosford Park Primary School | Community School | Good | 0.18 KM |
| Gosford Park Children'S Centre | Children's Centre | 0.18 KM | |
| Blue Coat Church Of England School And Music College | Academy Converter | Good | 0.43 KM |
| Summit School | Other Independent Special School | 0.74 KM | |
| All Saints Church Of England Primary School | Voluntary Controlled School | Good | 0.82 KM |
Images
Nearby Streets
| Name | Average Price | Average Sqft | Distance |
|---|---|---|---|
| Sky Blue Way | £ 0 | 0 | 0.00 KM |
| London Road | £ 180,000 | 0 | 0.00 KM |
| St Michael's Road | £ 0 | 0 | 0.00 KM |
| Spring Close | £ 0 | 0 | 0.00 KM |
| Vernon Close | £ 0 | 0 | 0.00 KM |
Nearby Transport
| Name | NLC | TLC | Distance |
|---|---|---|---|
| Coventry | 1030 | COV | 2.59 KM |
| Coventry Arena | 7416 | CAA | 4.98 KM |
| Canley | 1129 | CNL | 6.36 KM |
| Bedworth | 1165 | BEH | 8.84 KM |
Nearby Listings
| Address | Price | Type | Score | Distance |
|---|---|---|---|---|
| Humber Avenue, Coventry, CV1 | £ 165,000 | BUY | 5 / 10 | 0.00 KM |
| Humber Avenue, Stoke, Coventry, CV1 | £ 220,000 | BUY | Unknown | 0.03 KM |
| St. Georges Road, Coventry | £ 330,000 | BUY | Unknown | 0.08 KM |
| Welland Road, Coventry, CV1 | £ 170,000 | BUY | 6 / 10 | 0.10 KM |
| St. Georges Road, Coventry | £ 325,000 | BUY | 5 / 10 | 0.14 KM |
Nearby Properties
| Address | Price | Distance |
|---|---|---|
| 159 St Georges Road | £ 155,000 | 0.09 KM |
| 171 St Georges Road | £ 105,000 | 0.09 KM |
| 163 St Georges Road | £ 155,000 | 0.09 KM |
| 149 St Georges Road | £ 81,500 | 0.09 KM |
| 183 St Georges Road | £ 157,000 | 0.09 KM |