Stags says ..
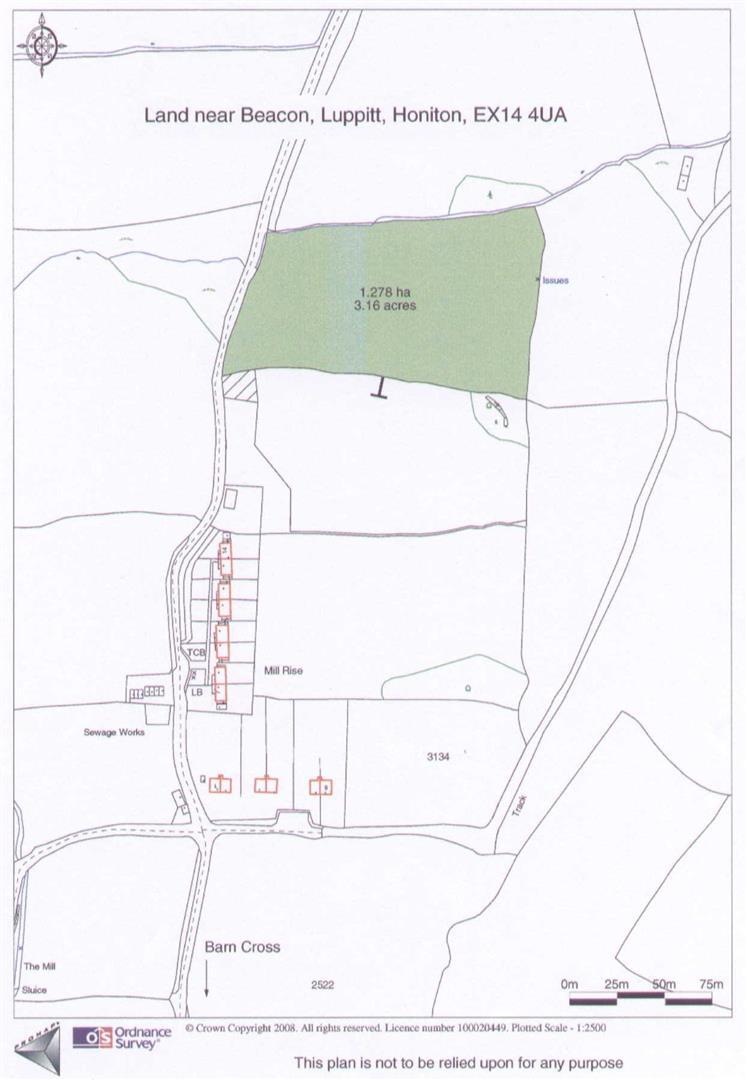
Attractively situated meadow, copse and fruit orchard all in 3.16 acres. Planning Permission for 10m x 6.8 m barn (Ref 12/2749/FUL - dated 24.5.2013)
Property Oracle says ..
This is a plot of land located in Luppitt, near Honiton, Devon. The asking price is £50,000. The land requires clearing. The nearest train station is 5.15KM away. The plot size is 12,780 sqft.
Therefore, we give this property 5 / 10. *Disclaimer: This is our option and does constitute a recommendation or financial advice. Do your own research. *
- Price
- 9
- Condition
- 1
- Location
- 5
- Land
- 8
- Bedrooms
- 0
- Bathrooms
- 0
- Lot (est)
- 12,780.00
The heatmap indicates the level of crime in the area. The color of the heatmap indicates the crime severity and recency.
Metrics Year-on-Year
- Average area value
- 285,000.00 £Decreased by 22.84 %
- Average area rental value
- 1,300.00 £/moDecreased by 22.39 %
- Est rental Yield
- 5.47 %Increased by 0.55 %
- Crime Rate
- 0.00 %
from 369,362.00 £
from 1,675.00 £/mo
from 5.44 %
from 0.00 %
Agent Activity
Stags created the listing.
Nearby Schools
| Name | Type | Ofsted | Distance |
|---|---|---|---|
| Honiton Primary School | Community School | Requires improvement | 4.59 KM |
| Honiton Community College | Academy Converter | Good | 4.73 KM |
| Upottery Primary School | Community School | Good | 5.33 KM |
| Littletown Primary Academy | Academy Converter | Good | 5.77 KM |
| Honiton & District Children'S Centre | Children's Centre | 5.88 KM |
Images
Nearby Streets
| Name | Average Price | Average Sqft | Distance |
|---|---|---|---|
| Church Hill | £ 0 | 0 | 0.00 KM |
| Fortfield | £ 0 | 0 | 0.00 KM |
| Franklyns Cottage | £ 0 | 0 | 0.00 KM |
Nearby Transport
| Name | NLC | TLC | Distance |
|---|---|---|---|
| Honiton | 5717 | HON | 5.15 KM |
Nearby Listings
| Address | Price | Type | Score | Distance |
|---|---|---|---|---|
| Millrise, Luppitt, Honiton, Devon, EX14 | £ 395,000 | BUY | 6 / 10 | 0.00 KM |
| Luppitt, Honiton | £ 50,000 | BUY | 5 / 10 | 0.00 KM |
| FOR SALE BY CLIVE EMSON ONLINE AUCTION 24 JULY 2025 - LUPPITT, NR HONITON - LOT 69 GUIDE £70,000 + FEES | £ 70,000 | BUY | 6 / 10 | 0.22 KM |
| Luppitt, Honiton, Devon | £ 565,000 | BUY | Unknown | 0.57 KM |
| Luppitt, Honiton | £ 550,000 | BUY | 7 / 10 | 0.58 KM |
Nearby Properties
| Address | Price | Distance |
|---|---|---|
| Pilgrims | £ 215,000 | 0.93 KM |
| 1 Rolleshayes Cottages | £ 325,000 | 1.27 KM |
| 2 Rolleshayes Cottages | £ 214,950 | 1.27 KM |
| 1 Moorlands Cottages | £ 320,000 | 1.75 KM |