GR
Maple Avenue, Macclesfield, SK11
By Griffin Property Co.
£ 290,000
Reviews
3 out of 5 stars
Griffin Property Co. says ..
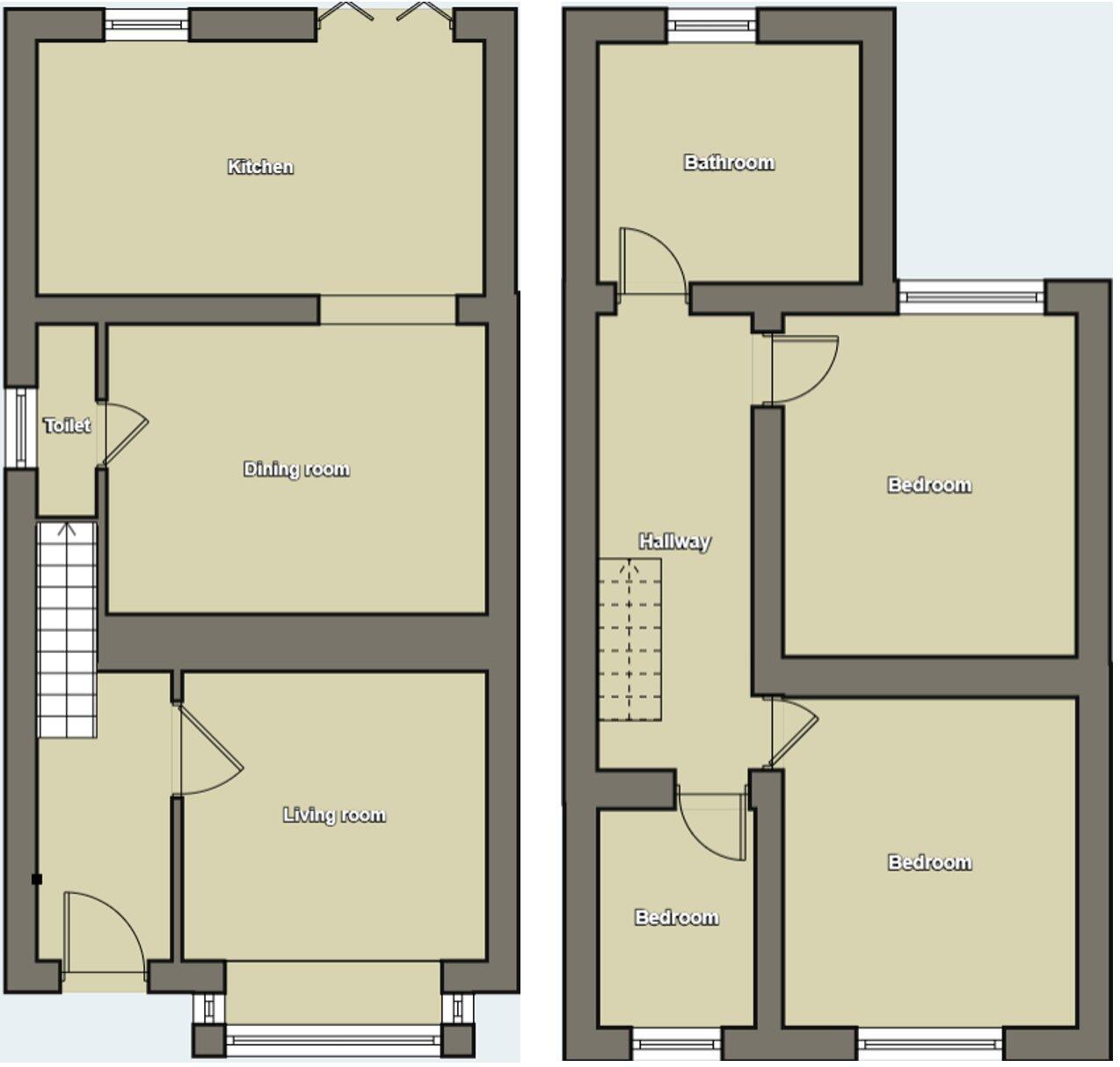
Situated on a road with access to South Park, this property offers a significant investment opportunity with a long, southerly facing garden that backs onto the road behind, providing the potential for a new residential property (subject to planning permission). Recently modernised, the home inc
Property Oracle says ..
Therefore, we give this property 7 / 10. *Disclaimer: This is our option and does constitute a recommendation or financial advice. Do your own research. *
- Price
- 8
- Condition
- 8
- Location
- 7
- Land
- 7
- Bedrooms
- 3
- Bathrooms
- 2
- Sqft (est)
- 909.00
The heatmap indicates the level of crime in the area. The color of the heatmap indicates the crime severity and recency.
Metrics Year-on-Year
- Average area value
- 296,738.00 £Increased by 1.41 %
- Est sale value
- 336,330.00 £Increased by 42.31 %
- Average area rental value
- 988.00 £/moIncreased by 25.38 %
- Est letting value
- 909.00 £/mo
- Est rental Yield
- 4.00 %Increased by 23.84 %
- Crime Rate
- 17.00 %Unchanged by 0.00 %
from 292,600.00 £
from 236,340.00 £
from 788.00 £/mo
from 0.00 £/mo
from 3.23 %
from 17.00 %
Agent Activity
Griffin Property Co. marked this listing as sold.
Griffin Property Co. created the listing.
Nearby Schools
| Name | Type | Ofsted | Distance |
|---|---|---|---|
| Christ The King Catholic And Church Of England Primary School | Academy Sponsor Led | 0.63 KM | |
| Ash Grove Children'S Centre | Children's Centre | 0.95 KM | |
| Ash Grove Academy | Academy Converter | 0.96 KM | |
| Parkroyal Community School | Academy Converter | Good | 1.43 KM |
| Macclesfield College | Further Education | Good | 1.56 KM |
Images
Nearby Streets
| Name | Average Price | Average Sqft | Distance |
|---|---|---|---|
| Smith Street | £ 0 | 0 | 0.00 KM |
| Harpur Close | £ 0 | 0 | 0.00 KM |
| Thistleton Close | £ 0 | 0 | 0.00 KM |
| Western Avenue | £ 0 | 0 | 0.00 KM |
| Mill Road | £ 0 | 0 | 0.00 KM |
Nearby Transport
| Name | NLC | TLC | Distance |
|---|---|---|---|
| Macclesfield | 2871 | MAC | 1.19 KM |
| Prestbury | 2875 | PRB | 5.49 KM |
| Adlington (Cheshire) | 2939 | ADC | 7.93 KM |
Nearby Listings
| Address | Price | Type | Score | Distance |
|---|---|---|---|---|
| Maple Avenue, Macclesfield, SK11 | £ 290,000 | BUY | 7 / 10 | 0.00 KM |
| Maple Avenue, Macclesfield | £ 225,000 | BUY | 4 / 10 | 0.12 KM |
| Maple Avenue, Macclesfield | £ 225,000 | BUY | Unknown | 0.12 KM |
| Maple Avenue, Macclesfield, SK11 | £ 295,000 | BUY | 7 / 10 | 0.12 KM |
| Briarwood Avenue, Macclesfield, SK11 | £ 200,000 | BUY | Unknown | 0.13 KM |
Nearby Properties
| Address | Price | Distance |
|---|---|---|
| 71 Byron Street | £ 110,000 | 0.10 KM |
| 61 Byron Street | £ 175,000 | 0.10 KM |
| 56 Byron Street | £ 85,000 | 0.10 KM |
| 65 Byron Street | £ 205,250 | 0.10 KM |
| 87 Byron Street | £ 175,000 | 0.10 KM |