North End Lodge, Elm Park Road, Pinner, Middlesex, HA5 3LA
By Andrew Pearce
£ 415,000
Reviews
4 out of 5 stars
Andrew Pearce says ..
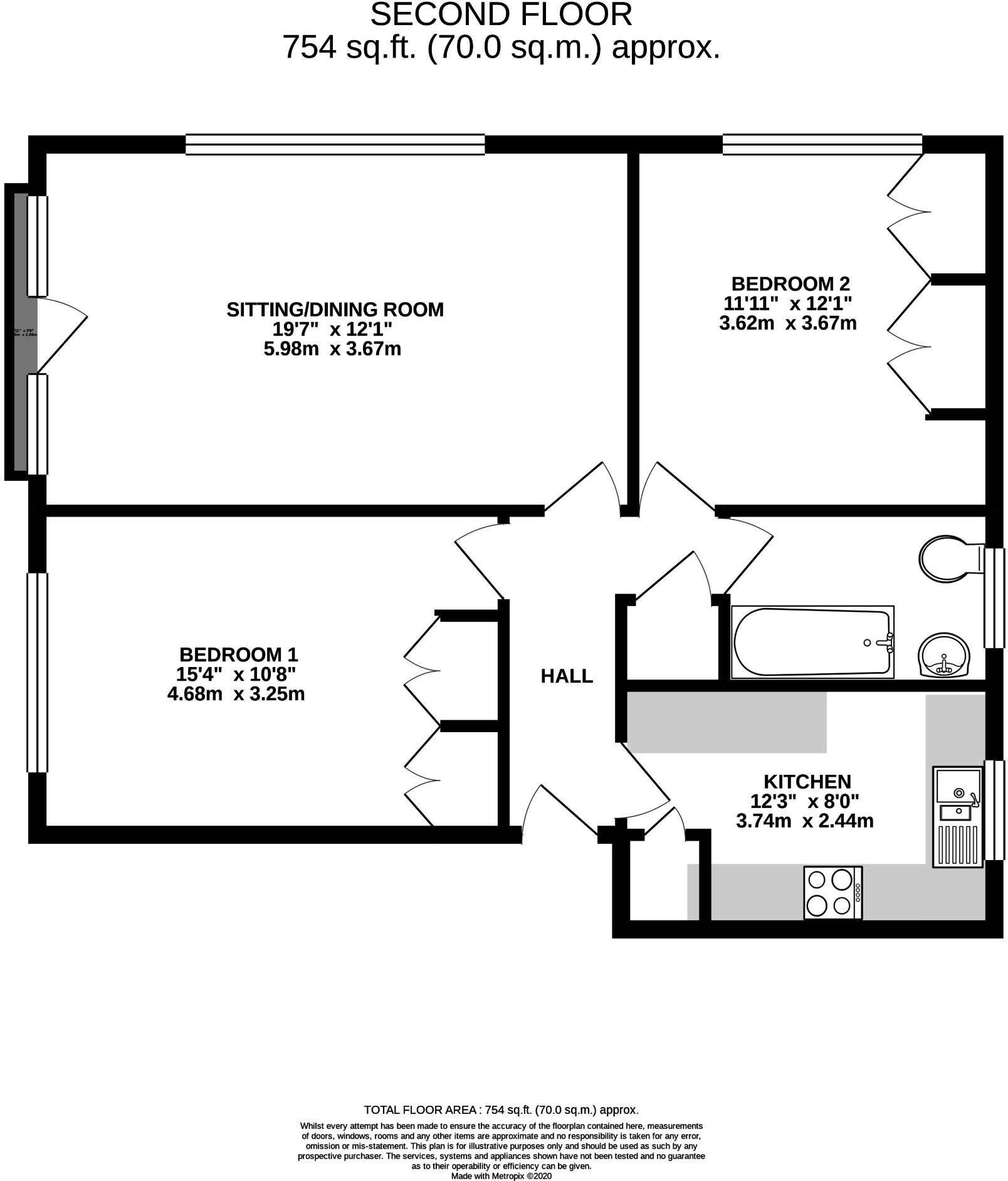
This delightful two-bedroom property situated on the second floor in North End Lodge, Pinner, boasts a spacious reception room, a modern bathroom, and a prime location.
Property Oracle says ..
This property is a two-bedroom apartment located in Pinner, Harrow. The apartment appears to be in good condition, with a recently updated bathroom and kitchen. The living area is spacious and benefits from natural light. While the exact square footage is not provided, the property is priced at £415,000, which is below the average price for the area (£698,814). However, the average price per square foot in the area is £532, and without knowing the square footage of this property, it is difficult to definitively assess the value. The location is convenient, with several schools and transportation options nearby. The property is within walking distance of West Lodge Primary School (Outstanding Ofsted rating) and Pinner Wood School (Outstanding Ofsted rating). Transportation options include several London Overground and Underground stations within a reasonable distance. Information on the plot size and garden is not available.
Therefore, we give this property 8 / 10. *Disclaimer: This is our option and does constitute a recommendation or financial advice. Do your own research. *
- Price
- 7
- Condition
- 8
- Location
- 9
- Land
- 0
- Bedrooms
- 2
- Bathrooms
- 1
The heatmap indicates the level of crime in the area. The color of the heatmap indicates the crime severity and recency.
Metrics Year-on-Year
- Average area value
- 779,369.00 £Increased by 6.50 %
- Average area rental value
- 2,356.00 £/moIncreased by 14.98 %
- Est rental Yield
- 3.63 %Increased by 8.04 %
- Crime Rate
- 2.00 %Unchanged by 0.00 %
Agent Activity
Andrew Pearce created the listing.
Nearby Schools
| Name | Type | Ofsted | Distance |
|---|---|---|---|
| West Lodge Primary School | Community School | Outstanding | 0.60 KM |
| Pinner Wood | Children's Centre Linked Site | 0.98 KM | |
| Pinner Wood School | Community School | Outstanding | 1.09 KM |
| Reddiford School | Other Independent School | 1.34 KM | |
| Harlyn Primary School | Community School | Good | 1.52 KM |
Images
Nearby Streets
| Name | Average Price | Average Sqft | Distance |
|---|---|---|---|
| Mansard Close | £ 0 | 0 | 0.00 KM |
| Northfield Avenue | £ 1,525,000 | 0 | 0.00 KM |
| Tudor Road | £ 0 | 0 | 0.00 KM |
| Hillcrest Avenue | £ 0 | 0 | 0.00 KM |
| Cherry Court | £ 230,000 | 0 | 0.00 KM |
Nearby Transport
| Name | NLC | TLC | Distance |
|---|---|---|---|
| Hatch End | 1398 | HTE | 2.62 KM |
| Carpenders Park | 1442 | CPK | 3.51 KM |
| Headstone Lane | 1434 | HDL | 3.54 KM |
| South Ruislip | 3057 | SRU | 4.61 KM |
| Bushey | 1395 | BSH | 5.45 KM |
Nearby Listings
| Address | Price | Type | Score | Distance |
|---|---|---|---|---|
| Elm Park Road, Pinner, HA5 | £ 385,000 | BUY | 6 / 10 | 0.00 KM |
| North End Lodge, Elm Park Road, Pinner, Middlesex, HA5 3LA | £ 415,000 | BUY | 8 / 10 | 0.00 KM |
| Milman Close, Pinner, Middlesex HA5 | £ 350,000 | BUY | 5 / 10 | 0.04 KM |
| Chigwell Hurst Court, Pinner, Middlesex | £ 475,000 | BUY | 6 / 10 | 0.08 KM |
| West End Lane, Pinner, London | £ 450,000 | BUY | Unknown | 0.10 KM |
Nearby Properties
| Address | Price | Distance |
|---|---|---|
| 7 Chigwell Hurst Court | £ 480,000 | 0.08 KM |
| 9 Chigwell Hurst Court | £ 260,000 | 0.08 KM |
| 11 Chigwell Hurst Court | £ 435,000 | 0.08 KM |
| 2 Chigwell Hurst Court | £ 450,000 | 0.08 KM |
| 8 Chigwell Hurst Court | £ 174,000 | 0.08 KM |