Great Leighs, Bourne
By Beebys Properties Ltd
£ 191,000
Reviews
3 out of 5 stars
Beebys Properties Ltd says ..
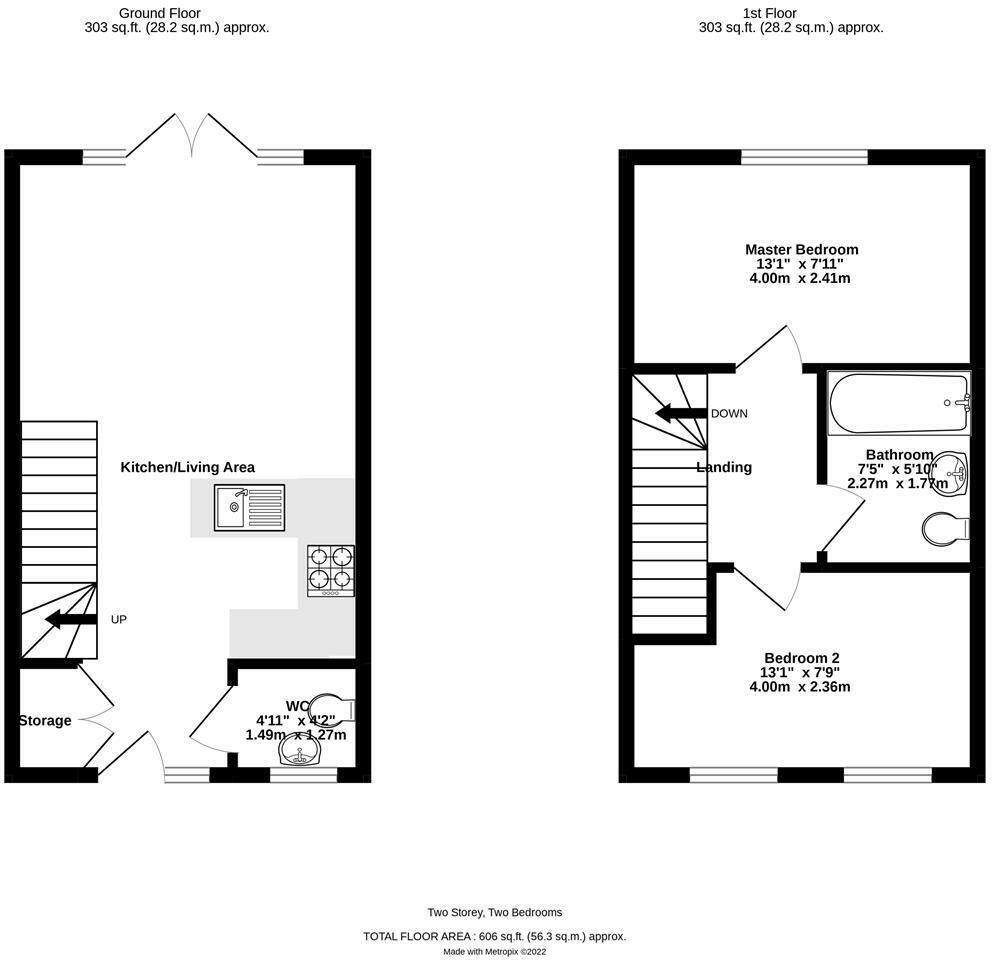
**IMMACULATE TWO BEDROOM SEMI-DETACHED HOME ON ELSEA PARK WITH TWO OFF ROAD PARKING SPACES!** Beebys Property Services are delighted to offer to the market this well presented, open plan home on Great Leighs. With two off road parking spaces to the front of the house, the property comprises of li...
Property Oracle says ..
This two-bedroom semi-detached house in Great Leighs, Bourne, Lincolnshire, presents itself as a well-maintained and modern property. The images show a clean, updated interior with a modern kitchen and bathrooms. The property benefits from off-street parking and a small, enclosed garden. The location is convenient, being relatively close to several well-regarded schools, which is a significant plus for families. While the lack of information on nearby public transport might be a minor consideration for some buyers, the overall value proposition appears quite positive, supported by the relatively lower price compared to some neighbouring properties. The absence of square footage information for the comparable properties makes a definitive conclusion about price per sqft difficult; however, the listing price appears to be competitive in the current market based on the provided information. Overall, the property represents a solid option for those seeking a modern and well-maintained home in a family-friendly area.
Therefore, we give this property 6 / 10. *Disclaimer: This is our option and does constitute a recommendation or financial advice. Do your own research. *
- Price
- 7
- Condition
- 8
- Location
- 7
- Land
- 4
- Bedrooms
- 2
- Bathrooms
- 2
- Sqft (est)
- 606.00
The heatmap indicates the level of crime in the area. The color of the heatmap indicates the crime severity and recency.
Metrics Year-on-Year
- Average area value
- 252,722.00 £Decreased by 7.54 %
- Est sale value
- 285,426.00 £Increased by 67.62 %
- Average area rental value
- 1,183.00 £/moIncreased by 4.41 %
- Est letting value
- 1,212.00 £/moIncreased by 100.00 %
- Est rental Yield
- 5.62 %Increased by 13.08 %
- Crime Rate
- 10.00 %Unchanged by 0.00 %
Agent Activity
Beebys Properties Ltd created the listing.
Nearby Schools
| Name | Type | Ofsted | Distance |
|---|---|---|---|
| Bourne Elsea Park Church Of England Primary Academy | Academy Sponsor Led | Good | 1.08 KM |
| Bourne Westfield Primary Academy | Academy Converter | Outstanding | 1.26 KM |
| Bourne Grammar School | Academy Converter | 1.64 KM | |
| Willoughby Academy | Academy Special Converter | 1.71 KM | |
| Bourne Abbey Church Of England Primary Academy | Academy Converter | Good | 2.10 KM |
Images
Nearby Streets
| Name | Average Price | Average Sqft | Distance |
|---|---|---|---|
| Carlisle Terrace | £ 0 | 0 | 0.00 KM |
| Hopper Road | £ 0 | 0 | 0.00 KM |
| Craigmore Close | £ 308,950 | 0 | 0.00 KM |
| Len Pick Way | £ 285,496 | 0 | 0.00 KM |
| Conway Drive | £ 250,000 | 0 | 0.00 KM |
Nearby Listings
| Address | Price | Type | Score | Distance |
|---|---|---|---|---|
| Haydock Park Drive, Bourne, PE10 | £ 320,000 | BUY | 7 / 10 | 0.04 KM |
| Haydock Park Drive, BOURNE | £ 550,000 | BUY | 7 / 10 | 0.04 KM |
| Haydock Park Drive, Bourne, PE10 | £ 350,000 | BUY | 6 / 10 | 0.04 KM |
| Uttoxeter Close, Bourne, PE10 | £ 225,000 | BUY | 7 / 10 | 0.08 KM |
| Uttoxeter Close, Bourne, Lincolnshire, PE10 | £ 235,000 | BUY | 6 / 10 | 0.09 KM |
Nearby Properties
| Address | Price | Distance |
|---|---|---|
| 3 Haydock Park Drive | £ 377,500 | 0.28 KM |
| 7 Haydock Park Drive | £ 215,000 | 0.28 KM |
| 33 Great Leighs | £ 190,000 | 0.35 KM |
| 8 Great Leighs | £ 229,995 | 0.35 KM |
| 5 Great Leighs | £ 362,000 | 0.35 KM |