Simon Blyth says ..
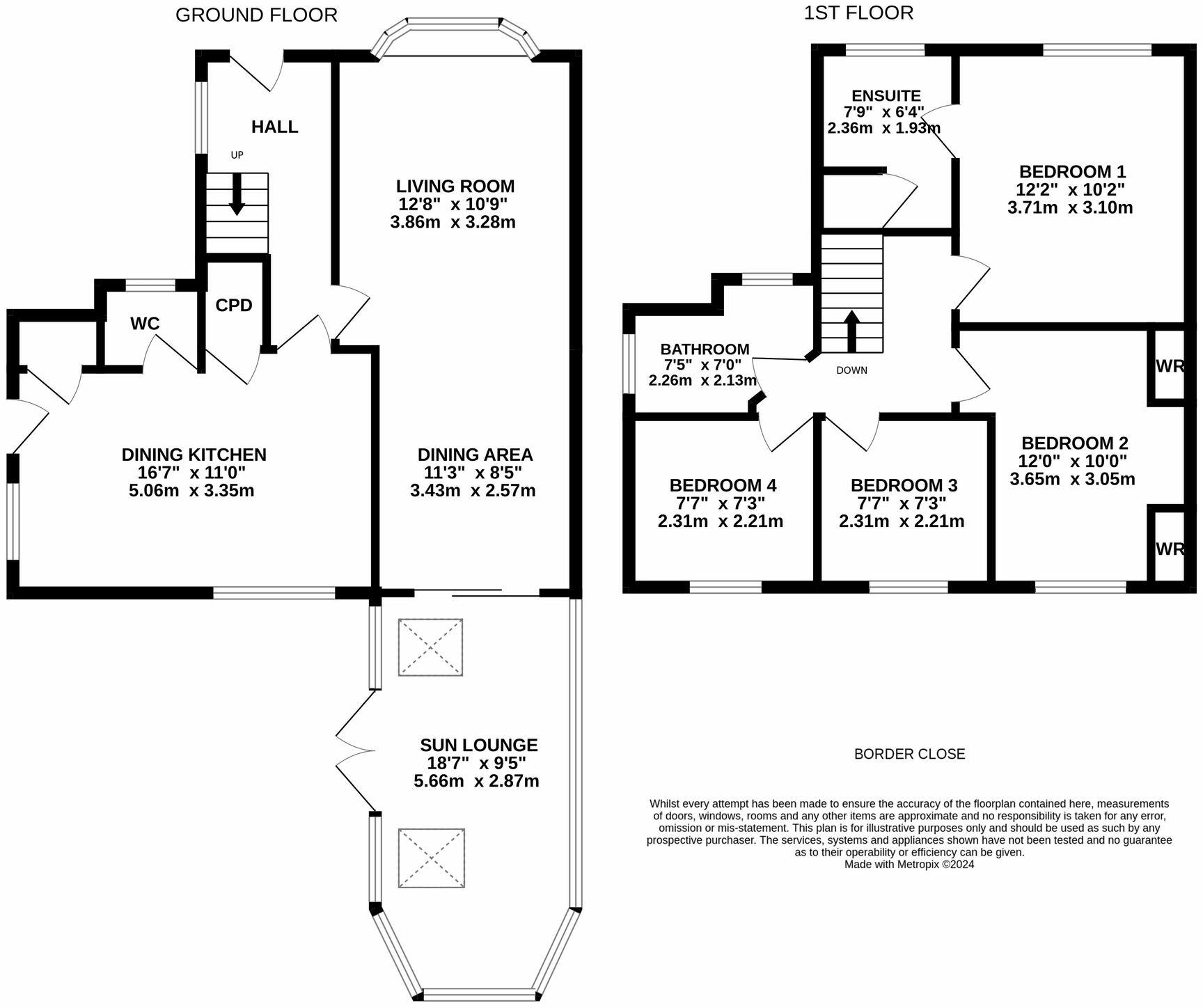
A deceptively spacious four bedroom detached family house situated in the top corner of a small cul de sac and enjoys a pleasant aspect to the rear over a generous low maintenance garden. The property is situated within this ever popular and well regarded residential area, close to a variety of l...
Property Oracle says ..
The property is a four-bedroom detached house located in Lindley, Huddersfield. The location is described as popular and well-regarded, with nearby amenities and good transport links. The property appears to be in good condition based on the provided images, which show a well-maintained interior and exterior. There is a substantial garden, featuring both paved and lawned areas and garden sheds. The list price of £385,000 seems reasonable considering the size, condition and location, although further analysis of local comparable properties and square footage pricing would be beneficial to confirm this.
Therefore, we give this property 8 / 10. *Disclaimer: This is our option and does constitute a recommendation or financial advice. Do your own research. *
- Price
- 7
- Condition
- 8
- Location
- 8
- Land
- 9
- Bedrooms
- 4
- Bathrooms
- 2
- Sqft (est)
- 2,551.15
The heatmap indicates the level of crime in the area. The color of the heatmap indicates the crime severity and recency.
Metrics Year-on-Year
- Average area value
- 248,333.00 £Decreased by 17.59 %
- Est sale value
- 576,559.90 £Decreased by 12.06 %
- Average area rental value
- 758.00 £/moDecreased by 6.88 %
- Est letting value
- 0.00 £/mo
- Est rental Yield
- 3.66 %Increased by 12.96 %
- Crime Rate
- 3.00 %Unchanged by 0.00 %
Agent Activity
Simon Blyth created the listing.
Nearby Schools
| Name | Type | Ofsted | Distance |
|---|---|---|---|
| Salendine Nook High School Academy | Academy Converter | Good | 0.84 KM |
| Huddersfield New College | Further Education | Outstanding | 0.85 KM |
| Lindley Children'S Centre | Children's Centre Linked Site | 1.43 KM | |
| Lindley Junior School | Academy Converter | 1.73 KM | |
| Lindley Church Of England Infant School | Academy Converter | 1.73 KM |
Images
Nearby Streets
| Name | Average Price | Average Sqft | Distance |
|---|---|---|---|
| Heather Court | £ 169,950 | 0 | 0.00 KM |
| Mendip Avenue | £ 0 | 0 | 0.00 KM |
| Catherine Close | £ 0 | 0 | 0.00 KM |
| Warren House Lane | £ 349,998 | 0 | 0.00 KM |
| Rock Terrace | £ 0 | 0 | 0.00 KM |
Nearby Transport
| Name | NLC | TLC | Distance |
|---|---|---|---|
| Lockwood | 8443 | LCK | 4.96 KM |
| Huddersfield | 8437 | HUD | 5.94 KM |
| Slaithwaite | 8450 | SWT | 6.49 KM |
| Berry Brow | 8431 | BBW | 6.57 KM |
| Halifax | 8411 | HFX | 6.88 KM |
Nearby Listings
| Address | Price | Type | Score | Distance |
|---|---|---|---|---|
| Border Close, Huddersfield, HD3 | £ 385,000 | BUY | 8 / 10 | 0.00 KM |
| Crosland Road, Oakes, Huddersfield | £ 300,000 | BUY | 7 / 10 | 0.05 KM |
| Border Close, Lindley, Huddersfield | £ 350,000 | BUY | 7 / 10 | 0.06 KM |
| Romsey Close, Huddersfield | £ 300,000 | BUY | 6 / 10 | 0.10 KM |
| Cowrakes Road, Huddersfield, West Yorkshire, HD3 | £ 150,000 | BUY | Unknown | 0.13 KM |
Nearby Properties
| Address | Price | Distance |
|---|---|---|
| 5 Border Close | £ 176,000 | 0.04 KM |
| 1 Border Close | £ 280,000 | 0.04 KM |
| 3 Border Close | £ 225,000 | 0.04 KM |
| 4 Border Close | £ 160,000 | 0.04 KM |
| 150 Crosland Road | £ 112,000 | 0.06 KM |