Church Road, Bickerstaffe, L39 0EB
By Ian Anthony Estates
£ 550,000
Reviews
3 out of 5 stars
Ian Anthony Estates says ..
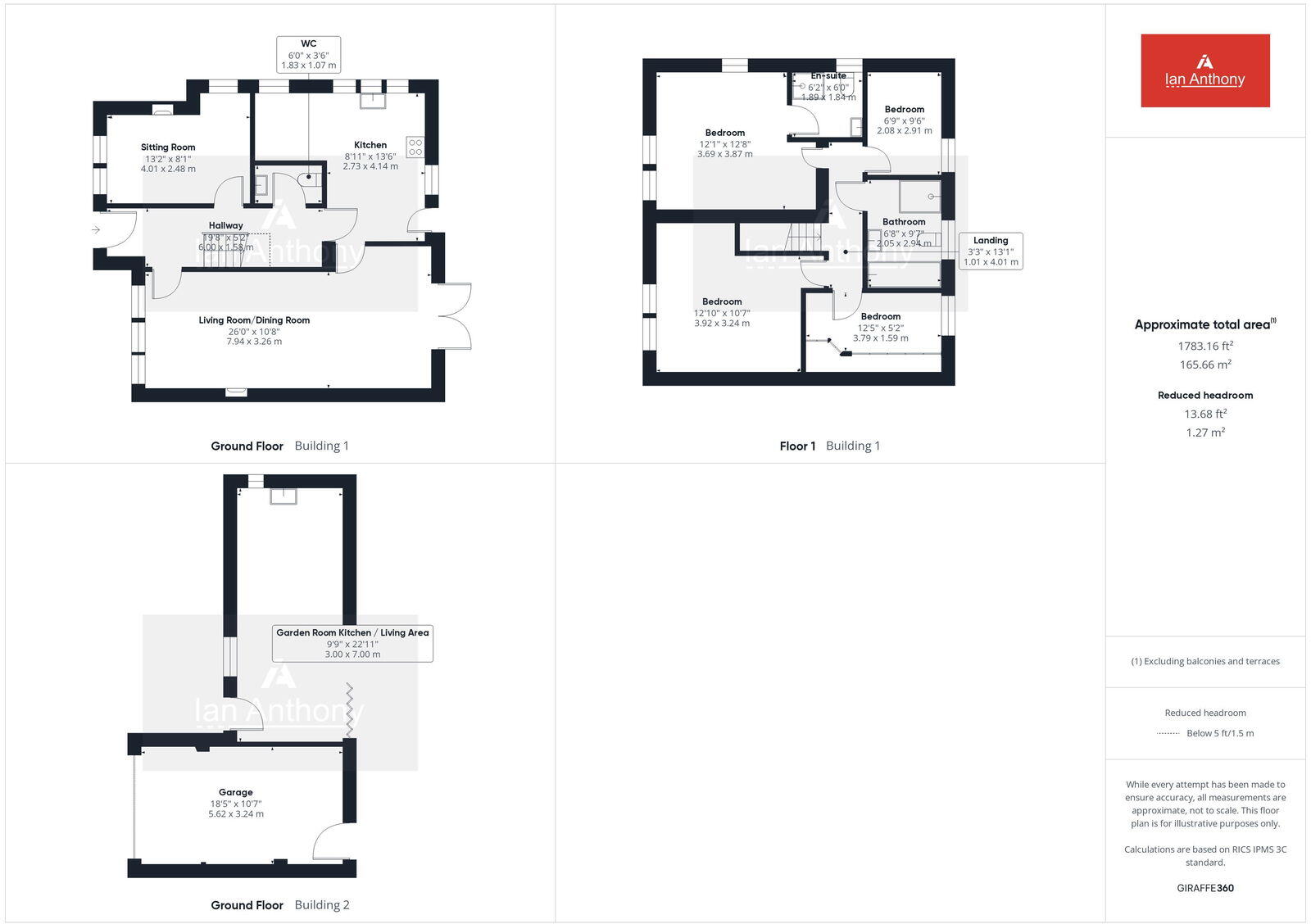
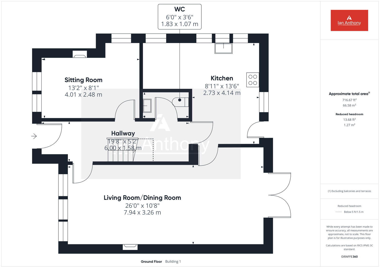
This stunning four-bedroom detached property offers spacious living both inside and out, perfect for family living situated in the idyllic rural location of Church Road, Bickerstaffe. Ground Floor accommodation comprises of an entrance hall, living room/dining room, modern kitchen, sitt...
Property Oracle says ..
This four-bedroom detached property in Bickerstaffe, Lancashire, presents as a well-maintained family home. The images showcase a modern interior with a recently updated kitchen and bathrooms. The living spaces appear spacious and well-designed, creating a comfortable and inviting atmosphere. The presence of a garden is a notable feature, though its exact size remains unclear. The property benefits from being close to a good primary school and the larger town of Ormskirk with improved transportation options and more amenities. The asking price is competitive, when considering similar properties in the vicinity, but the absence of specific plot size information and precise price per square foot data does present limitations for an exact comparative valuation. Overall, it appears to be a suitable option for families seeking a well-presented home in a relatively quiet and well-located setting near to transport and schools. Potential buyers should independently verify the plot size and investigate comparable property sales data for a thorough market assessment.
Therefore, we give this property 6 / 10. *Disclaimer: This is our option and does constitute a recommendation or financial advice. Do your own research. *
- Price
- 7
- Condition
- 8
- Location
- 7
- Land
- 4
- Bedrooms
- 4
- Bathrooms
- 3
- Sqft (est)
- 1,783.15
The heatmap indicates the level of crime in the area. The color of the heatmap indicates the crime severity and recency.
Metrics Year-on-Year
- Average area value
- 382,533.00 £Increased by 3.77 %
- Est sale value
- 656,199.20 £Increased by 5.44 %
- Average area rental value
- 1,090.00 £/moDecreased by 17.67 %
- Est letting value
- 1,783.15 £/moUnchanged by 0.00 %
- Est rental Yield
- 3.42 %Decreased by 20.65 %
- Crime Rate
- 0.00 %
Agent Activity
Ian Anthony Estates created the listing.
Nearby Schools
| Name | Type | Ofsted | Distance |
|---|---|---|---|
| Bickerstaffe Voluntary Controlled Church Of England School | Voluntary Controlled School | Good | 0.45 KM |
| Westhead Lathom St James' Church Of England Primary School | Voluntary Controlled School | Outstanding | 3.12 KM |
| St Richard'S Catholic Primary School, Skelmersdale | Voluntary Aided School | Outstanding | 4.16 KM |
| Wood Edge Independent School | Other Independent Special School | Requires improvement | 4.25 KM |
| Ormskirk Academy | Academy Sponsor Led | 4.52 KM |
Images
Nearby Transport
| Name | NLC | TLC | Distance |
|---|---|---|---|
| Ormskirk | 2281 | OMS | 5.87 KM |
| Rainford | 2404 | RNF | 6.06 KM |
| Aughton Park | 2215 | AUG | 6.35 KM |
| Town Green | 2283 | TWN | 7.03 KM |
| Burscough Junction | 2280 | BCJ | 7.04 KM |
Nearby Listings
| Address | Price | Type | Score | Distance |
|---|---|---|---|---|
| Church Road, Bickerstaffe | £ 860,000 | BUY | Unknown | 0.00 KM |
| Church Road, Bickerstaffe | £ 1,650,000 | BUY | 6 / 10 | 0.00 KM |
| Church Road, Bickerstaffe, L39 0EB | £ 550,000 | BUY | 6 / 10 | 0.00 KM |
| Church Road, Bickerstaffe L39 | £ 500,000 | BUY | 7 / 10 | 0.01 KM |
| Church Road, Bickerstaffe, L39 | £ 850,000 | BUY | 7 / 10 | 0.01 KM |
Nearby Properties
| Address | Price | Distance |
|---|---|---|
| 113 Church Road | £ 530,000 | 0.01 KM |
| The Windmill | £ 415,000 | 0.01 KM |
| 89 Church Road | £ 280,000 | 0.01 KM |
| 115 Church Road | £ 449,995 | 0.01 KM |
| 15 Church Road | £ 375,000 | 0.01 KM |