JA
Golford Road, Golford, Cranbrook, Kent, TN17
By Jackson-Stops
£ 1,200,000
Reviews
3 out of 5 stars
Jackson-Stops says ..
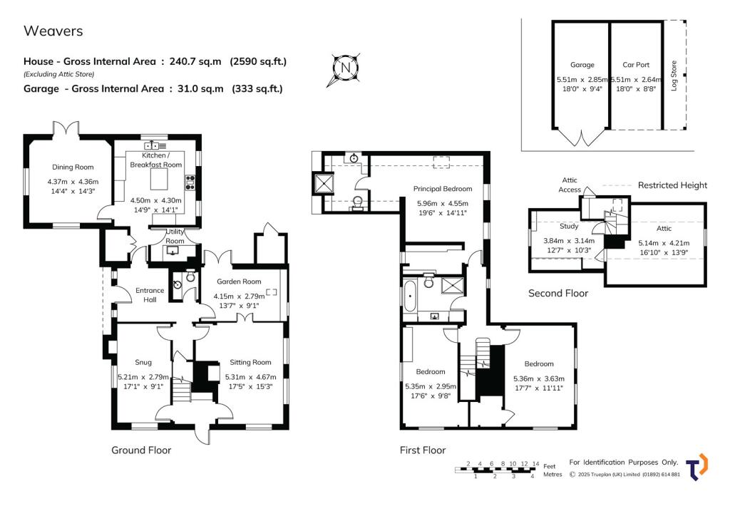
CHARMING AND MOST ATTRACTIVE GRADE II LISTED DETACHED HOUSE SET WITHIN DELIGHTFUL GARDENS, LOCATED WITHIN THE CRANBROOK SCHOOL CATCHMENT AREA AND EASY REACH OF CRANBROOK Weavers is a Grade II listed country house that dates from the 17th century and was originally two weavers cottages,...
Property Oracle says ..
Therefore, we give this property 7 / 10. *Disclaimer: This is our option and does constitute a recommendation or financial advice. Do your own research. *
- Price
- 6
- Condition
- 8
- Location
- 7
- Land
- 9
- Bedrooms
- 4
- Bathrooms
- 2
The heatmap indicates the level of crime in the area. The color of the heatmap indicates the crime severity and recency.
Metrics Year-on-Year
- Average area value
- 479,433.00 £Decreased by 27.08 %
- Average area rental value
- 1,500.00 £/moDecreased by 23.66 %
- Est rental Yield
- 3.75 %Increased by 4.46 %
- Crime Rate
- 0.00 %
from 657,519.00 £
from 1,965.00 £/mo
from 3.59 %
from 0.00 %
Agent Activity
Jackson-Stops created the listing.
Nearby Schools
| Name | Type | Ofsted | Distance |
|---|---|---|---|
| Dulwich Prep Cranbrook | Other Independent School | 0.62 KM | |
| Sissinghurst Voluntary Aided Church Of England Primary School | Voluntary Aided School | Good | 1.76 KM |
| Cranbrook School | Academy Converter | Outstanding | 2.70 KM |
| Benenden School | Other Independent School | 2.70 KM | |
| Belle Vue School | Other Independent Special School | 2.96 KM |
Images
Nearby Streets
| Name | Average Price | Average Sqft | Distance |
|---|---|---|---|
| Buckhurst Farm Lane | £ 0 | 0 | 0.00 KM |
| The Ashes | £ 0 | 0 | 0.00 KM |
| Common Road | £ 1,275,000 | 0 | 0.00 KM |
| Carpenters Meadow | £ 0 | 0 | 0.00 KM |
Nearby Transport
| Name | NLC | TLC | Distance |
|---|---|---|---|
| Staplehurst | 5228 | SPU | 8.30 KM |
Nearby Listings
| Address | Price | Type | Score | Distance |
|---|---|---|---|---|
| Golford Road, Golford, Cranbrook, Kent, TN17 | £ 1,200,000 | BUY | 7 / 10 | 0.00 KM |
| Course Horn Lane, Cranbrook, Kent, TN17 | £ 485,000 | BUY | 7 / 10 | 0.64 KM |
| Willow Shaw, Golford, Cranbrook, Kent | £ 1,650,000 | BUY | Unknown | 0.69 KM |
| Course Horn Lane, Cranbrook, Kent, TN17 | £ 1,000,000 | BUY | 7 / 10 | 0.77 KM |
| Coursehorn Mews, Cranbrook | £ 450,000 | BUY | 7 / 10 | 0.85 KM |
Nearby Properties
| Address | Price | Distance |
|---|---|---|
| Weavers | £ 995,000 | 0.30 KM |
| Stream Oast | £ 900,000 | 0.33 KM |
| Brindles | £ 430,000 | 0.92 KM |
| Golford Cottage | £ 500,000 | 0.92 KM |
| Golford Place | £ 825,000 | 0.93 KM |