Howards says ..
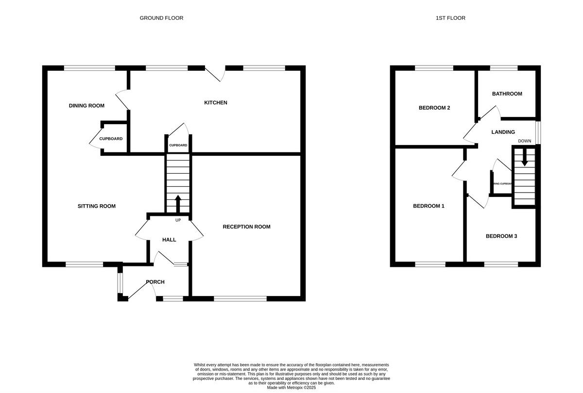
Extended Semi Detached House with off road parking, gardens, up to 4 beds including a large double ground floor bedroom or another reception room/playroom/lounge, 3 beds and bathroom all off landing, open lounge/diner and extended kitchen/diner
Property Oracle says ..
This property is a 4-bedroom, 1-bathroom semi-detached house located in Belton, Great Yarmouth. The property benefits from a good-sized rear garden, which is mainly paved, but includes a pergola, raised garden beds and a trampoline. The interior is presented in a generally good condition, although some areas may benefit from some modernisation. The kitchen is well-equipped and has been recently updated. The property is conveniently located near several primary schools with good Ofsted ratings, and is within reasonable distance of several train stations. Considering the average house price in the area, this property appears to be reasonably priced. However, it is important to note that the plot size is listed as 0.00 sqft, which may be an error.
Therefore, we give this property 7 / 10. *Disclaimer: This is our option and does constitute a recommendation or financial advice. Do your own research. *
- Price
- 7
- Condition
- 7
- Location
- 8
- Land
- 7
- Bedrooms
- 4
- Bathrooms
- 1
- Sqft (est)
- 1,450.00
The heatmap indicates the level of crime in the area. The color of the heatmap indicates the crime severity and recency.
Metrics Year-on-Year
- Average area value
- 181,582.00 £Decreased by 35.67 %
- Est sale value
- 343,650.00 £Decreased by 1.25 %
- Average area rental value
- 1,250.00 £/moIncreased by 5.66 %
- Est letting value
- 1,450.00 £/moUnchanged by 0.00 %
- Est rental Yield
- 8.26 %Increased by 64.21 %
- Crime Rate
- 34.00 %Unchanged by 0.00 %
Agent Activity
Howards created the listing.
Nearby Schools
| Name | Type | Ofsted | Distance |
|---|---|---|---|
| Village Green Childrens Centre | Children's Centre | 0.25 KM | |
| Moorlands Cofe Primary Academy | Academy Sponsor Led | Good | 0.25 KM |
| Woodlands Primary Academy | Academy Sponsor Led | Good | 3.06 KM |
| Hillside Primary School | Community School | Good | 3.27 KM |
| Homefield Vc Cofe Primary School | Voluntary Controlled School | Good | 3.76 KM |
Images
Nearby Streets
| Name | Average Price | Average Sqft | Distance |
|---|---|---|---|
| Saint David's Close | £ 225,000 | 0 | 0.00 KM |
| Breydon Waters | £ 0 | 0 | 0.00 KM |
| Cherry Lane | £ 0 | 0 | 0.00 KM |
Nearby Transport
| Name | NLC | TLC | Distance |
|---|---|---|---|
| Berney Arms | 7330 | BYA | 4.43 KM |
| Haddiscoe | 7300 | HAD | 6.41 KM |
| Somerleyton | 7320 | SYT | 6.67 KM |
| Great Yarmouth | 7328 | GYM | 7.87 KM |
Nearby Listings
| Address | Price | Type | Score | Distance |
|---|---|---|---|---|
| The Naze, Belton | £ 240,000 | BUY | 7 / 10 | 0.00 KM |
| The Naze, Great Yarmouth, NR31 | £ 250,000 | BUY | 7 / 10 | 0.02 KM |
| The Naze, Belton | £ 240,000 | BUY | 6 / 10 | 0.02 KM |
| Ranworth Close, Belton | £ 220,000 | BUY | Unknown | 0.12 KM |
| Bell Lane, Belton | £ 290,000 | BUY | 6 / 10 | 0.13 KM |
Nearby Properties
| Address | Price | Distance |
|---|---|---|
| 6 The Naze | £ 137,500 | 0.01 KM |
| 7 The Naze | £ 145,000 | 0.01 KM |
| 2 The Naze | £ 190,000 | 0.01 KM |
| 4 The Naze | £ 192,000 | 0.02 KM |
| 10 Yare Road | £ 340,000 | 0.10 KM |