Hunters says ..
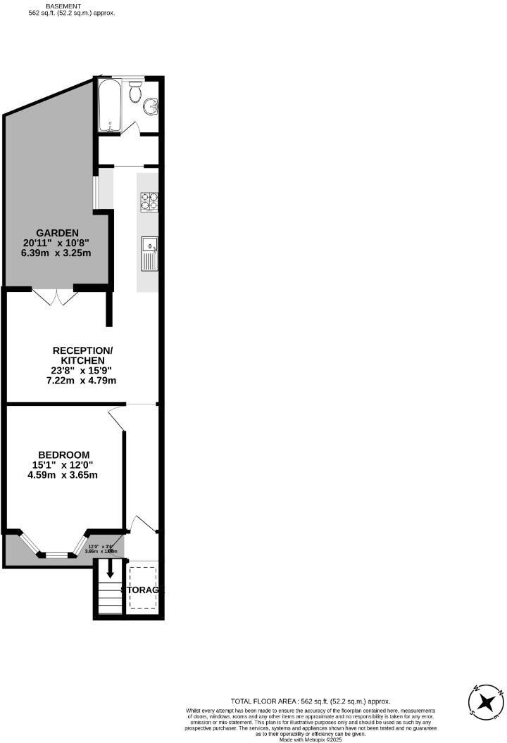
Offered chain free and with a share of freehold, this spacious 562 sq ft (52 sq m) one bedroom lower ground floor garden flat sits within an elegant Victorian terrace on the ever popular Londesborough Road in the heart of N16, and benefits from its own private entrance. Beautifully prese...
Property Oracle says ..
This one-bedroom apartment on Londesborough Road, Hackney, presents a solid opportunity for buyers. Its location is a major selling point, with proximity to good schools, transportation links, and local amenities. While the property is in reasonable condition, there is room for improvement, particularly in the bathroom and with some modernization of the interior. The small garden is a definite plus, adding to the property’s appeal. Considering the price and the average property values in the area, this apartment offers good value for money. Overall, it’s a well-located property with potential for further enhancement.
Therefore, we give this property 6 / 10. *Disclaimer: This is our option and does constitute a recommendation or financial advice. Do your own research. *
- Price
- 7
- Condition
- 6
- Location
- 7
- Land
- 5
- Bedrooms
- 1
- Bathrooms
- 1
- Sqft (est)
- 562.00
The heatmap indicates the level of crime in the area. The color of the heatmap indicates the crime severity and recency.
Metrics Year-on-Year
- Average area value
- 920,000.00 £Increased by 33.45 %
- Est sale value
- 511,420.00 £Increased by 8.98 %
- Average area rental value
- 2,550.00 £/moIncreased by 2.12 %
- Est letting value
- 1,124.00 £/moDecreased by 33.33 %
- Est rental Yield
- 3.33 %Decreased by 23.45 %
- Crime Rate
- 5.00 %Unchanged by 0.00 %
Agent Activity
Hunters created the listing.
Nearby Schools
| Name | Type | Ofsted | Distance |
|---|---|---|---|
| Grasmere Primary School | Community School | Good | 0.31 KM |
| The Garden School | Community Special School | Outstanding | 0.32 KM |
| St Matthias Church Of England Primary School | Voluntary Aided School | Good | 0.39 KM |
| Betty Layward Primary School | Community School | Good | 0.46 KM |
| Stoke Newington School And Sixth Form | Community School | Good | 0.46 KM |
Images
Nearby Streets
| Name | Average Price | Average Sqft | Distance |
|---|---|---|---|
| Wordsworth Road | £ 0 | 0 | 0.00 KM |
| Scholars' Place | £ 825,000 | 0 | 0.00 KM |
| Truman's Road | £ 0 | 0 | 0.00 KM |
| Kingsbury Terrace | £ 790,000 | 0 | 0.00 KM |
| Birkbeck Mews | £ 0 | 0 | 0.00 KM |
Nearby Transport
| Name | NLC | TLC | Distance |
|---|---|---|---|
| Dalston Kingsland | 1429 | DLK | 1.05 KM |
| Dalston Junction | 1443 | DLJ | 1.27 KM |
| Stoke Newington | 6934 | SKW | 1.36 KM |
| Rectory Road | 6967 | REC | 1.42 KM |
| Canonbury | 1441 | CNN | 1.49 KM |
Nearby Listings
| Address | Price | Type | Score | Distance |
|---|---|---|---|---|
| Londesborough Road, London, N16 | £ 500,000 | BUY | 6 / 10 | 0.00 KM |
| Flat B, 56 Londesborough Road, Stoke Newington, London, N16 | £ 355,000 | BUY | 6 / 10 | 0.03 KM |
| Shakspeare Walk, London, N16 | £ 2,000,000 | BUY | 7 / 10 | 0.06 KM |
| Clonbrock Road, Stoke Newington, London, N16 | £ 1,750,000 | BUY | Unknown | 0.07 KM |
| Shakspeare Walk, London | £ 525,000 | BUY | 7 / 10 | 0.07 KM |
Nearby Properties
| Address | Price | Distance |
|---|---|---|
| 22 Clonbrock Road | £ 245,000 | 0.02 KM |
| 50 Londesborough Road | £ 385,000 | 0.03 KM |
| 60a Londesborough Road | £ 270,000 | 0.03 KM |
| 64a Londesborough Road | £ 435,000 | 0.03 KM |
| 46 Londesborough Road | £ 1,192,000 | 0.03 KM |