HA
Baldocks Road, Theydon Bois, CM16
By Hammond & Smith
£ 1,075,000
Reviews
3 out of 5 stars
Hammond & Smith says ..
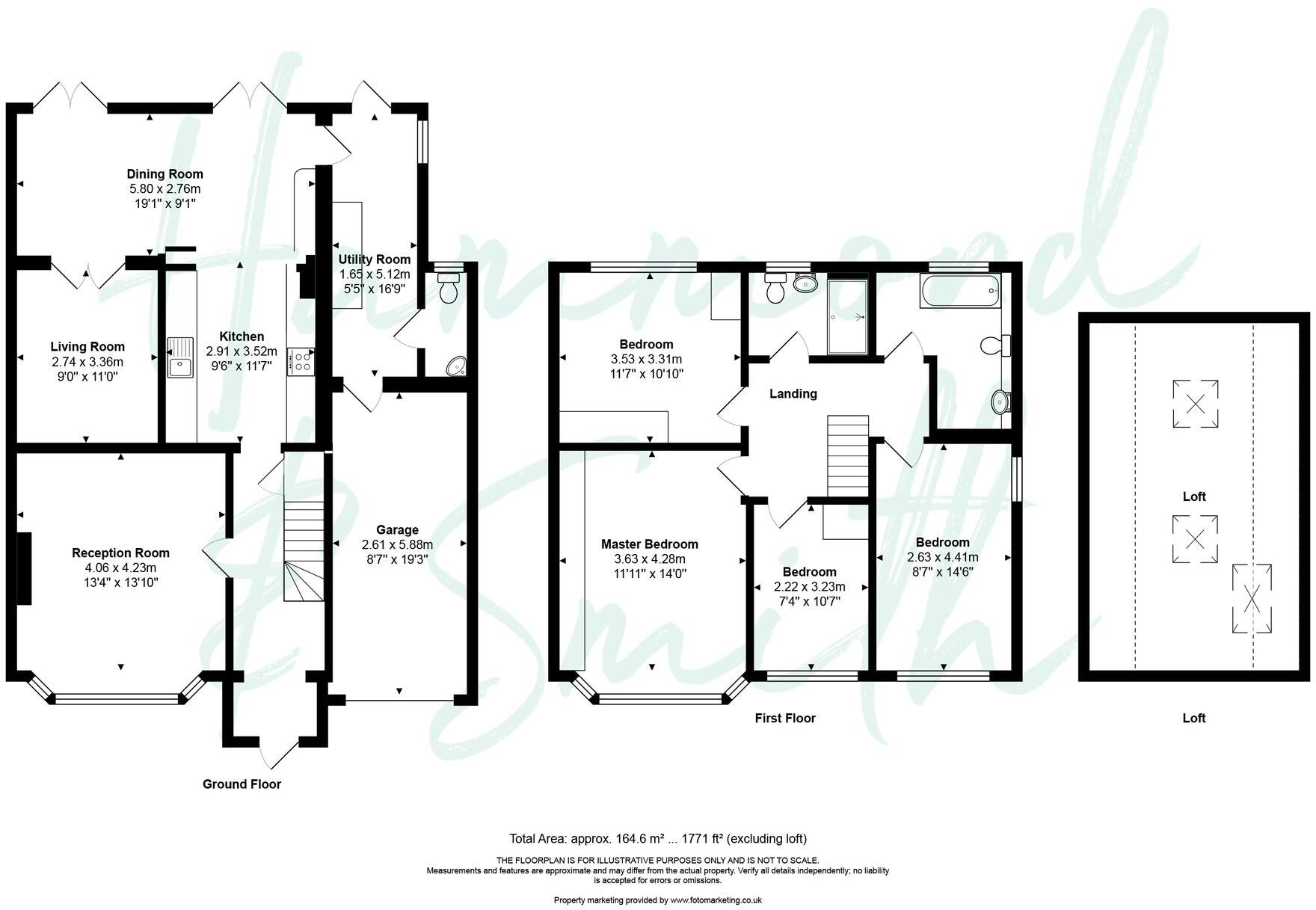
Welcome to Baldocks Road. Sat in much-loved Theydon Bois, this spacious four bedroom family home is stacked with scope to add your own stamp - creating a truly fabulous forever family home. A home and location to get excited about!
Property Oracle says ..
Therefore, we give this property 7 / 10. *Disclaimer: This is our option and does constitute a recommendation or financial advice. Do your own research. *
- Price
- 6
- Condition
- 8
- Location
- 8
- Land
- 7
- Bedrooms
- 4
- Bathrooms
- 2
- Sqft (est)
- 1,317.29
The heatmap indicates the level of crime in the area. The color of the heatmap indicates the crime severity and recency.
Metrics Year-on-Year
- Average area value
- 1,148,360.00 £Increased by 8.83 %
- Est sale value
- 640,202.94 £Decreased by 17.06 %
- Average area rental value
- 2,257.00 £/moDecreased by 21.96 %
- Est letting value
- 0.00 £/moDecreased by 100.00 %
- Est rental Yield
- 2.36 %Decreased by 28.27 %
- Crime Rate
- 25.00 %Unchanged by 0.00 %
from 1,055,185.00 £
from 771,931.94 £
from 2,892.00 £/mo
from 1,317.29 £/mo
from 3.29 %
from 25.00 %
Agent Activity
Hammond & Smith created the listing.
Nearby Schools
| Name | Type | Ofsted | Distance |
|---|---|---|---|
| Theydon Bois Primary School | Academy Converter | 0.12 KM | |
| Ivy Chimneys Primary School | Academy Converter | 1.67 KM | |
| Davenant Foundation School | Academy Converter | Good | 2.20 KM |
| Coopersale Hall School | Other Independent School | 2.22 KM | |
| Hereward Primary School | Academy Converter | 2.34 KM |
Images
Nearby Streets
| Name | Average Price | Average Sqft | Distance |
|---|---|---|---|
| Station Hill | £ 0 | 0 | 0.00 KM |
| Maple Close | £ 1,500,000 | 0 | 0.00 KM |
| High Road | £ 1,250,000 | 0 | 0.00 KM |
| M11 | £ 0 | 0 | 0.00 KM |
Nearby Listings
| Address | Price | Type | Score | Distance |
|---|---|---|---|---|
| Baldocks Road, Theydon Bois, CM16 | £ 1,075,000 | BUY | 7 / 10 | 0.00 KM |
| Heath Drive, Theydon Bois, Epping, Essex, CM16 7HL | £ 975,000 | BUY | 7 / 10 | 0.12 KM |
| Heath Drive, Theydon Bois | £ 975,000 | BUY | 6 / 10 | 0.14 KM |
| Baldocks Road, Theydon Bois, Essex | £ 1,250,000 | BUY | Unknown | 0.15 KM |
| Baldocks Road, Theydon Bois, Essex | £ 1,250,000 | BUY | Unknown | 0.15 KM |
Nearby Properties
| Address | Price | Distance |
|---|---|---|
| 16 Purlieu Way | £ 365,000 | 0.10 KM |
| 26 Purlieu Way | £ 345,000 | 0.10 KM |
| 1 Purlieu Way | £ 875,000 | 0.10 KM |
| 10 Purlieu Way | £ 700,000 | 0.10 KM |
| 11 Purlieu Way | £ 467,500 | 0.10 KM |