The Eagles, Yatton, Bristol, BS49
By Reeds Rains
£ 485,000
Reviews
3 out of 5 stars
Reeds Rains says ..
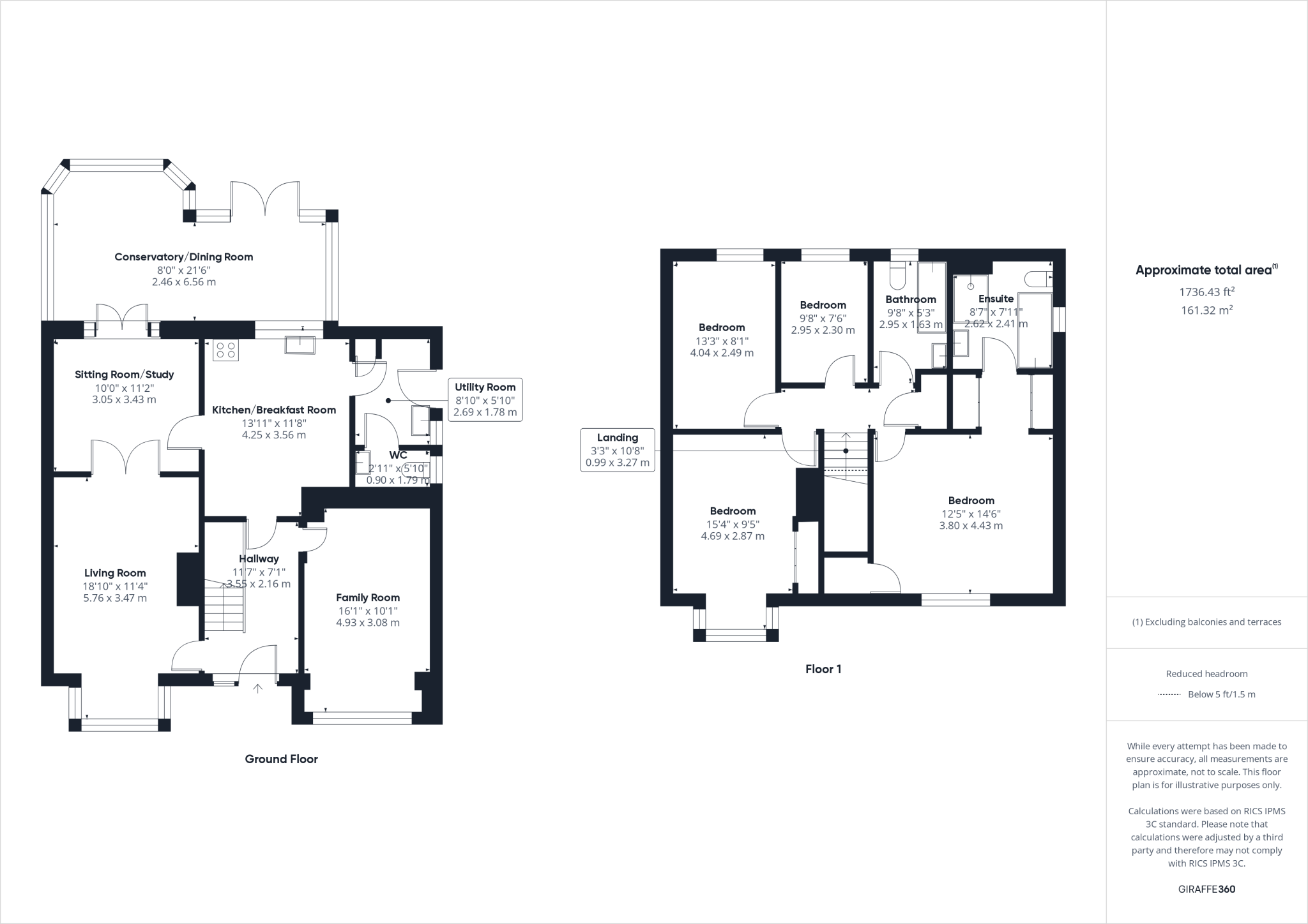
This four bedroom detached family home is located in a quiet cul de sac within the family friendly village of Yatton and provides spacious and flexible accommodation comprising of an entrance hall, bay fronted living room with double doors opening to the sitting room/study, a sunlit conservatory/...
Property Oracle says ..
The property is a 4 bedroom, 2 bathroom house located in Yatton, North Somerset. It is listed at £485,000 and has 1,621.05 sqft of living space and a 1,736.43 sqft plot. The average house price in the area is £438,286, with an average price per sqft of £380. The property appears to be in good condition based on the provided photos. The interior looks well-maintained and recently updated, with a modern kitchen and bathrooms. There is evidence of a conservatory extension. The exterior is also in good condition. The property has a garden which is visible in the provided images. The garden appears to be of a reasonable size for the property type. Considering the property’s condition, the size of the plot, and its location in Yatton, the list price of £485,000 seems slightly above average but not unreasonable. The average price per sqft in the area is £380, while this property’s price per sqft is approximately £300. This lower price per sqft is likely due to the larger plot size, which is a desirable feature in the UK housing market. Nearby properties on The Eagles have sold for between £207,500 and £310,000, however, these properties may have different sizes and conditions. More information on these properties would be needed to make a more accurate comparison. The proximity to Yatton train station and local schools is also a positive factor influencing the price.
Therefore, we give this property 7 / 10. *Disclaimer: This is our option and does constitute a recommendation or financial advice. Do your own research. *
- Price
- 7
- Condition
- 9
- Location
- 8
- Land
- 7
- Bedrooms
- 4
- Bathrooms
- 2
- Sqft (est)
- 1,621.05
- Lot (est)
- 1,736.43
The heatmap indicates the level of crime in the area. The color of the heatmap indicates the crime severity and recency.
Metrics Year-on-Year
- Average area value
- 528,454.00 £Increased by 23.12 %
- Est sale value
- 632,209.50 £Increased by 17.47 %
- Average area rental value
- 1,425.00 £/moDecreased by 1.72 %
- Est letting value
- 1,621.05 £/moUnchanged by 0.00 %
- Est rental Yield
- 3.24 %Decreased by 20.00 %
- Crime Rate
- 17.00 %Unchanged by 0.00 %
Agent Activity
Reeds Rains created the listing.
Nearby Schools
| Name | Type | Ofsted | Distance |
|---|---|---|---|
| Yatton Infant School | Academy Converter | 0.79 KM | |
| Yatton Moor Children'S Centre | Children's Centre | 0.80 KM | |
| Yatton Church Of England Junior School | Academy Converter | 0.80 KM | |
| Chestnut Park Primary | Free Schools | 1.70 KM | |
| Yeo Valley & Rural Outreach | Children's Centre | 2.23 KM |
Images
Nearby Streets
| Name | Average Price | Average Sqft | Distance |
|---|---|---|---|
| The Ridge | £ 0 | 0 | 0.00 KM |
| Ashleigh Road | £ 475,000 | 0 | 0.00 KM |
| Laurel Gardens | £ 166,000 | 0 | 0.00 KM |
| Station Road | £ 350,000 | 0 | 0.00 KM |
| Rectory Drive | £ 279,950 | 0 | 0.00 KM |
Nearby Transport
| Name | NLC | TLC | Distance |
|---|---|---|---|
| Yatton | 3392 | YAT | 0.44 KM |
| Nailsea And Backwell | 3389 | NLS | 8.88 KM |
| Worle | 3390 | WOR | 9.98 KM |
Nearby Listings
| Address | Price | Type | Score | Distance |
|---|---|---|---|---|
| The Eagles, Yatton, Bristol, BS49 | £ 485,000 | BUY | 7 / 10 | 0.00 KM |
| Dysons Close, Yatton, BS49 | £ 360,000 | BUY | 7 / 10 | 0.06 KM |
| Extended family home in Yatton village | £ 450,000 | BUY | Unknown | 0.09 KM |
| High Street, Yatton | £ 599,950 | BUY | 6 / 10 | 0.10 KM |
| The Ridge, Yatton, BS49 | £ 675,000 | BUY | 8 / 10 | 0.12 KM |
Nearby Properties
| Address | Price | Distance |
|---|---|---|
| 37 The Eagles | £ 310,000 | 0.00 KM |
| 15 The Eagles | £ 287,500 | 0.00 KM |
| 19 The Eagles | £ 279,000 | 0.00 KM |
| 2 The Eagles | £ 207,500 | 0.00 KM |
| 21 Dysons Close | £ 275,000 | 0.10 KM |