Hunters says ..
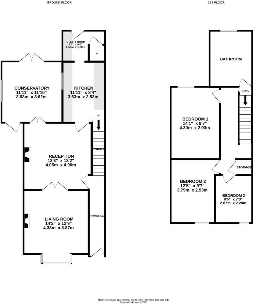
Offered with no upward chain this attractive and well maintained three-bedroom traditional terrace home, situated in the established and popular area of Enfield, presents an excellent opportunity for the new owners keen to put their own stamp on a property. The home offers generous accommodation ...
Property Oracle says ..
This is a three-bedroom semi-detached house on Birmingham Road, Redditch. The property offers 1,021.60 sqft of living space. It features a garden and off-street parking. While the property appears to be in generally good condition, some areas could benefit from modernization. The location is convenient, with nearby schools and transportation links. The asking price of £280,000 seems reasonable when compared to the average property prices in the area.
Therefore, we give this property 6 / 10. *Disclaimer: This is our option and does constitute a recommendation or financial advice. Do your own research. *
- Price
- 7
- Condition
- 7
- Location
- 7
- Land
- 6
- Bedrooms
- 3
- Bathrooms
- 1
- Sqft (est)
- 1,021.60
The heatmap indicates the level of crime in the area. The color of the heatmap indicates the crime severity and recency.
Metrics Year-on-Year
- Average area value
- 350,323.00 £Decreased by 1.18 %
- Est sale value
- 440,309.60 £Increased by 20.73 %
- Average area rental value
- 1,334.00 £/moDecreased by 2.49 %
- Est letting value
- 1,021.60 £/moUnchanged by 0.00 %
- Est rental Yield
- 4.57 %Decreased by 1.30 %
- Crime Rate
- 4.00 %Unchanged by 0.00 %
Agent Activity
Hunters created the listing.
Nearby Schools
| Name | Type | Ofsted | Distance |
|---|---|---|---|
| Holyoakes Field First School | Academy Converter | 1.06 KM | |
| Heart Of Worcestershire College | Further Education | Good | 1.08 KM |
| Trinity High School And Sixth Form Centre | Academy Converter | Good | 1.12 KM |
| St Stephen'S Cofe Rsa Academy | Academy Sponsor Led | 1.20 KM | |
| The Forge Secondary Short Stay School | Pupil Referral Unit | Good | 1.40 KM |
Images
Nearby Streets
| Name | Average Price | Average Sqft | Distance |
|---|---|---|---|
| Windsor Road | £ 215,000 | 0 | 0.00 KM |
| Abbey Road | £ 0 | 0 | 0.00 KM |
| Adelaide Street | £ 0 | 0 | 0.00 KM |
| Peakman Street | £ 85,000 | 0 | 0.00 KM |
| Weights Drive | £ 0 | 0 | 0.00 KM |
Nearby Transport
| Name | NLC | TLC | Distance |
|---|---|---|---|
| Redditch | 1208 | RDC | 1.15 KM |
| Alvechurch | 1198 | ALV | 4.32 KM |
| Barnt Green | 1096 | BTG | 7.43 KM |
| Longbridge | 1110 | LOB | 9.89 KM |
Nearby Listings
| Address | Price | Type | Score | Distance |
|---|---|---|---|---|
| Birmingham Road, Redditch, B97 | £ 280,000 | BUY | 6 / 10 | 0.00 KM |
| Birmingham Road, Enfield, Redditch, B97 | £ 220,000 | BUY | Unknown | 0.14 KM |
| Birmingham Road, Redditch | £ 350,000 | BUY | 7 / 10 | 0.26 KM |
| Dixon Close, Enfield, Redditch, B97 | £ 140,000 | BUY | 5 / 10 | 0.27 KM |
| Dixon Close, Redditch, B97 | £ 145,000 | BUY | Unknown | 0.29 KM |
Nearby Properties
| Address | Price | Distance |
|---|---|---|
| 257 Birmingham Road | £ 313,000 | 0.00 KM |
| 263 Birmingham Road | £ 246,000 | 0.00 KM |
| 239 Birmingham Road | £ 145,000 | 0.02 KM |
| 259 Birmingham Road | £ 232,000 | 0.02 KM |
| 297 Birmingham Road | £ 172,000 | 0.02 KM |