FO
Upton Gardens, Upton Park, London, E13
By Foxtons
£ 550,000
Reviews
3 out of 5 stars
Foxtons says ..
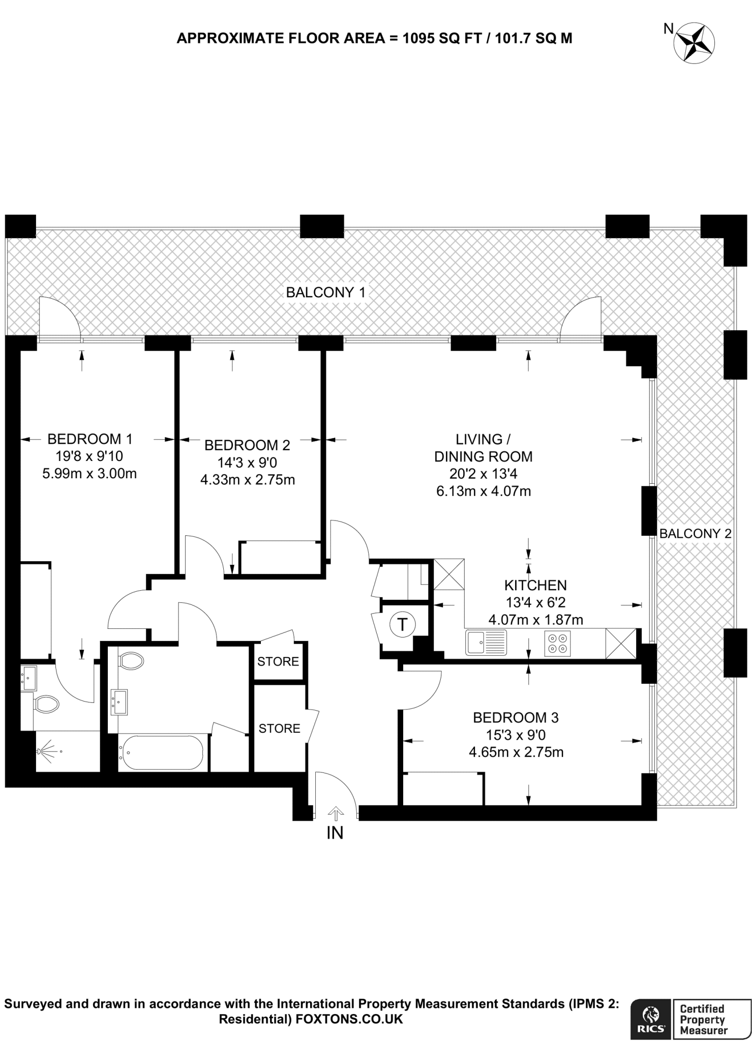
This stylish 3 bedroom flat is situated on the 2nd floor and benefits from a wrap around decked balcony, open plan living and entertaining space and an enviable location moments from the amenities of Stratford.
Property Oracle says ..
Therefore, we give this property 6 / 10. *Disclaimer: This is our option and does constitute a recommendation or financial advice. Do your own research. *
- Price
- 8
- Condition
- 8
- Location
- 7
- Land
- 3
- Bedrooms
- 3
- Bathrooms
- 2
- Sqft (est)
- 1,094.69
The heatmap indicates the level of crime in the area. The color of the heatmap indicates the crime severity and recency.
Metrics Year-on-Year
- Average area value
- 409,167.00 £Decreased by 0.68 %
- Est sale value
- 680,897.18 £Increased by 58.27 %
- Average area rental value
- 1,850.00 £/moDecreased by 8.23 %
- Est letting value
- 2,189.38 £/moIncreased by 100.00 %
- Est rental Yield
- 5.43 %Decreased by 7.50 %
- Crime Rate
- 7.00 %Unchanged by 0.00 %
from 411,985.00 £
from 430,213.17 £
from 2,016.00 £/mo
from 1,094.69 £/mo
from 5.87 %
from 7.00 %
Agent Activity
Foxtons created the listing.
Nearby Schools
| Name | Type | Ofsted | Distance |
|---|---|---|---|
| St Edward'S Catholic Primary School | Academy Converter | 0.31 KM | |
| Cleves Primary School | Academy Converter | 0.45 KM | |
| Central Park Primary School | Community School | Good | 0.57 KM |
| St Stephen'S Children'S Centre | Children's Centre | 0.65 KM | |
| St Stephen'S Nursery School | Local Authority Nursery School | Outstanding | 0.65 KM |
Images
Nearby Streets
| Name | Average Price | Average Sqft | Distance |
|---|---|---|---|
| Seymour Road | £ 525,000 | 0 | 0.00 KM |
| Foxcombe Close | £ 0 | 506 | 0.00 KM |
| Sissulu Court | £ 0 | 0 | 0.00 KM |
| Javs Close | £ 0 | 0 | 0.00 KM |
| Park Road | £ 325,000 | 0 | 0.00 KM |
Nearby Transport
| Name | NLC | TLC | Distance |
|---|---|---|---|
| Woodgrange Park | 7467 | WGR | 1.96 KM |
| Manor Park | 6883 | MNP | 2.37 KM |
| Forest Gate | 6876 | FOG | 2.58 KM |
| Wanstead Park | 7408 | WNP | 2.65 KM |
| West Ham | 7474 | WEH | 3.84 KM |
Nearby Listings
| Address | Price | Type | Score | Distance |
|---|---|---|---|---|
| Shipbuilding Way, Upton Park, London, E13 | £ 280,000 | BUY | 6 / 10 | 0.00 KM |
| Lyall House, Shipbuilding Way, London | £ 400,000 | BUY | 5 / 10 | 0.00 KM |
| Lyall House, Shipbuuiding Way, E13 9DW | £ 400,000 | BUY | 6 / 10 | 0.00 KM |
| Lyall House, 2 Shipbuilding Way,, Upton Park, London, E13 | £ 350,000 | BUY | 5 / 10 | 0.00 KM |
| Lyall House, Upton Park | £ 300,000 | BUY | 7 / 10 | 0.00 KM |
Nearby Properties
| Address | Price | Distance |
|---|---|---|
| 177 Boleyn Road | £ 155,500 | 0.08 KM |
| 135 Boleyn Road | £ 110,000 | 0.08 KM |
| 157 Boleyn Road | £ 145,000 | 0.08 KM |
| 133 Boleyn Road | £ 70,000 | 0.08 KM |
| 139 Boleyn Road | £ 320,000 | 0.08 KM |