Mill Lane, Belper, Derbyshire, DE56
By YOUR MOVE - Attenborough & Co
£ 280,000
Reviews
3 out of 5 stars
YOUR MOVE - Attenborough & Co says ..
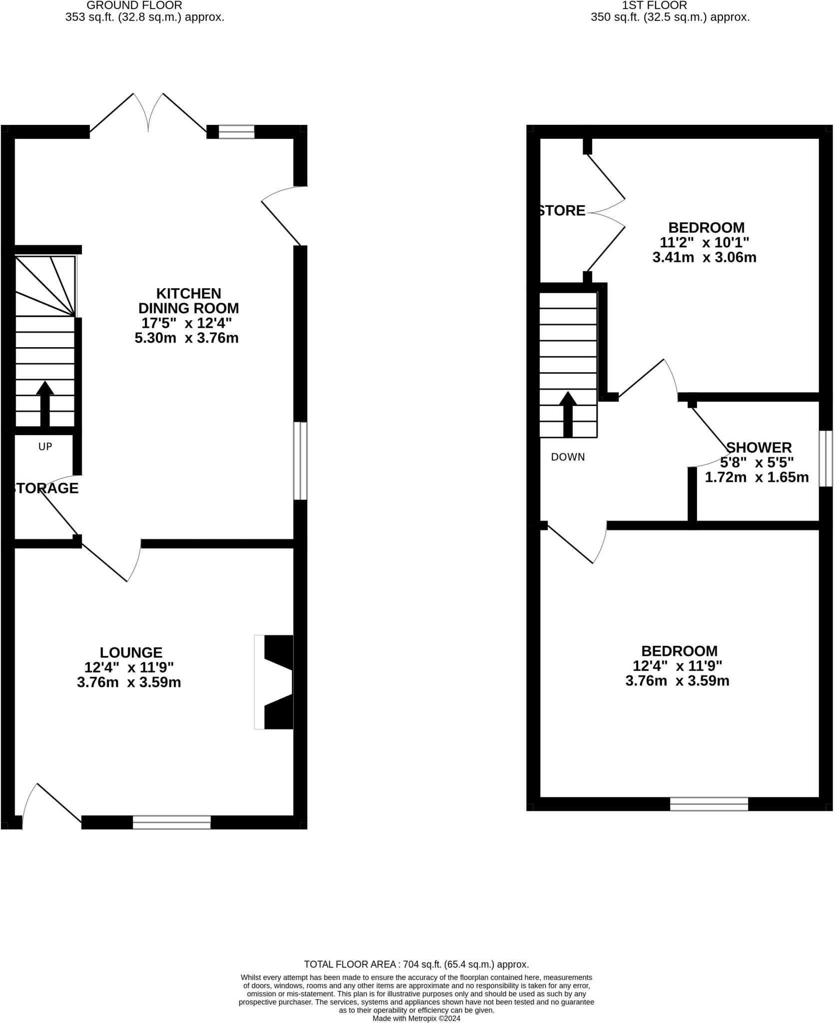
This charming semi-detached cottage is located within walking distance of Belper town centre and is offered for sale with NO UPWARD CHAIN. Retaining an abundance of original features, this very well presented home briefly comprises; a well appointed living room, fabulous open plan dining kitchen,...
Property Oracle says ..
This charming two-bedroom cottage is located on Mill Lane in Belper, Derbyshire. The property benefits from a convenient location within walking distance of the town centre, offering easy access to local amenities and transport links. Several well-regarded primary schools are located nearby, making it an attractive option for families. The interior reveals a blend of character features, including exposed beams and a stone fireplace, combined with modern updates such as the kitchen and bathroom. The cottage has been presented and maintained well, with a quaint patio and compact garden providing some outdoor space. The inclusion of a wooden shelter adds additional utility, ideal for a small garden. However, it’s important to note that the property’s relatively small size (704 sq ft) and the small plot size may impact its overall appeal to some potential buyers. While the location and presented condition are strong points, the list price appears slightly elevated in comparison to other properties within Belper and the surrounding streets. More information on the plot size would further assist in valuation. Potential buyers should conduct a thorough market comparison and consider professional valuation before making an offer.
Therefore, we give this property 6 / 10. *Disclaimer: This is our option and does constitute a recommendation or financial advice. Do your own research. *
- Price
- 6
- Condition
- 7
- Location
- 7
- Land
- 4
- Bedrooms
- 2
- Bathrooms
- 0
- Sqft (est)
- 704.00
The heatmap indicates the level of crime in the area. The color of the heatmap indicates the crime severity and recency.
Metrics Year-on-Year
- Average area value
- 178,750.00 £Decreased by 27.19 %
- Est sale value
- 166,144.00 £Increased by 5.36 %
- Average area rental value
- 583.00 £/moDecreased by 41.05 %
- Est letting value
- 0.00 £/mo
- Est rental Yield
- 3.91 %Decreased by 19.05 %
- Crime Rate
- 13.00 %Unchanged by 0.00 %
Agent Activity
YOUR MOVE - Attenborough & Co created the listing.
Nearby Schools
| Name | Type | Ofsted | Distance |
|---|---|---|---|
| Herbert Strutt Primary School | Community School | Good | 0.80 KM |
| St John'S Cofe Primary School And Nursery | Voluntary Controlled School | Good | 0.84 KM |
| Pottery Primary School | Community School | Good | 1.38 KM |
| St Elizabeth'S Catholic Voluntary Academy | Academy Converter | 1.39 KM | |
| Long Row Primary School | Community School | Good | 1.52 KM |
Images
Nearby Streets
| Name | Average Price | Average Sqft | Distance |
|---|---|---|---|
| High Street | £ 234,172 | 0 | 0.00 KM |
| Maple Drive | £ 180,000 | 0 | 0.00 KM |
| Bullfinch Close | £ 0 | 0 | 0.00 KM |
| Barley Croft | £ 280,000 | 0 | 0.00 KM |
| Dalton Drive | £ 0 | 0 | 0.00 KM |
Nearby Transport
| Name | NLC | TLC | Distance |
|---|---|---|---|
| Belper | 1679 | BLP | 1.13 KM |
| Duffield | 1691 | DFI | 4.07 KM |
| Ambergate | 1678 | AMB | 4.34 KM |
| Whatstandwell | 1585 | WTS | 7.63 KM |
Nearby Listings
| Address | Price | Type | Score | Distance |
|---|---|---|---|---|
| Mill Lane, Belper, Derbyshire, DE56 | £ 280,000 | BUY | 6 / 10 | 0.00 KM |
| Mill Lane, Belper, DE56 1LG | £ 250,000 | BUY | 6 / 10 | 0.03 KM |
| Mill Lane, Belper, DE56 | £ 210,000 | BUY | 5 / 10 | 0.04 KM |
| Mill Lane, Belper, Derbyshire, DE56 | £ 170,000 | BUY | 7 / 10 | 0.04 KM |
| Mill Lane, Belper, Derbyshire, DE56 | £ 170,000 | BUY | 5 / 10 | 0.05 KM |
Nearby Properties
| Address | Price | Distance |
|---|---|---|
| 14 Mill Lane | £ 165,000 | 0.08 KM |
| 55 Mill Lane | £ 108,000 | 0.08 KM |
| 5 Mill Lane | £ 128,000 | 0.08 KM |
| 38a Mill Lane | £ 144,500 | 0.08 KM |
| 7 Mill Lane | £ 134,500 | 0.08 KM |