CA
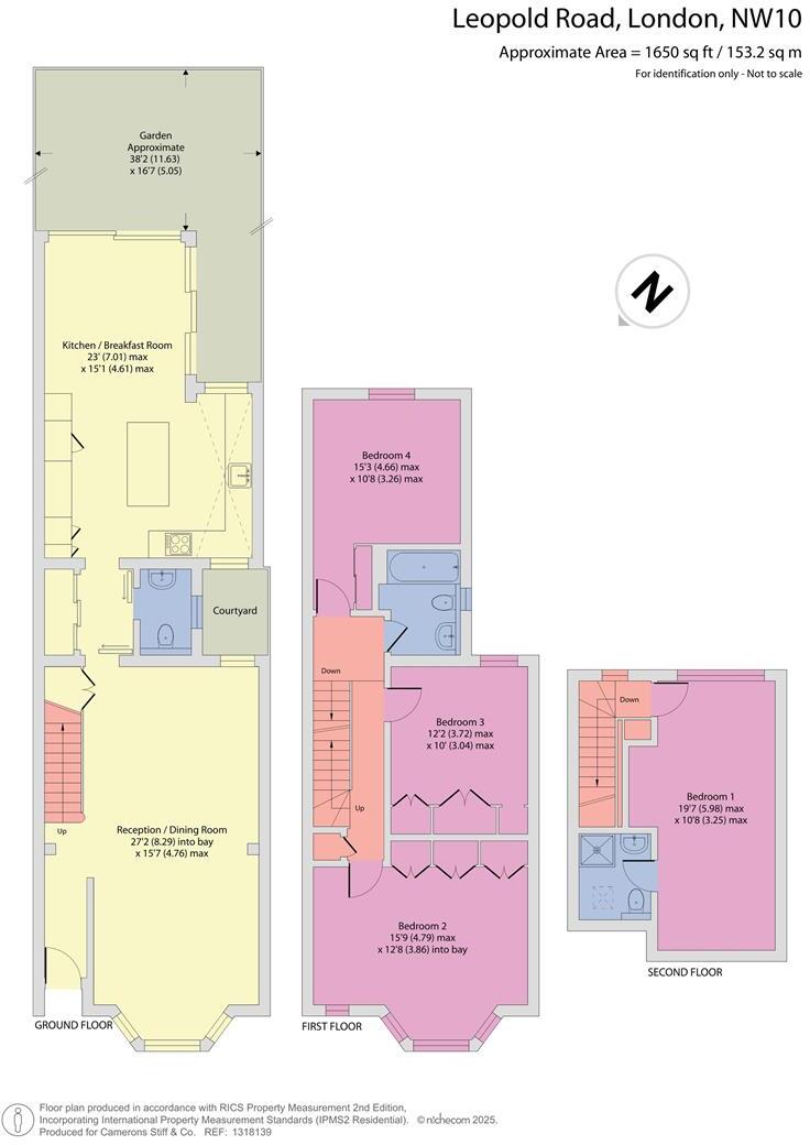
Leopold Road, London, NW10
By Camerons Stiff & Co
£ 699,950
Reviews
3 out of 5 stars
Camerons Stiff & Co says ..
For Sale is this delightful four-bedroom house, spanning 1,650 sq ft, offering comfortable family living in a sought-after location on Leopold Road. This is a fantastic opportunity to acquire a well-maintained family home. The property boasts a bright and spacious double reception room, ...
Property Oracle says ..
Therefore, we give this property 7 / 10. *Disclaimer: This is our option and does constitute a recommendation or financial advice. Do your own research. *
- Price
- 9
- Condition
- 8
- Location
- 8
- Land
- 6
- Bedrooms
- 4
- Bathrooms
- 2
- Sqft (est)
- 2,105.56
- Lot (est)
- 1,650.00
The heatmap indicates the level of crime in the area. The color of the heatmap indicates the crime severity and recency.
Metrics Year-on-Year
- Average area value
- 485,429.00 £Decreased by 0.78 %
- Est sale value
- 1,556,008.84 £Increased by 17.68 %
- Average area rental value
- 1,687.00 £/moDecreased by 16.49 %
- Est letting value
- 4,211.12 £/moUnchanged by 0.00 %
- Est rental Yield
- 4.17 %Decreased by 15.76 %
- Crime Rate
- 8.00 %Unchanged by 0.00 %
from 489,251.00 £
from 1,322,291.68 £
from 2,020.00 £/mo
from 4,211.12 £/mo
from 4.95 %
from 8.00 %
Agent Activity
Camerons Stiff & Co created the listing.
Nearby Schools
| Name | Type | Ofsted | Distance |
|---|---|---|---|
| St Joseph'S Roman Catholic Primary School | Voluntary Aided School | Outstanding | 0.14 KM |
| Curzon Crescent Children'S Centre | Children's Centre | 0.22 KM | |
| Curzon Nursery School & Family Wellbeing Centre | Local Authority Nursery School | Good | 0.26 KM |
| Leopold Primary School | Community School | Good | 0.41 KM |
| St Mary'S Cofe Primary School | Voluntary Aided School | Good | 0.62 KM |
Images
Nearby Streets
| Name | Average Price | Average Sqft | Distance |
|---|---|---|---|
| Northcote Road | £ 399,950 | 0 | 0.00 KM |
| Suffolk Road | £ 560,000 | 0 | 0.00 KM |
| Fawcett Road | £ 900,000 | 0 | 0.00 KM |
| Norfolk Road | £ 0 | 0 | 0.00 KM |
| Essex Road | £ 0 | 0 | 0.00 KM |
Nearby Transport
| Name | NLC | TLC | Distance |
|---|---|---|---|
| Harlesden | 1521 | HDN | 1.11 KM |
| Willesden Junction | 1457 | WIJ | 1.34 KM |
| Stonebridge Park | 1454 | SBP | 2.82 KM |
| Kensal Green | 1447 | KNL | 3.12 KM |
| Acton Main Line | 3000 | AML | 3.41 KM |
Nearby Listings
| Address | Price | Type | Score | Distance |
|---|---|---|---|---|
| Leopold Road, London, NW10 | £ 699,950 | BUY | 7 / 10 | 0.00 KM |
| Leopold Road, London NW10 | £ 800,000 | BUY | 7 / 10 | 0.00 KM |
| Leopold Road, London, SW19 | £ 500,000 | BUY | 6 / 10 | 0.01 KM |
| Redfern Road, Harlesden, NW10 | £ 625,000 | BUY | Unknown | 0.04 KM |
| Leopold Road, Harlesden, NW10 | £ 300,000 | BUY | 5 / 10 | 0.05 KM |
Nearby Properties
| Address | Price | Distance |
|---|---|---|
| 26 Redfern Road | £ 200,000 | 0.04 KM |
| 34 Redfern Road | £ 272,500 | 0.04 KM |
| 68b Redfern Road | £ 249,950 | 0.04 KM |
| 18a Redfern Road | £ 340,000 | 0.04 KM |
| 64a Redfern Road | £ 235,000 | 0.04 KM |