Brunswick Street, Dewsbury, WF13
By Trust Sales & Lettings
£ 120,000
Reviews
2 out of 5 stars
Trust Sales & Lettings says ..
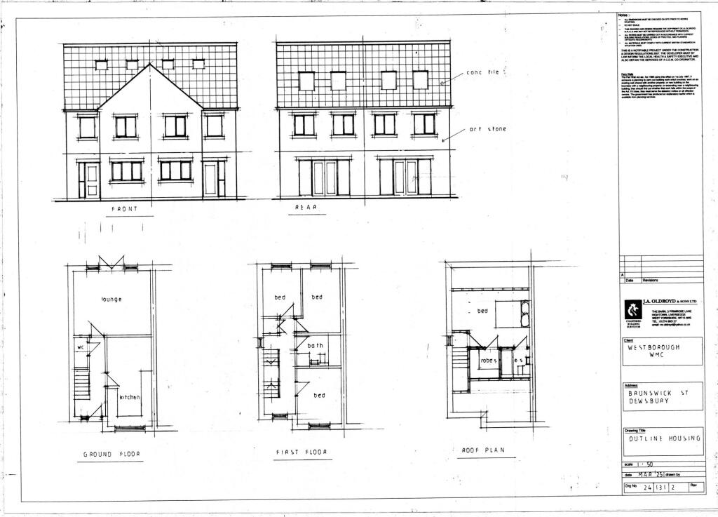
Two building plots in Westborough with planning for two three-bed, three-storey semis. Close to amenities, schools, and transport. Ideal for self-builders or developers. Driveway parking included.
Property Oracle says ..
This is a plot of land located in Dewsbury, West Yorkshire. The land is located close to schooling and local transportation links. The asking price of £120,000 is below the average for the area. The land is a reasonable size and could be used for a variety of purposes.
Therefore, we give this property 4 / 10. *Disclaimer: This is our option and does constitute a recommendation or financial advice. Do your own research. *
- Price
- 7
- Condition
- 1
- Location
- 6
- Land
- 5
- Bedrooms
- 0
- Bathrooms
- 0
The heatmap indicates the level of crime in the area. The color of the heatmap indicates the crime severity and recency.
Metrics Year-on-Year
- Average area value
- 148,750.00 £Decreased by 14.19 %
- Average area rental value
- 855.00 £/moDecreased by 18.26 %
- Est rental Yield
- 6.90 %Decreased by 4.70 %
- Crime Rate
- 14.00 %Unchanged by 0.00 %
Agent Activity
Trust Sales & Lettings created the listing.
Nearby Schools
| Name | Type | Ofsted | Distance |
|---|---|---|---|
| Westborough High School | Foundation School | Good | 0.53 KM |
| St Joseph'S Catholic Primary Academy | Academy Converter | 0.56 KM | |
| St John'S Church Of England Voluntary Controlled Infant School | Voluntary Controlled School | Good | 0.61 KM |
| Westmoor Primary School | Community School | Good | 0.67 KM |
| Ethos College | Academy Alternative Provision Converter | 0.73 KM |
Images
Nearby Streets
| Name | Average Price | Average Sqft | Distance |
|---|---|---|---|
| Mayfield Place | £ 0 | 0 | 0.00 KM |
| Green Lane | £ 0 | 0 | 0.00 KM |
| School Avenue | £ 0 | 0 | 0.00 KM |
| Bronte Close | £ 0 | 0 | 0.00 KM |
| James Street | £ 0 | 0 | 0.00 KM |
Nearby Transport
| Name | NLC | TLC | Distance |
|---|---|---|---|
| Dewsbury | 8326 | DEW | 1.97 KM |
| Ravensthorpe | 8519 | RVN | 2.53 KM |
| Batley | 8484 | BTL | 3.30 KM |
| Mirfield | 8518 | MIR | 5.53 KM |
| Morley | 8504 | MLY | 8.75 KM |
Nearby Listings
| Address | Price | Type | Score | Distance |
|---|---|---|---|---|
| Brunswick Street, Dewsbury, WF13 | £ 120,000 | BUY | 4 / 10 | 0.00 KM |
| Burnswick Street, Dewsbury | £ 170,000 | BUY | 6 / 10 | 0.02 KM |
| Mayfield Place, Dewsbury, West Yorkshire, WF13 | £ 135,000 | BUY | 6 / 10 | 0.07 KM |
| Brunswick Street, DEWSBURY | £ 125,000 | BUY | 6 / 10 | 0.10 KM |
| Blenheim Drive, Dewsbury | £ 310,000 | BUY | Unknown | 0.11 KM |
Nearby Properties
| Address | Price | Distance |
|---|---|---|
| 35 Brunswick Street | £ 98,500 | 0.01 KM |
| 39 Brunswick Street | £ 51,000 | 0.01 KM |
| 7 Brunswick Street | £ 96,000 | 0.01 KM |
| 6 Brunswick Street | £ 108,000 | 0.01 KM |
| 11 Brunswick Street | £ 105,000 | 0.01 KM |