Partickhill Road, Partickhill, Glasgow
RE

Partickhill Road, Partickhill, Glasgow

By Rettie & Co

£ 215,000

Reviews

2 out of 5 stars

Rettie & Co says ..

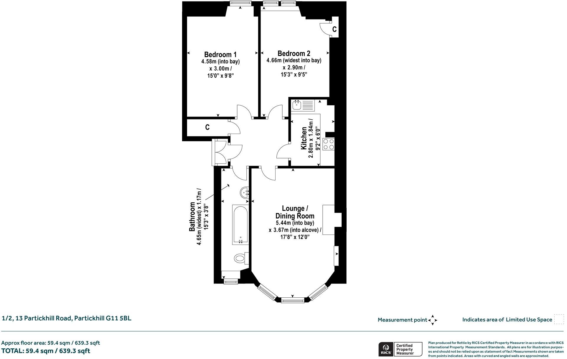
This delightful two-bedroom flat occupies a preferred first floor position within an elegant red sandstone tenement building. The building itself dates to circa 1900 and enjoys a peaceful yet incredibly convenient West End location. Located in the popular Partickhill district, 13 Partickhill Road...

Property Oracle says ..

The property is a well-maintained 2-bedroom, 1-bathroom apartment located in a convenient area of Glasgow. The apartment is situated in a traditional red sandstone building with original period features, and benefits from modern fixtures and fittings in the kitchen and bathroom. The property is within walking distance of several train stations, offering good transport links. The list price seems reasonable considering the average price per sqft in the area and comparable nearby listings. The property is smaller than the area average and does not appear to include a private garden.

Therefore, we give this property 5 / 10. *Disclaimer: This is our option and does constitute a recommendation or financial advice. Do your own research. *

Price
7
Condition
8
Location
7
Land
1
Bedrooms
2
Bathrooms
1
Sqft (est)
639.30

The heatmap indicates the level of crime in the area. The color of the heatmap indicates the crime severity and recency.

Metrics Year-on-Year

Average area value
273,565.00 £
Increased by 3.79 %
from 263,578.00 £
Est sale value
180,282.60 £
Increased by 9.73 %
from 164,300.10 £
Average area rental value
1,350.00 £/mo
Decreased by 11.01 %
from 1,517.00 £/mo
Est letting value
639.30 £/mo
Unchanged by 0.00 %
from 639.30 £/mo
Est rental Yield
5.92 %
Decreased by 14.33 %
from 6.91 %
Crime Rate
0.00 %
from 0.00 %

Agent Activity

  • Rettie & Co created the listing.

Images

Picture No. 14 Picture No. 13 Picture No. 21 Picture No. 01 Picture No. 02 Picture No. 03 Picture No. 04 Picture No. 18 Picture No. 19 Picture No. 07 Picture No. 08 Picture No. 09 Picture No. 10 Picture No. 11 Picture No. 12 Picture No. 20 Picture No. 05 Picture No. 06 Picture No. 16 Picture No. 17 Picture No. 15

Nearby Streets

NameAverage PriceAverage SqftDistance
Fordyce Street £ 000.00 KM
Mansfield Street - Sràid Achadh a' Mhansa £ 000.00 KM
Dalcross Pass £ 000.00 KM
Turnberry Avenue £ 1,025,00000.00 KM
Muirpark Street £ 167,49800.00 KM

Nearby Transport

NameNLCTLCDistance
Partick9917PTK0.78 KM
Hyndland9845HYN1.42 KM
Kelvindale1655KVD2.27 KM
Exhibition Centre (Glasgow)9914EXG2.58 KM
Jordanhill9995JOR2.59 KM

Nearby Listings

AddressPriceTypeScoreDistance
Partickhill Road, Partickhill, Glasgow £ 215,000BUY5 / 100.00 KM
Partickhill Road, Glasgow £ 200,000BUY6 / 100.01 KM
Partickhill Road, Glasgow, G11 £ 379,999BUYUnknown0.01 KM
Flat 14, 4 Partickhill Road, Glasgow, G11 5BL £ 399,995BUY5 / 100.02 KM
13 Partickhill Road, Partickhill, G11 £ 170,000BUYUnknown0.05 KM