Hortons says ..
Located on one of the most sought after tree lined roads of Leamington Spa within the fashionable Milverton pocket sits this imposing and ‘chunky’ Victorian terrace.
Property Oracle says ..
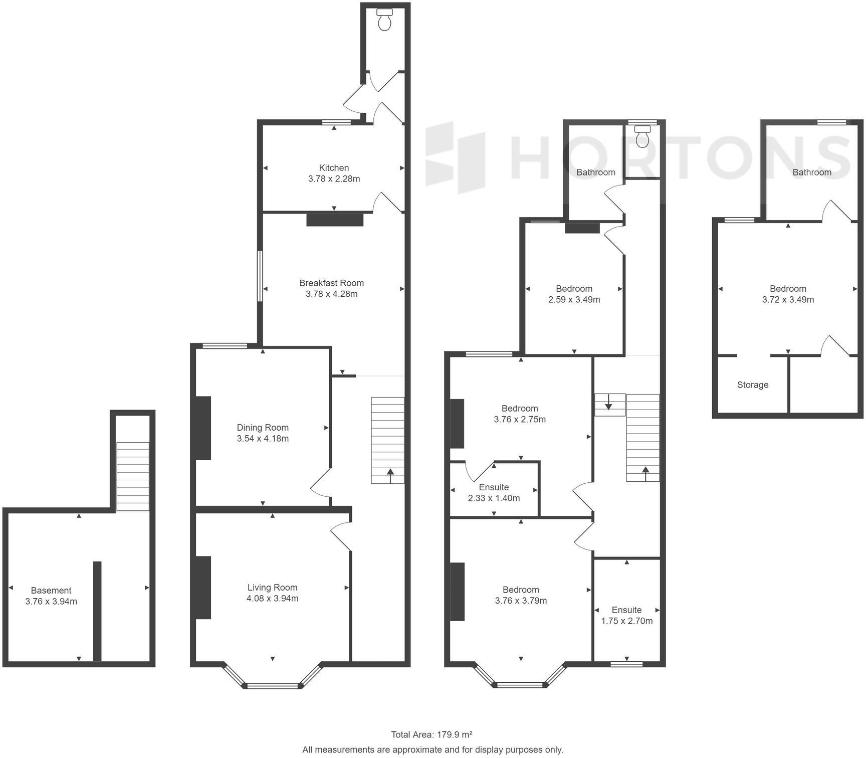
This is a large terraced property located on Gaveston Road in Leamington Spa. The property has four bedrooms and four bathrooms, making it suitable for a family. The property is in a fair condition, but would benefit from some modernisation, particularly in the kitchen. The property has a garden, but it is relatively small. The property is located in a desirable area with good access to local amenities, schools, and transportation links. The property is within walking distance of Milverton Primary School and 1.5KM from Leamington Spa train station.
Therefore, we give this property 6 / 10. *Disclaimer: This is our option and does constitute a recommendation or financial advice. Do your own research. *
- Price
- 6
- Condition
- 6
- Location
- 8
- Land
- 5
- Bedrooms
- 4
- Bathrooms
- 4
- Sqft (est)
- 1,936.43
The heatmap indicates the level of crime in the area. The color of the heatmap indicates the crime severity and recency.
Metrics Year-on-Year
- Average area value
- 180,000.00 £Decreased by 63.36 %
- Est sale value
- 575,119.71 £Decreased by 27.91 %
- Average area rental value
- 1,410.00 £/moDecreased by 6.44 %
- Est letting value
- 3,872.86 £/moIncreased by 100.00 %
- Est rental Yield
- 9.40 %Increased by 155.43 %
- Crime Rate
- 2.00 %Unchanged by 0.00 %
Agent Activity
Hortons created the listing.
Nearby Schools
| Name | Type | Ofsted | Distance |
|---|---|---|---|
| Milverton Primary School | Community School | Good | 0.31 KM |
| Trinity Catholic School | Academy Converter | 0.75 KM | |
| Warwickshire College Group | Further Education | Good | 0.76 KM |
| The Kingsley School | Other Independent School | 0.79 KM | |
| Arnold Lodge School | Other Independent School | 1.04 KM |
Images
Nearby Streets
| Name | Average Price | Average Sqft | Distance |
|---|---|---|---|
| Cliffe Road | £ 0 | 0 | 0.00 KM |
| Guy's Cliffe Road | £ 0 | 0 | 0.00 KM |
| Grove Street | £ 900,000 | 0 | 0.00 KM |
| Oswald Road | £ 0 | 0 | 0.00 KM |
| Hall Road | £ 625,000 | 0 | 0.00 KM |
Nearby Transport
| Name | NLC | TLC | Distance |
|---|---|---|---|
| Leamington Spa | 4597 | LMS | 1.50 KM |
| Warwick | 4600 | WRW | 4.17 KM |
| Kenilworth | 7985 | KNW | 6.15 KM |
| Warwick Parkway | 8530 | WRP | 7.47 KM |
Nearby Listings
| Address | Price | Type | Score | Distance |
|---|---|---|---|---|
| Gaveston Road, Leamington Spa, CV32 | £ 800,000 | BUY | 6 / 10 | 0.00 KM |
| Rugby Road, Leamington Spa, CV32 | £ 280,000 | BUY | 6 / 10 | 0.07 KM |
| Rugby Road, Leamington Spa | £ 157,500 | BUY | 5 / 10 | 0.08 KM |
| Rugby Road, Leamington Spa | £ 280,000 | BUY | Unknown | 0.09 KM |
| Rugby Road, Leamington Spa | £ 525,000 | BUY | 7 / 10 | 0.12 KM |
Nearby Properties
| Address | Price | Distance |
|---|---|---|
| 1 Gaveston Road | £ 525,000 | 0.02 KM |
| 3 Gaveston Road | £ 690,000 | 0.02 KM |
| 41 Gaveston Road | £ 675,000 | 0.02 KM |
| 21 Gaveston Road | £ 918,500 | 0.02 KM |
| 37 Gaveston Road | £ 428,000 | 0.02 KM |