Thackerays says ..
A freehold house in this most sought after location with off street parking and garaging
Property Oracle says ..
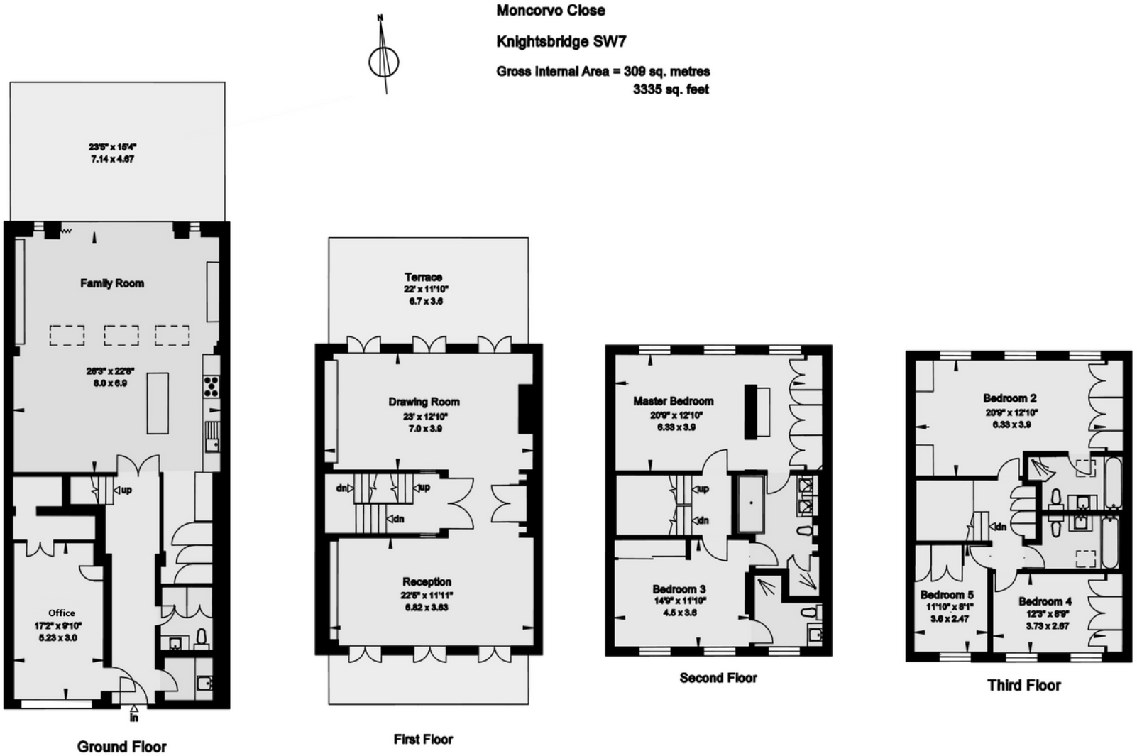
This property is a five-bedroom, four-bathroom terraced house located on Moncorvo Close in Knightsbridge, London. The location is highly desirable, known for its exclusivity and proximity to luxury shops, restaurants, and green spaces. The property itself is presented in excellent condition, with modern interiors and high-quality finishes. The images show a contemporary design aesthetic, combining open-plan living spaces with luxurious features. The property boasts modern kitchen and bathroom facilities, and a relatively open-plan design. The property benefits from outdoor space, in the form of a private patio and garden area. While more precise data on property sizes and prices in the immediate vicinity would be beneficial for a full comparative market analysis, the listed price of £11,000,000 reflects the high value associated with properties in this prime London location. The lack of a large garden may be a drawback for some buyers, but is not unexpected for this type of location. Overall, this property presents a luxurious living experience in a sought-after area of London.
Therefore, we give this property 7 / 10. *Disclaimer: This is our option and does constitute a recommendation or financial advice. Do your own research. *
- Price
- 7
- Condition
- 9
- Location
- 9
- Land
- 4
- Bedrooms
- 5
- Bathrooms
- 4
- Sqft (est)
- 3,335.00
The heatmap indicates the level of crime in the area. The color of the heatmap indicates the crime severity and recency.
Metrics Year-on-Year
- Average area value
- 6,127,143.00 £Decreased by 20.04 %
- Est sale value
- 12,146,070.00 £Increased by 42.27 %
- Average area rental value
- 6,577.00 £/moDecreased by 13.72 %
- Est letting value
- 10,005.00 £/moIncreased by 50.00 %
- Est rental Yield
- 1.29 %Increased by 8.40 %
- Crime Rate
- 1.00 %Unchanged by 0.00 %
Agent Activity
Thackerays created the listing.
Nearby Schools
| Name | Type | Ofsted | Distance |
|---|---|---|---|
| Princes Gardens Preparatory School | Other Independent School | 0.18 KM | |
| Royal College Of Music | Higher Education Institutions | 0.67 KM | |
| Imperial College Of Science, Technology And Medicine | Higher Education Institutions | 0.80 KM | |
| Royal College Of Art | Higher Education Institutions | 0.83 KM | |
| Lycee Francais Charles De Gaulle | Other Independent School | Good | 0.87 KM |
Images
Nearby Streets
| Name | Average Price | Average Sqft | Distance |
|---|---|---|---|
| Watt's Way | £ 0 | 0 | 0.00 KM |
| Brompton Square | £ 1,047,500 | 0 | 0.00 KM |
| Kent Yard | £ 0 | 0 | 0.00 KM |
| Relton Mews | £ 0 | 0 | 0.00 KM |
| Cromwell Road | £ 0 | 0 | 0.00 KM |
Nearby Transport
| Name | NLC | TLC | Distance |
|---|---|---|---|
| Paddington | 3087 | PAD | 1.81 KM |
| Marylebone | 1475 | MYB | 2.60 KM |
| Victoria | 5426 | VIC | 2.98 KM |
| West Brompton | 8875 | WBP | 3.11 KM |
| Imperial Wharf | 9586 | IMW | 3.14 KM |
Nearby Listings
| Address | Price | Type | Score | Distance |
|---|---|---|---|---|
| Moncorvo Close, London, SW7 | £ 11,000,000 | BUY | 7 / 10 | 0.00 KM |
| Moncorvo Close, SW7 | £ 4,950,000 | BUY | 6 / 10 | 0.04 KM |
| Ennismore Gardens, London, SW7 | £ 1,850,000 | BUY | Unknown | 0.05 KM |
| Ennismore Gardens, London, SW7 | £ 4,500,000 | BUY | 6 / 10 | 0.05 KM |
| Ennismore Gardens, Knightsbridge, London, SW7 | £ 3,500,000 | BUY | 6 / 10 | 0.06 KM |
Nearby Properties
| Address | Price | Distance |
|---|---|---|
| 9 Moncorvo Close | £ 7,500,000 | 0.02 KM |
| 3 Moncorvo Close | £ 1,200,000 | 0.02 KM |
| 5 Moncorvo Close | £ 6,700,000 | 0.02 KM |
| 6 Moncorvo Close | £ 1,625,000 | 0.02 KM |
| 3 Ennismore Gardens | £ 550,000 | 0.10 KM |