Monkton Road, Prestwick, KA9
By Hoppers Estate Agency
£ 260,000
Reviews
3 out of 5 stars
Hoppers Estate Agency says ..
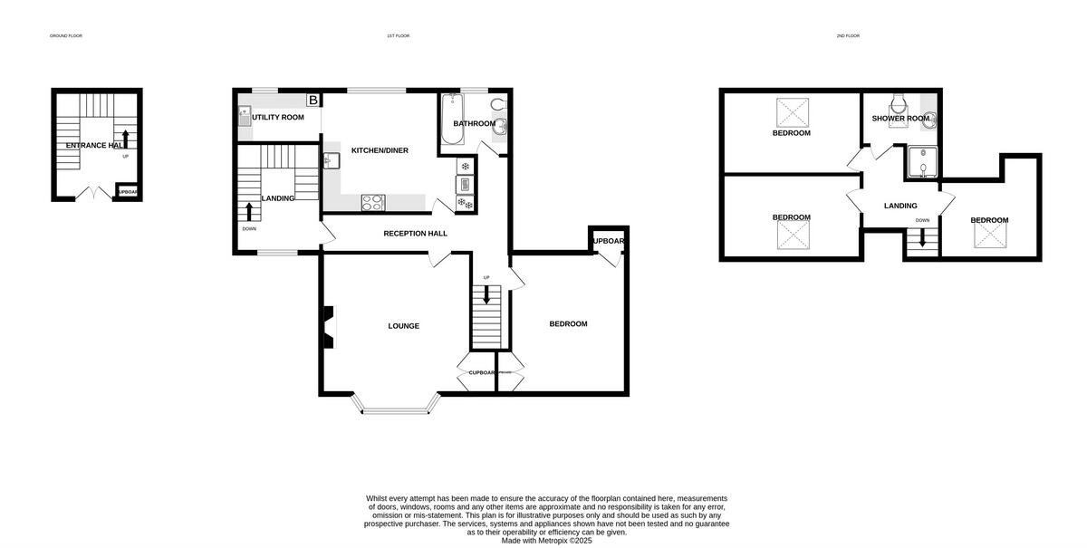
Immaculate, newly renovated 4 bedroom upper conversion. Ground floor entrance, lounge, dining kitchen, utility, 4 bedrooms, bathroom and shower room. With shared garden, parking and garage. In exceptional turn-key condition
Property Oracle says ..
This is a well-presented apartment in a convenient location in Prestwick. The property has been modernised and is in good condition. The shared garden and parking are a bonus. The price is competitive for the area.
Therefore, we give this property 7 / 10. *Disclaimer: This is our option and does constitute a recommendation or financial advice. Do your own research. *
- Price
- 7
- Condition
- 8
- Location
- 7
- Land
- 6
- Bedrooms
- 3
- Bathrooms
- 2
- Sqft (est)
- 1,100.00
The heatmap indicates the level of crime in the area. The color of the heatmap indicates the crime severity and recency.
Metrics Year-on-Year
- Average area value
- 591,667.00 £Increased by 9.11 %
- Est sale value
- 316,800.00 £Decreased by 44.40 %
- Average area rental value
- 2,375.00 £/moIncreased by 124.69 %
- Est letting value
- 1,100.00 £/moUnchanged by 0.00 %
- Est rental Yield
- 4.82 %Increased by 105.98 %
- Crime Rate
- 0.00 %
Agent Activity
Hoppers Estate Agency created the listing.
Images
Nearby Streets
| Name | Average Price | Average Sqft | Distance |
|---|---|---|---|
| Oswald Drive | £ 337,500 | 0 | 0.00 KM |
| The Crescent | £ 242,475 | 0 | 0.00 KM |
| Monkton Road | £ 140,000 | 0 | 0.00 KM |
| Capper View | £ 0 | 0 | 0.00 KM |
| Macintyre Road | £ 151,667 | 0 | 0.00 KM |
Nearby Transport
| Name | NLC | TLC | Distance |
|---|---|---|---|
| Prestwick Town | 9543 | PTW | 0.75 KM |
| Prestwick International Airport | 9544 | PRA | 0.85 KM |
| Newton-On-Ayr | 9571 | NOA | 3.80 KM |
| Ayr | 9463 | AYR | 5.41 KM |
| Troon | 9562 | TRN | 6.74 KM |
Nearby Listings
| Address | Price | Type | Score | Distance |
|---|---|---|---|---|
| Monkton Road, Prestwick, KA9 | £ 260,000 | BUY | 7 / 10 | 0.00 KM |
| The Crescent, Prestwick | £ 260,000 | BUY | Unknown | 0.05 KM |
| Capper View, Prestwick, Ayrshire, KA9 | £ 235,000 | BUY | Unknown | 0.13 KM |
| Saunterne Road, Prestwick, South Ayrshire, KA9 | £ 250,000 | BUY | 5 / 10 | 0.24 KM |
| Saunterne Road, Prestwick, KA9 | £ 125,000 | BUY | 6 / 10 | 0.25 KM |