Great Furlong, Bishopsteignton
By Coast & Country Estate Agents
£ 595,000
Reviews
3 out of 5 stars
Coast & Country Estate Agents says ..
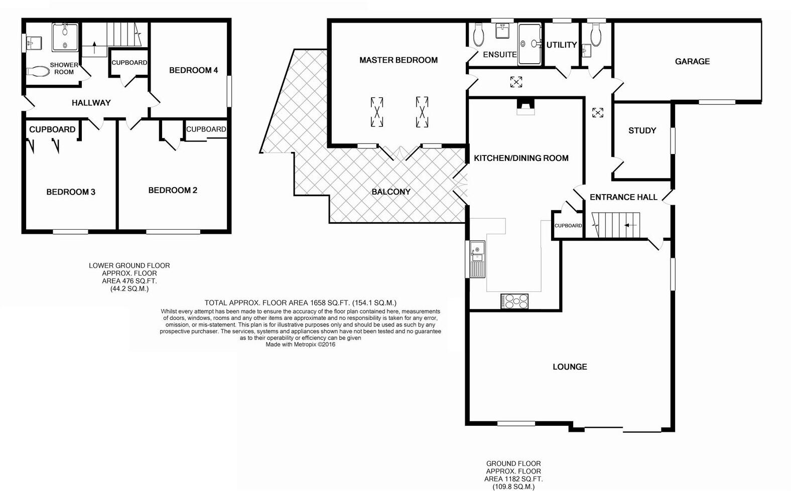
A superb, detached reverse-level house with driveway, garage, gardens, far-reaching views, 4 bedrooms, 2 bathrooms (1 en-suite), study, lounge & kitchen/diner.
Property Oracle says ..
This is a detached property in the desirable village of Bishopsteignton, Devon. The property has four bedrooms and two bathrooms, and a large garden. The property is in good condition, with a modern kitchen and bathrooms. The property is located close to local amenities and schools, with good transport links. The property also benefits from views of the River Teign. The property is priced at £595,000, which is in line with other similar properties in the area. Overall, this is a desirable property in a sought-after location.
Therefore, we give this property 7 / 10. *Disclaimer: This is our option and does constitute a recommendation or financial advice. Do your own research. *
- Price
- 7
- Condition
- 7
- Location
- 7
- Land
- 7
- Bedrooms
- 4
- Bathrooms
- 2
- Sqft (est)
- 2,290.56
The heatmap indicates the level of crime in the area. The color of the heatmap indicates the crime severity and recency.
Metrics Year-on-Year
- Average area value
- 305,488.00 £Decreased by 9.52 %
- Est sale value
- 806,277.12 £Increased by 33.84 %
- Average area rental value
- 1,004.00 £/moDecreased by 1.08 %
- Est letting value
- 2,290.56 £/mo
- Est rental Yield
- 3.94 %Increased by 9.14 %
- Crime Rate
- 37.00 %Unchanged by 0.00 %
Agent Activity
Coast & Country Estate Agents created the listing.
Nearby Schools
| Name | Type | Ofsted | Distance |
|---|---|---|---|
| Bishopsteignton School | Community School | Good | 0.52 KM |
| Teignmouth Community School, Mill Lane | Academy Converter | Good | 3.83 KM |
| Stokeinteignhead School | Community School | Requires improvement | 4.03 KM |
| Dawlish Children'S Centre | Children's Centre | 4.27 KM | |
| Teignmouth Children'S Centre | Children's Centre | 4.27 KM |
Images
Nearby Streets
| Name | Average Price | Average Sqft | Distance |
|---|---|---|---|
| West Street | £ 0 | 0 | 0.00 KM |
| The Haven | £ 0 | 0 | 0.00 KM |
| The Orchard | £ 435,000 | 0 | 0.00 KM |
Nearby Transport
| Name | NLC | TLC | Distance |
|---|---|---|---|
| Teignmouth | 3430 | TGM | 6.08 KM |
| Newton Abbot | 3426 | NTA | 6.16 KM |
| Torre | 3432 | TRR | 9.03 KM |
| Dawlish | 3408 | DWL | 9.81 KM |
Nearby Listings
| Address | Price | Type | Score | Distance |
|---|---|---|---|---|
| Great Furlong, Bishopsteignton | £ 595,000 | BUY | 7 / 10 | 0.00 KM |
| Littlefield, Bishopsteignton, TQ14 | £ 595,000 | BUY | 7 / 10 | 0.07 KM |
| Forder Lane, Bishopsteignton, TQ14 | £ 525,000 | BUY | 7 / 10 | 0.16 KM |
| Murley Crescent, Bishopsteignton, Teignmouth, Devon, TQ14 | £ 700,000 | BUY | 7 / 10 | 0.17 KM |
| Bishopsteignton, Teignmouth | £ 375,000 | BUY | Unknown | 0.28 KM |
Nearby Properties
| Address | Price | Distance |
|---|---|---|
| 11 Littlefield | £ 290,000 | 0.07 KM |
| 9 Littlefield | £ 470,000 | 0.07 KM |
| 16 Littlefield | £ 276,000 | 0.07 KM |
| 3 Littlefield | £ 287,000 | 0.07 KM |
| 15a Littlefield | £ 595,000 | 0.07 KM |