eXp UK says ..
Situated on a sought-after residential street known for its peaceful ambiance and community feel, this delightful two-bedroom ground-floor garden flat offers a superb living experience. Step inside to discover a welcoming open-plan kitchen and living area, thoughtfully designed to create a bri...
Property Oracle says ..
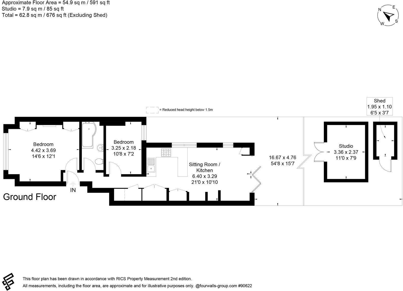
The property is a 2 bedroom, 1 bathroom ground floor flat located in Beckenham, Bromley, with a list price of £450,000. The property has 587 sqft of internal living space and a 676 sqft plot size. Based on the images provided, the property appears to be in excellent condition and has been recently renovated to a high standard. The kitchen and bathroom are modern and well-equipped. The property benefits from a good-sized garden with a shed. The location is good, with nearby transportation links including Kent House and Clock House train stations, both within a short walking distance. There are also several well-regarded schools nearby, including Harris Primary Academy Kent House and Harris Girls Academy Bromley. The average price for properties in the area is £554,426, with an average price per sqft of £500. Given the property’s size, condition, and location, the list price of £450,000 appears to be reasonable, potentially even slightly below market value, considering the recent renovations and the inclusion of a garden. However, it’s important to note that the lack of sqft data for nearby comparable listings limits the accuracy of this price assessment.
Therefore, we give this property 8 / 10. *Disclaimer: This is our option and does constitute a recommendation or financial advice. Do your own research. *
- Price
- 8
- Condition
- 9
- Location
- 8
- Land
- 7
- Bedrooms
- 2
- Bathrooms
- 1
- Sqft (est)
- 586.63
- Lot (est)
- 675.97
The heatmap indicates the level of crime in the area. The color of the heatmap indicates the crime severity and recency.
Metrics Year-on-Year
- Average area value
- 666,950.00 £Increased by 20.68 %
- Est sale value
- 415,920.67 £Increased by 27.98 %
- Average area rental value
- 1,565.00 £/moDecreased by 5.89 %
- Est letting value
- 586.63 £/moUnchanged by 0.00 %
- Est rental Yield
- 2.82 %Decreased by 21.88 %
- Crime Rate
- 7.00 %Unchanged by 0.00 %
Agent Activity
eXp UK created the listing.
Nearby Schools
| Name | Type | Ofsted | Distance |
|---|---|---|---|
| Churchfields Primary School | Academy Converter | 0.39 KM | |
| Alexandra Infant School | Academy Converter | Good | 0.56 KM |
| Harris Primary Academy Kent House | Academy Sponsor Led | Outstanding | 0.62 KM |
| Balgowan Primary School | Academy Converter | Good | 0.76 KM |
| Harris Girls Academy Bromley | Academy Converter | Outstanding | 0.94 KM |
Images
Nearby Streets
| Name | Average Price | Average Sqft | Distance |
|---|---|---|---|
| Chaffinch Road | £ 700,000 | 0 | 0.00 KM |
| Priory Close | £ 625,000 | 0 | 0.00 KM |
| Garden Road | £ 750,000 | 0 | 0.00 KM |
| Monivea Road | £ 0 | 0 | 0.00 KM |
| Fontaime Court | £ 0 | 0 | 0.00 KM |
Nearby Transport
| Name | NLC | TLC | Distance |
|---|---|---|---|
| Kent House | 5080 | KTH | 0.42 KM |
| Clock House | 5048 | CLK | 0.43 KM |
| Elmers End | 5049 | ELE | 1.24 KM |
| Birkbeck | 5401 | BIK | 1.34 KM |
| New Beckenham | 5058 | NBC | 1.38 KM |
Nearby Listings
| Address | Price | Type | Score | Distance |
|---|---|---|---|---|
| Blandford Road, Beckenham, BR3 | £ 450,000 | BUY | 8 / 10 | 0.00 KM |
| Blandford Road, Beckenham, Kent | £ 695,000 | BUY | 8 / 10 | 0.01 KM |
| Blandford Road, Beckenham, BR3 | £ 625,000 | BUY | 7 / 10 | 0.02 KM |
| Blandford Road, Beckenham, BR3 | £ 800,000 | BUY | Unknown | 0.06 KM |
| Blandford Road, Beckenham, BR3 | £ 325,000 | BUY | 5 / 10 | 0.08 KM |
Nearby Properties
| Address | Price | Distance |
|---|---|---|
| 63 Blandford Road | £ 262,000 | 0.01 KM |
| 43 Blandford Road | £ 350,000 | 0.01 KM |
| 27 Blandford Road | £ 610,000 | 0.01 KM |
| 5 Blandford Road | £ 382,000 | 0.01 KM |
| 37b Blandford Road | £ 325,000 | 0.01 KM |