Caulfield Close, Bury St. Edmunds
By Mortimer & Gausden
£ 410,000
Reviews
3 out of 5 stars
Mortimer & Gausden says ..
This is a much-loved family home. It has been enjoyed for decades by the current owners who have made it comfortable and appealing, with many happy memories created here. It also has an enviable position tucked-away at the end of a quiet close, located conveniently just off Vinery Road, ...
Property Oracle says ..
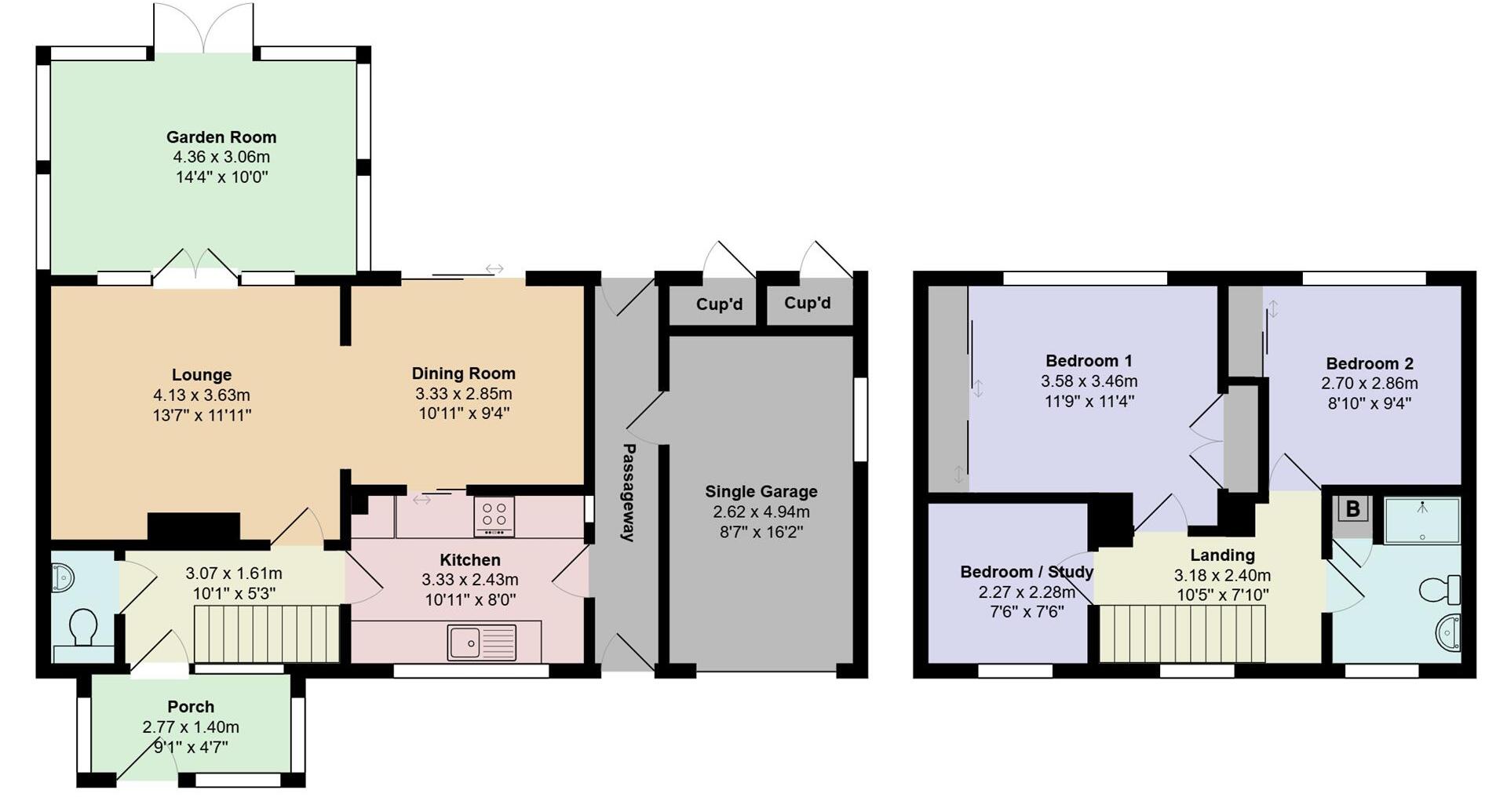
This property is a 3-bedroom, 1-bathroom detached house located in Caulfield Close, Bury St Edmunds. The location is convenient, with nearby schools like Westgate Community Primary School and St Edmund’s Catholic Primary School within a kilometer. Bury St Edmunds train station is also relatively close. The property itself appears to be in good condition, although some interior design choices might be considered dated. The house features a sizable garden, which is a significant advantage. Considering the average price per square foot in the area is £296, and this property is listed at £410,000 with a size of 1030.32 sqft, the price seems slightly high compared to the average house price in the area of £258,798. However, this could be justified by the larger plot size and the good condition of the property.
Therefore, we give this property 7 / 10. *Disclaimer: This is our option and does constitute a recommendation or financial advice. Do your own research. *
- Price
- 6
- Condition
- 7
- Location
- 8
- Land
- 8
- Bedrooms
- 3
- Bathrooms
- 1
- Sqft (est)
- 1,030.32
The heatmap indicates the level of crime in the area. The color of the heatmap indicates the crime severity and recency.
Metrics Year-on-Year
- Average area value
- 222,854.00 £Decreased by 15.77 %
- Est sale value
- 296,732.16 £Decreased by 6.19 %
- Average area rental value
- 1,201.00 £/moIncreased by 7.91 %
- Est letting value
- 1,030.32 £/moUnchanged by 0.00 %
- Est rental Yield
- 6.47 %Increased by 28.12 %
- Crime Rate
- 1.00 %Unchanged by 0.00 %
Agent Activity
Mortimer & Gausden created the listing.
Nearby Schools
| Name | Type | Ofsted | Distance |
|---|---|---|---|
| Westgate Community Primary School And Nursery | Community School | Good | 0.69 KM |
| St Edmund'S Catholic Primary School | Voluntary Aided School | Good | 0.79 KM |
| Guildhall Feoffment Community Primary School | Community School | Good | 1.14 KM |
| Bury Library Children'S Centre | Children's Centre | 1.35 KM | |
| St Edmundsbury Church Of England Voluntary Aided Primary School | Voluntary Aided School | Good | 1.63 KM |
Images
Nearby Streets
| Name | Average Price | Average Sqft | Distance |
|---|---|---|---|
| Maid Marion Court | £ 0 | 0 | 0.00 KM |
| Cullum Road | £ 0 | 0 | 0.00 KM |
| Maple Close | £ 0 | 0 | 0.00 KM |
| Chevington Close | £ 350,000 | 0 | 0.00 KM |
| Plumptons Court | £ 0 | 0 | 0.00 KM |
Nearby Transport
| Name | NLC | TLC | Distance |
|---|---|---|---|
| Bury St Edmunds | 7008 | BSE | 2.08 KM |
Nearby Listings
| Address | Price | Type | Score | Distance |
|---|---|---|---|---|
| Caulfield Close, Bury St. Edmunds | £ 410,000 | BUY | 7 / 10 | 0.00 KM |
| Bury St. Edmunds, Suffolk | £ 565,000 | BUY | 6 / 10 | 0.10 KM |
| Barons Road, Bury St. Edmunds | £ 350,000 | BUY | 5 / 10 | 0.23 KM |
| Rembrandt Way, Bury St. Edmunds | £ 625,000 | BUY | 7 / 10 | 0.25 KM |
| Rembrandt Way, Bury St. Edmunds | £ 395,000 | BUY | Unknown | 0.25 KM |
Nearby Properties
| Address | Price | Distance |
|---|---|---|
| 5 Finley Way | £ 230,000 | 0.07 KM |
| 1 Finley Way | £ 250,000 | 0.07 KM |
| 3 Finley Way | £ 452,000 | 0.07 KM |
| 11 Finley Way | £ 462,500 | 0.07 KM |
| 10 Finley Way | £ 650,000 | 0.07 KM |