Challoners Close, East Molesey, KT8
By Tudor & Co
£ 935,000
Reviews
3 out of 5 stars
Tudor & Co says ..
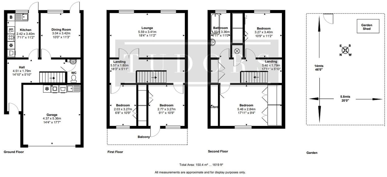
TUDORS are pleased to offer for sale this rare to the market, stunning five bedroom, three bathroom town house which is tucked away in a quiet cul-de-sac located in the heart of East Molesey village and set within easy reach of Hampton Court Station – Ideal for commuter into London, zone...
Property Oracle says ..
This is a 5-bedroom terraced house in East Molesey, Surrey. The property is in good condition and features a modern kitchen and bathrooms. It also has a well-maintained garden with a patio area. The location is convenient, with several schools and Hampton Court train station nearby. The list price of £935,000 is a little high compared to the average price in the area, but the property’s size and features may justify the premium. Overall, this is a desirable property in a sought-after location.
Therefore, we give this property 7 / 10. *Disclaimer: This is our option and does constitute a recommendation or financial advice. Do your own research. *
- Price
- 6
- Condition
- 8
- Location
- 7
- Land
- 7
- Bedrooms
- 5
- Bathrooms
- 3
The heatmap indicates the level of crime in the area. The color of the heatmap indicates the crime severity and recency.
Metrics Year-on-Year
- Average area value
- 736,658.00 £Decreased by 7.15 %
- Average area rental value
- 2,100.00 £/moDecreased by 8.93 %
- Est rental Yield
- 3.42 %Decreased by 2.01 %
- Crime Rate
- 12.00 %Unchanged by 0.00 %
Agent Activity
Tudor & Co created the listing.
Nearby Schools
| Name | Type | Ofsted | Distance |
|---|---|---|---|
| St Lawrence Cofe Aided Junior School, East Molesey | Voluntary Aided School | Good | 0.41 KM |
| The Orchard Infant School | Foundation School | Outstanding | 0.49 KM |
| St Alban'S Catholic Primary School | Academy Converter | Good | 1.02 KM |
| St Paul'S Catholic Primary School, Thames Ditton | Voluntary Aided School | Good | 1.45 KM |
| Hampton Court House | Other Independent School | 1.46 KM |
Images
Nearby Streets
| Name | Average Price | Average Sqft | Distance |
|---|---|---|---|
| School Road | £ 573,429 | 0 | 0.00 KM |
| Grove Road | £ 1,087,500 | 0 | 0.00 KM |
| Manor Road | £ 1,525,000 | 0 | 0.00 KM |
| Kent Road | £ 1,166,650 | 0 | 0.00 KM |
| Church Road | £ 1,093,571 | 0 | 0.00 KM |
Nearby Transport
| Name | NLC | TLC | Distance |
|---|---|---|---|
| Hampton Court | 5561 | HMC | 1.19 KM |
| Thames Ditton | 5610 | THD | 2.05 KM |
| Esher | 5558 | ESH | 2.33 KM |
| Hampton | 5560 | HMP | 2.66 KM |
| Hinchley Wood | 5591 | HYW | 3.21 KM |
Nearby Listings
| Address | Price | Type | Score | Distance |
|---|---|---|---|---|
| Challoners Close, East Molesey, KT8 | £ 935,000 | BUY | 7 / 10 | 0.00 KM |
| Challoners Close, East Molesey | £ 785,000 | BUY | 7 / 10 | 0.03 KM |
| School Road, East Molesey, Surrey, KT8 | £ 595,000 | BUY | 7 / 10 | 0.06 KM |
| School Road, East Molesey | £ 779,000 | BUY | 7 / 10 | 0.08 KM |
| Grove Road, East Molesey, KT8 | £ 895,000 | BUY | 7 / 10 | 0.13 KM |
Nearby Properties
| Address | Price | Distance |
|---|---|---|
| 17 Challoners Close | £ 411,000 | 0.01 KM |
| 5 Challoners Close | £ 510,000 | 0.01 KM |
| 11 Challoners Close | £ 430,000 | 0.01 KM |
| 9 Challoners Close | £ 465,000 | 0.01 KM |
| 10 Challoners Close | £ 367,000 | 0.01 KM |