DU
Ullswater, Bracknell, Berkshire, RG12
By Duncan Yeardley Estate Agents
£ 350,000
Reviews
3 out of 5 stars
Duncan Yeardley Estate Agents says ..
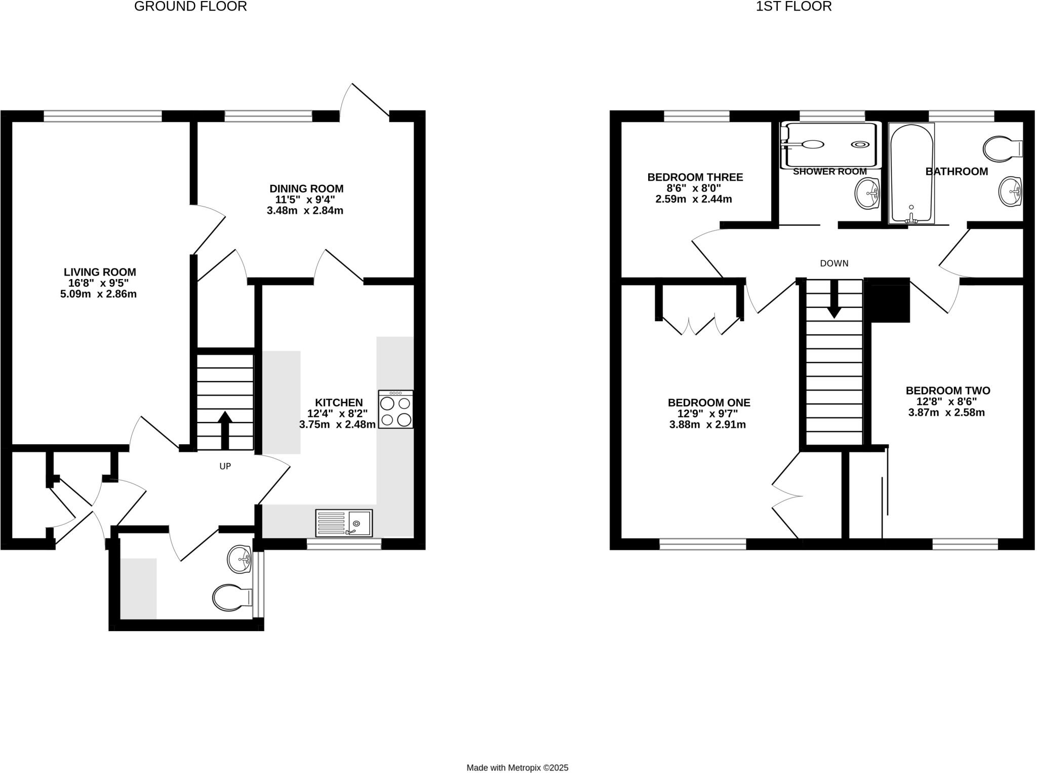
** NO ONWARD CHAIN ** Siding onto a lovely green space with a play park and field behind, this spacious three bedroom, two bathroom family home is an ideal purchase for first time buyers. The accommodation of this impressive family home comprises of a sizable living room, s...
Property Oracle says ..
Therefore, we give this property 6 / 10. *Disclaimer: This is our option and does constitute a recommendation or financial advice. Do your own research. *
- Price
- 5
- Condition
- 6
- Location
- 7
- Land
- 7
- Bedrooms
- 3
- Bathrooms
- 2
- Sqft (est)
- 660.26
The heatmap indicates the level of crime in the area. The color of the heatmap indicates the crime severity and recency.
Metrics Year-on-Year
- Average area value
- 217,143.00 £Decreased by 10.70 %
- Est sale value
- 162,423.96 £Decreased by 12.14 %
- Average area rental value
- 1,267.00 £/moIncreased by 25.57 %
- Est letting value
- 660.26 £/moUnchanged by 0.00 %
- Est rental Yield
- 7.00 %Increased by 40.56 %
- Crime Rate
- 13.00 %Unchanged by 0.00 %
from 243,173.00 £
from 184,872.80 £
from 1,009.00 £/mo
from 660.26 £/mo
from 4.98 %
from 13.00 %
Agent Activity
Duncan Yeardley Estate Agents created the listing.
Nearby Schools
| Name | Type | Ofsted | Distance |
|---|---|---|---|
| Wooden Hill Primary And Nursery School | Community School | Good | 0.56 KM |
| St Margaret Clitherow Catholic Primary School, Bracknell | Academy Converter | Good | 0.68 KM |
| Great Hollands Primary School | Academy Sponsor Led | 0.71 KM | |
| The Hollies Children'S Centre | Children's Centre Linked Site | 0.75 KM | |
| Oaks And Hollies Children'S Centre | Children's Centre | 0.75 KM |
Images
Nearby Streets
| Name | Average Price | Average Sqft | Distance |
|---|---|---|---|
| Great Hollands Road | £ 340,000 | 0 | 0.00 KM |
| Dry Pond Ride | £ 0 | 0 | 0.00 KM |
| Aysgarth | £ 0 | 0 | 0.00 KM |
| Ringmead | £ 0 | 0 | 0.00 KM |
| Redwing Place | £ 0 | 0 | 0.00 KM |
Nearby Transport
| Name | NLC | TLC | Distance |
|---|---|---|---|
| Bracknell | 5693 | BCE | 3.05 KM |
| Martins Heron | 5692 | MAO | 5.45 KM |
| Crowthorne | 5628 | CRN | 6.08 KM |
| Sandhurst (Berks) | 5646 | SND | 6.41 KM |
| Blackwater | 5625 | BAW | 7.02 KM |
Nearby Listings
| Address | Price | Type | Score | Distance |
|---|---|---|---|---|
| Ullswater, Bracknell, Berkshire, RG12 | £ 350,000 | BUY | 6 / 10 | 0.00 KM |
| Ullswater, Bracknell, Berkshire, RG12 | £ 400,000 | BUY | 6 / 10 | 0.00 KM |
| Ullswater, Bracknell | £ 365,000 | BUY | Unknown | 0.00 KM |
| Ullswater, Bracknell, Berkshire | £ 350,000 | BUY | 6 / 10 | 0.14 KM |
| Ullswater, Bracknell, Berkshire, RG12 | £ 200,000 | BUY | 5 / 10 | 0.16 KM |
Nearby Properties
| Address | Price | Distance |
|---|---|---|
| 129 Ullswater | £ 270,000 | 0.02 KM |
| 123 Ullswater | £ 258,000 | 0.02 KM |
| 145 Ullswater | £ 296,500 | 0.02 KM |
| 161 Ullswater | £ 148,000 | 0.02 KM |
| 165 Ullswater | £ 345,000 | 0.02 KM |