Silhill Hall Road, Solihull
By Smart Homes Portfolio Collection
£ 1,200,000
Reviews
3 out of 5 stars
Smart Homes Portfolio Collection says ..
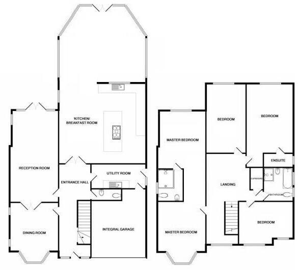
An impressive and extended four/five bedroom detached family home offering two spacious reception rooms, impressive extended breakfast kitchen diner, conservatory, utility, guest WC, four double first floor bedrooms, dressing room, two en-suites and four piece family bathroom, loft conversion ...
Property Oracle says ..
This is a detached property located on Silhill Hall Road, Solihull. It features four bedrooms and three bathrooms, with a total square footage of 1,730. The property is listed for £1,200,000 by Smart Homes Portfolio Collection. The house is in good condition, with a modern kitchen and bathrooms. It also benefits from a well-maintained garden. The location is desirable, with good access to local amenities, schools, and transportation links. However, the price is relatively high compared to other properties in the area.
Therefore, we give this property 7 / 10. *Disclaimer: This is our option and does constitute a recommendation or financial advice. Do your own research. *
- Price
- 6
- Condition
- 8
- Location
- 8
- Land
- 7
- Bedrooms
- 4
- Bathrooms
- 3
- Sqft (est)
- 1,730.00
The heatmap indicates the level of crime in the area. The color of the heatmap indicates the crime severity and recency.
Metrics Year-on-Year
- Average area value
- 603,889.00 £Increased by 40.02 %
- Est sale value
- 865,000.00 £Increased by 46.63 %
- Average area rental value
- 1,340.00 £/moIncreased by 1.44 %
- Est letting value
- 1,730.00 £/moUnchanged by 0.00 %
- Est rental Yield
- 2.66 %Decreased by 27.72 %
- Crime Rate
- 0.00 %
Agent Activity
Smart Homes Portfolio Collection created the listing.
Nearby Schools
| Name | Type | Ofsted | Distance |
|---|---|---|---|
| Oak Cottage Primary School | Community School | Outstanding | 0.92 KM |
| Greswold Primary School | Community School | Good | 1.40 KM |
| Solihull College & University Centre | Further Education | 1.49 KM | |
| Sharmans Cross Junior School | Community School | Good | 1.50 KM |
| Eversfield Preparatory School | Other Independent School | 1.66 KM |
Images
Nearby Streets
| Name | Average Price | Average Sqft | Distance |
|---|---|---|---|
| Stonor Park Road | £ 0 | 0 | 0.00 KM |
| Sutton Lodge | £ 0 | 0 | 0.00 KM |
| Station Approach | £ 0 | 0 | 0.00 KM |
| Princes Way | £ 0 | 0 | 0.00 KM |
| Spring Close | £ 1,295,000 | 0 | 0.00 KM |
Nearby Transport
| Name | NLC | TLC | Distance |
|---|---|---|---|
| Solihull | 4527 | SOL | 1.15 KM |
| Olton | 4533 | OLT | 2.06 KM |
| Widney Manor | 4528 | WMR | 3.72 KM |
| Acocks Green | 4529 | ACG | 4.01 KM |
| Spring Road | 4535 | SRI | 5.28 KM |
Nearby Listings
| Address | Price | Type | Score | Distance |
|---|---|---|---|---|
| Silhill Hall Road, Solihull | £ 1,200,000 | BUY | 7 / 10 | 0.00 KM |
| Silhill Hall Road, Solihull, B91 | £ 835,000 | BUY | 8 / 10 | 0.09 KM |
| Silhill Hall Road, Solihull, B91 | £ 825,000 | BUY | 8 / 10 | 0.10 KM |
| Silhill Hall Road, Solihull | £ 1,200,000 | BUY | 6 / 10 | 0.20 KM |
| Silhill Hall Road, Solihull | £ 1,200,000 | BUY | 7 / 10 | 0.20 KM |
Nearby Properties
| Address | Price | Distance |
|---|---|---|
| 398 Warwick Road | £ 700,000 | 0.12 KM |
| 400 Warwick Road | £ 199,000 | 0.12 KM |
| 14 Silhill Hall Road | £ 995,000 | 0.12 KM |
| 12 Silhill Hall Road | £ 171,500 | 0.12 KM |
| 40 Silhill Hall Road | £ 722,000 | 0.12 KM |