Thackney Leys, Kibworth, LE8
By Adore Fine Homes Limited
£ 66,000
Reviews
3 out of 5 stars
Adore Fine Homes Limited says ..
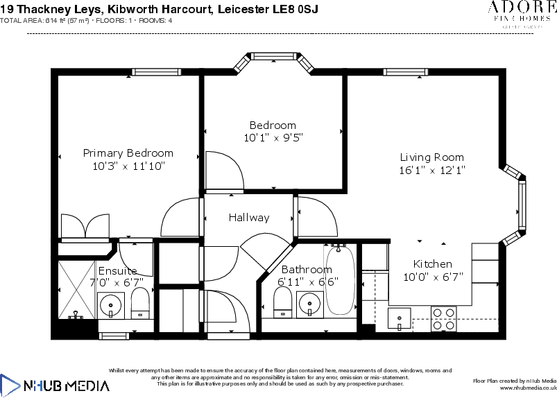
A well presented David Wilson constructed ground floor apartment in secluded and quiet location on the popular Kibworth Meadows development featuring two double bedrooms, two bathrooms and garage offered on a 40% SHARED OWNERSHIP basis with no forward chain.
Property Oracle says ..
The property is a 2-bedroom, 2-bathroom apartment with a total area of 561 sqft. The list price is £66,000. The average price for properties in the area is significantly higher, at £358,482, with an average price per sqft of £322. This suggests that the list price for this property is considerably lower than the average for the area. However, it is important to note that the average property size in the area is 1,112 sqft, significantly larger than the subject property. The smaller size of the apartment may account for the substantially lower list price. The photos show the property to be in good condition, with a modern and well-maintained interior. There is no evidence of any significant repairs or renovations needed. The property does not appear to have a private garden or significant land associated with it. This is consistent with the plot size of 0.00 sqft. The property’s location in Kibworth, Leicestershire, is positive, with nearby primary and secondary schools. The proximity to schools is a significant advantage for families. However, information regarding other amenities such as transportation links and shops is not available. Given the property’s good condition, its proximity to schools, and its significantly lower price compared to the average price in the area, the list price of £66,000 appears to be reasonable, especially considering its smaller size compared to other properties in the area. However, the lack of a garden and further details on local amenities should be considered by potential buyers.
Therefore, we give this property 6 / 10. *Disclaimer: This is our option and does constitute a recommendation or financial advice. Do your own research. *
- Price
- 8
- Condition
- 9
- Location
- 7
- Land
- 1
- Bedrooms
- 2
- Bathrooms
- 2
- Sqft (est)
- 561.00
The heatmap indicates the level of crime in the area. The color of the heatmap indicates the crime severity and recency.
Metrics Year-on-Year
- Average area value
- 933,929.00 £Increased by 71.28 %
- Est sale value
- 297,330.00 £Increased by 76.08 %
- Average area rental value
- 1,223.00 £/moIncreased by 13.24 %
- Est letting value
- 0.00 £/mo
- Est rental Yield
- 1.57 %Decreased by 34.03 %
- Crime Rate
- 145.00 %Unchanged by 0.00 %
Agent Activity
Adore Fine Homes Limited created the listing.
Nearby Schools
| Name | Type | Ofsted | Distance |
|---|---|---|---|
| Kibworth Church Of England Primary School | Academy Converter | 0.57 KM | |
| Kibworth Mead Academy | Academy Converter | Requires improvement | 1.23 KM |
| Stoneygate School | Other Independent School | 3.28 KM | |
| The Lady Byron School | Other Independent Special School | 4.59 KM | |
| Great Glen St Cuthbert'S Church Of England Primary School | Voluntary Controlled School | Requires improvement | 4.69 KM |
Images
Nearby Streets
| Name | Average Price | Average Sqft | Distance |
|---|---|---|---|
| Glebeland | £ 300,000 | 0 | 0.00 KM |
| Melbourne Close | £ 362,500 | 0 | 0.00 KM |
| Gladstone Street | £ 413,077 | 0 | 0.00 KM |
| Prospect Road | £ 377,857 | 0 | 0.00 KM |
| Buller Street | £ 585,000 | 0 | 0.00 KM |
Nearby Listings
| Address | Price | Type | Score | Distance |
|---|---|---|---|---|
| Thackney Leys, Kibworth, LE8 | £ 66,000 | BUY | 6 / 10 | 0.00 KM |
| Thackney Leys, Kibworth, LE8 | £ 165,000 | BUY | 5 / 10 | 0.00 KM |
| Thackney Leys, Kibworth, LE8 | £ 615,000 | BUY | 7 / 10 | 0.00 KM |
| Thackney Leys, Kibworth Harcourt, Leicester | £ 325,000 | BUY | 7 / 10 | 0.03 KM |
| Dairy Way, Kibworth Harcourt, Leicester | £ 320,000 | BUY | 7 / 10 | 0.06 KM |
Nearby Properties
| Address | Price | Distance |
|---|---|---|
| 12 Thackney Leys | £ 206,500 | 0.00 KM |
| 17 Thackney Leys | £ 272,500 | 0.00 KM |
| 1 Thackney Leys | £ 420,000 | 0.00 KM |
| 11 Thackney Leys | £ 216,000 | 0.00 KM |
| 19 Thackney Leys | £ 44,800 | 0.00 KM |