Block of 6 Flats Let Until 2065, Blackpool, FY1
By The Online Property Agency
£ 549,800
Reviews
2 out of 5 stars
The Online Property Agency says ..
£60,465.60 P.A Net Rent - 11% Net Yield - Freehold Block of 6 Flats
Property Oracle says ..
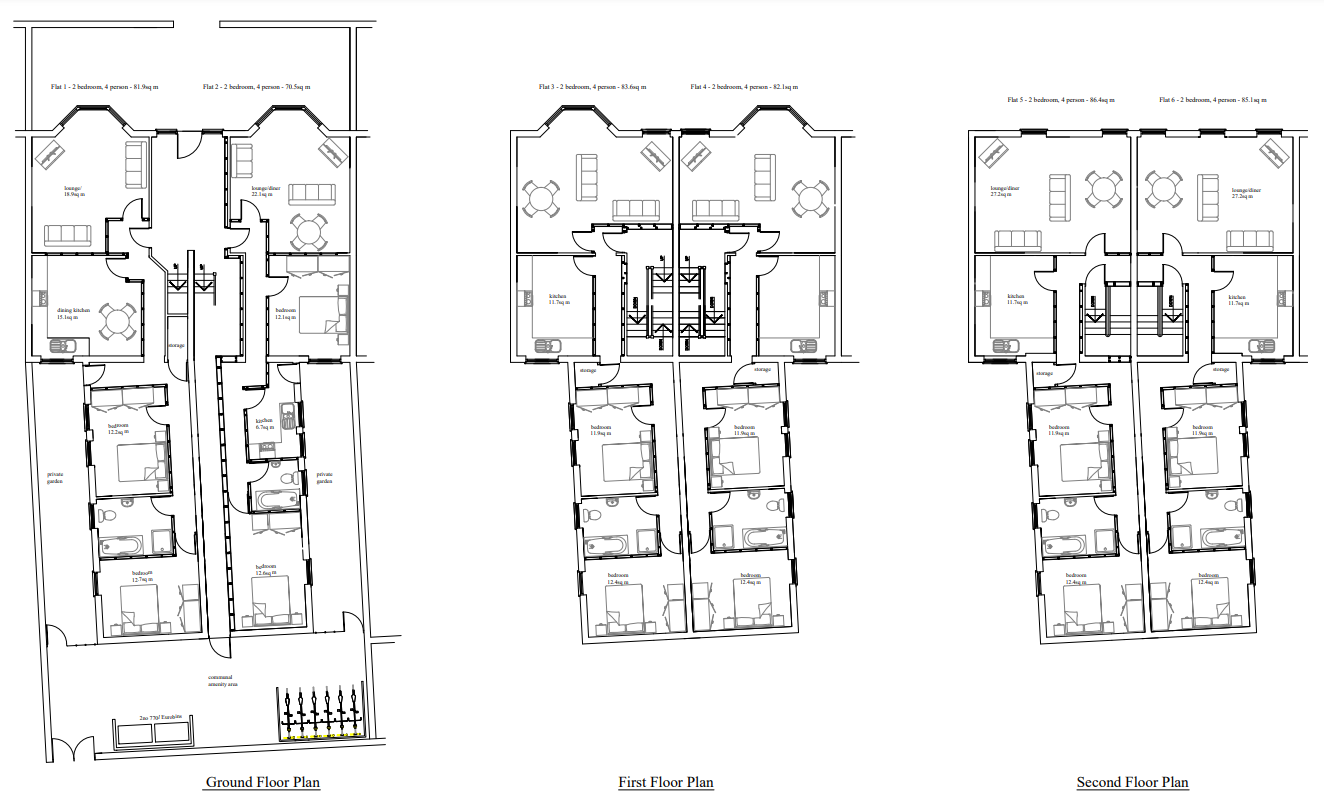
This property is a freehold block of six flats located in Blackpool, Lancashire. The listing emphasizes its potential as an investment property, generating a substantial rental income with a high yield (£60,465.60 per annum). The block consists of 12 bedrooms and 6 bathrooms, making it suitable for renting to multiple occupants, likely students or young professionals. The interior appears recently renovated, with modern kitchens and bathrooms and well-furnished living spaces, increasing appeal to potential renters. The exterior images also suggests a maintained and well-presented building. However, the lack of plot size details makes it impossible to calculate a price per square foot value or ascertain the exact value of the property. Blackpool’s location as a seaside resort town has pros and cons. While it attracts tourism, certain areas may face issues regarding property value compared to other parts of the country. The proximity to transport links and schools are beneficial, but a more detailed valuation and a comprehensive market analysis would be required to fully evaluate the investment potential and accuracy of the asking price.
Therefore, we give this property 5 / 10. *Disclaimer: This is our option and does constitute a recommendation or financial advice. Do your own research. *
- Price
- 6
- Condition
- 8
- Location
- 7
- Land
- 1
- Bedrooms
- 12
- Bathrooms
- 6
- Sqft (est)
- 2,709.28
The heatmap indicates the level of crime in the area. The color of the heatmap indicates the crime severity and recency.
Metrics Year-on-Year
- Average area value
- 180,000.00 £Decreased by 46.31 %
- Est sale value
- 490,379.68 £Decreased by 20.26 %
- Average area rental value
- 1,025.00 £/moDecreased by 8.40 %
- Est letting value
- 2,709.28 £/mo
- Est rental Yield
- 6.83 %Increased by 70.32 %
- Crime Rate
- 13.00 %Unchanged by 0.00 %
Agent Activity
The Online Property Agency created the listing.
Nearby Schools
| Name | Type | Ofsted | Distance |
|---|---|---|---|
| Blackpool St John'S Church Of England Primary School | Voluntary Aided School | Good | 0.64 KM |
| Bfc School | Other Independent School | 0.94 KM | |
| Revoe Learning Academy | Academy Sponsor Led | Good | 1.11 KM |
| Blackpool Gateway Academy | Academy Converter | Requires improvement | 1.22 KM |
| Revoe Children'S Centre | Children's Centre | 1.24 KM |
Images
Nearby Streets
| Name | Average Price | Average Sqft | Distance |
|---|---|---|---|
| Hamilton Court | £ 0 | 0 | 0.00 KM |
| Princess Court | £ 105,000 | 0 | 0.00 KM |
| Chapel Street | £ 0 | 0 | 0.00 KM |
| Princess Street | £ 63,333 | 0 | 0.00 KM |
| Chadwick Street | £ 0 | 0 | 0.00 KM |
Nearby Transport
| Name | NLC | TLC | Distance |
|---|---|---|---|
| Blackpool North | 2739 | BPN | 0.94 KM |
| Blackpool South | 2740 | BPS | 1.67 KM |
| Blackpool Pleasure Beach | 2738 | BPB | 2.87 KM |
| Layton (Lancs) | 2669 | LAY | 3.34 KM |
| Squires Gate | 2666 | SQU | 4.03 KM |
Nearby Listings
| Address | Price | Type | Score | Distance |
|---|---|---|---|---|
| Block of 6 Flats Let Until 2065, Blackpool, FY1 | £ 549,800 | BUY | 5 / 10 | 0.00 KM |
| Coronation Street, Blackpool, Lancashire, FY1 4QE | £ 280,000 | BUY | 4 / 10 | 0.03 KM |
| Havelock Street, Blackpool, Lancashire, FY1 | £ 200,000 | BUY | 5 / 10 | 0.04 KM |
| Coronation Street, Blackpool, FY1 4QE | £ 17,000 | BUY | Unknown | 0.07 KM |
| Hull Road, Blackpool, Lancashire, FY1 | £ 85,000 | BUY | 4 / 10 | 0.16 KM |
Nearby Properties
| Address | Price | Distance |
|---|---|---|
| 34 Hornby Road | £ 88,000 | 0.04 KM |
| 18 Havelock Street | £ 86,000 | 0.04 KM |
| 3 Havelock Street | £ 60,000 | 0.04 KM |
| 84 Central Drive | £ 35,000 | 0.09 KM |
| 80a Central Drive | £ 31,000 | 0.09 KM |