Avenue Road, High Kelling, Norfolk
By Brown & Co
£ 1,100,000
Reviews
4 out of 5 stars
Brown & Co says ..
Derek Foreman Homes, established and national award winning local builders, have remodelled and extended the property with the intention of creating a special home which embraces modern living with refined interior design and the latest efficient technology. By doing so, they have excelled in eve...
Property Oracle says ..
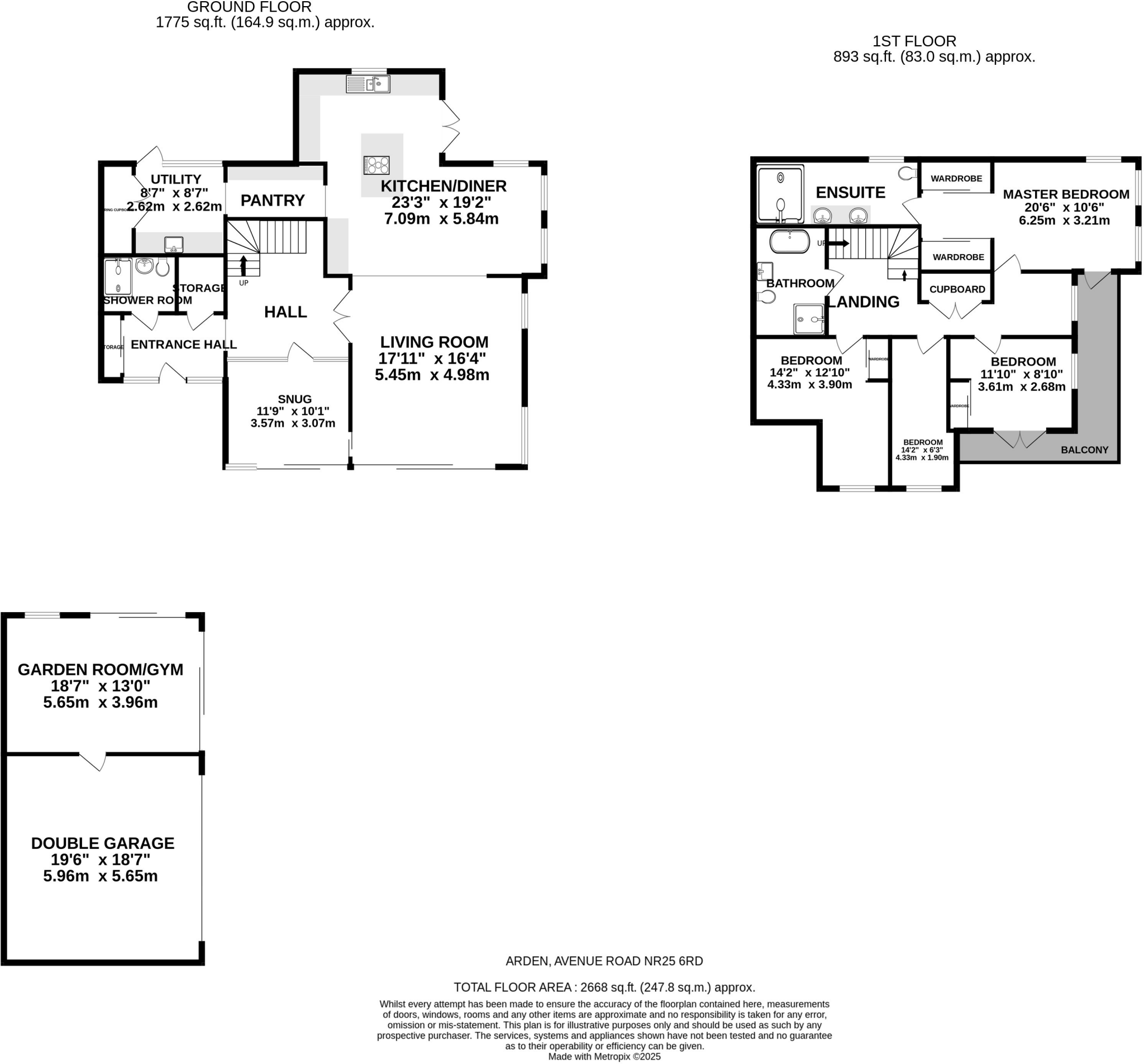
The property is located in High Kelling, a village near Holt in North Norfolk. While the provided data doesn’t detail amenities in immediate proximity, the presence of several schools within a reasonable distance (Gresham’s School, Kelling CE Primary School, Holt Community Primary School, and Sheringham High School) suggests access to education. The proximity to Sheringham via Greater Anglia rail service indicates convenient transport links. Further information on local shops and other amenities would be needed for a more comprehensive location assessment. Based on the provided images, the property appears to be in excellent condition. It is modern, well-maintained, and shows no signs of disrepair or needing renovation. The interior finishes are high-quality and contemporary. The property includes a substantial garden area, visible in multiple photos. The garden appears well-maintained and offers ample space. The presence of a detached garage/gym building further enhances the property’s land value. The list price of £1,100,000 is significantly higher than the average house price in the area (£512,717). However, without the square footage of the property, a definitive price-per-square-foot comparison cannot be made. The property’s superior condition, modern design, and substantial land size likely justify a higher-than-average price. However, a direct comparison to similar properties in the area, with their square footage, would be needed to determine if the price is reasonable. The nearby listings show a range of prices, but without sqft data, a precise comparison is impossible.
Therefore, we give this property 8 / 10. *Disclaimer: This is our option and does constitute a recommendation or financial advice. Do your own research. *
- Price
- 7
- Condition
- 10
- Location
- 7
- Land
- 10
- Bedrooms
- 4
- Bathrooms
- 3
The heatmap indicates the level of crime in the area. The color of the heatmap indicates the crime severity and recency.
Metrics Year-on-Year
- Average area value
- 398,765.00 £Decreased by 0.35 %
- Average area rental value
- 1,263.00 £/moIncreased by 3.52 %
- Est rental Yield
- 3.80 %Increased by 3.83 %
- Crime Rate
- 4.00 %Unchanged by 0.00 %
Agent Activity
Brown & Co created the listing.
Nearby Schools
| Name | Type | Ofsted | Distance |
|---|---|---|---|
| Gresham'S School | Other Independent School | 2.84 KM | |
| Kelling Ce Primary School | Voluntary Aided School | Good | 3.37 KM |
| Corpusty And Holt Area Children'S Centre | Children's Centre | 3.83 KM | |
| Holt Community Primary School | Community School | Good | 4.83 KM |
| Sheringham High School | Academy Converter | Good | 7.99 KM |
Images
Nearby Transport
| Name | NLC | TLC | Distance |
|---|---|---|---|
| Sheringham | 7319 | SHM | 9.44 KM |
Nearby Listings
| Address | Price | Type | Score | Distance |
|---|---|---|---|---|
| Avenue Road, High Kelling, Norfolk | £ 1,100,000 | BUY | 8 / 10 | 0.00 KM |
| Avenue Road, High Kelling | £ 300,000 | BUY | 6 / 10 | 0.00 KM |
| Beech Close, High Kelling | £ 550,000 | BUY | 6 / 10 | 0.18 KM |
| High Kelling | £ 725,000 | BUY | Unknown | 0.23 KM |
| Pineheath Road, High Kelling, Norfolk | £ 725,000 | BUY | 7 / 10 | 0.23 KM |
Nearby Properties
| Address | Price | Distance |
|---|---|---|
| 6 Avenue Road | £ 290,000 | 0.00 KM |
| 18 Avenue Road | £ 300,000 | 0.00 KM |
| 22 Avenue Road | £ 425,000 | 0.00 KM |
| 10 Avenue Road | £ 520,000 | 0.00 KM |
| 25 Avenue Road | £ 344,000 | 0.00 KM |