Winds Point, Hagley, Stourbridge
By Grove Properties Group
£ 400,000
Reviews
4 out of 5 stars
Grove Properties Group says ..
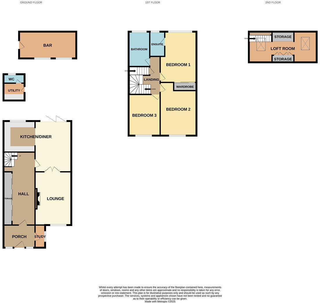
Welcome to Winds Point, a fabulously maintained three bedroom property which has undergone extensive conversion to utilise the space within. Located at the top of the cul de sac, this family home is within walking distance of the local primary and secondary schools, along with being jus...
Property Oracle says ..
Therefore, we give this property 8 / 10. *Disclaimer: This is our option and does constitute a recommendation or financial advice. Do your own research. *
- Price
- 9
- Condition
- 9
- Location
- 8
- Land
- 6
- Bedrooms
- 3
- Bathrooms
- 2
- Sqft (est)
- 1,513.00
The heatmap indicates the level of crime in the area. The color of the heatmap indicates the crime severity and recency.
Metrics Year-on-Year
- Average area value
- 697,000.00 £Increased by 33.16 %
- Est sale value
- 584,018.00 £Decreased by 34.35 %
- Average area rental value
- 995.00 £/moDecreased by 49.62 %
- Est letting value
- 0.00 £/moDecreased by 100.00 %
- Est rental Yield
- 1.71 %Decreased by 62.25 %
- Crime Rate
- 5.00 %Unchanged by 0.00 %
from 523,439.00 £
from 889,644.00 £
from 1,975.00 £/mo
from 3,026.00 £/mo
from 4.53 %
from 5.00 %
Agent Activity
Grove Properties Group created the listing.
Nearby Schools
| Name | Type | Ofsted | Distance |
|---|---|---|---|
| Conkers Children'S Centre | Children's Centre | 0.43 KM | |
| Hagley Primary School | Community School | Good | 0.65 KM |
| Haybridge High School And Sixth Form | Academy Converter | 0.91 KM | |
| Hagley Catholic High School | Academy Converter | Good | 0.99 KM |
| St Joseph'S Rc Primary School | Academy Converter | Good | 2.20 KM |
Images
Nearby Streets
| Name | Average Price | Average Sqft | Distance |
|---|---|---|---|
| Long Compton Drive | £ 800,000 | 0 | 0.00 KM |
| Western Road | £ 875,000 | 0 | 0.00 KM |
| The Paddock | £ 0 | 0 | 0.00 KM |
| Malvern Gardens | £ 725,000 | 0 | 0.00 KM |
| The Woodlands | £ 0 | 0 | 0.00 KM |
Nearby Transport
| Name | NLC | TLC | Distance |
|---|---|---|---|
| Hagley | 4577 | HAG | 0.71 KM |
| Stourbridge Junction | 4646 | SBJ | 2.53 KM |
| Stourbridge Town | 4643 | SBT | 3.29 KM |
| Blakedown | 4574 | BKD | 4.52 KM |
| Lye (West Midlands) | 4640 | LYE | 4.69 KM |
Nearby Listings
| Address | Price | Type | Score | Distance |
|---|---|---|---|---|
| Winds Point, Hagley, Stourbridge | £ 400,000 | BUY | 8 / 10 | 0.00 KM |
| Winds Point, Hagley | £ 300,000 | BUY | 7 / 10 | 0.06 KM |
| Winds Point, Hagley, Stourbridge | £ 400,000 | BUY | 6 / 10 | 0.11 KM |
| Eton Walk, Hagley | £ 335,000 | BUY | 7 / 10 | 0.14 KM |
| Winds Point, Hagley | £ 400,000 | BUY | 8 / 10 | 0.17 KM |
Nearby Properties
| Address | Price | Distance |
|---|---|---|
| 33 Winds Point | £ 265,000 | 0.07 KM |
| 4 Harrow Close | £ 378,000 | 0.07 KM |
| 7 Harrow Close | £ 179,500 | 0.07 KM |
| 21 Winds Point | £ 230,000 | 0.08 KM |
| 25 Winds Point | £ 68,000 | 0.08 KM |