Acorn says ..
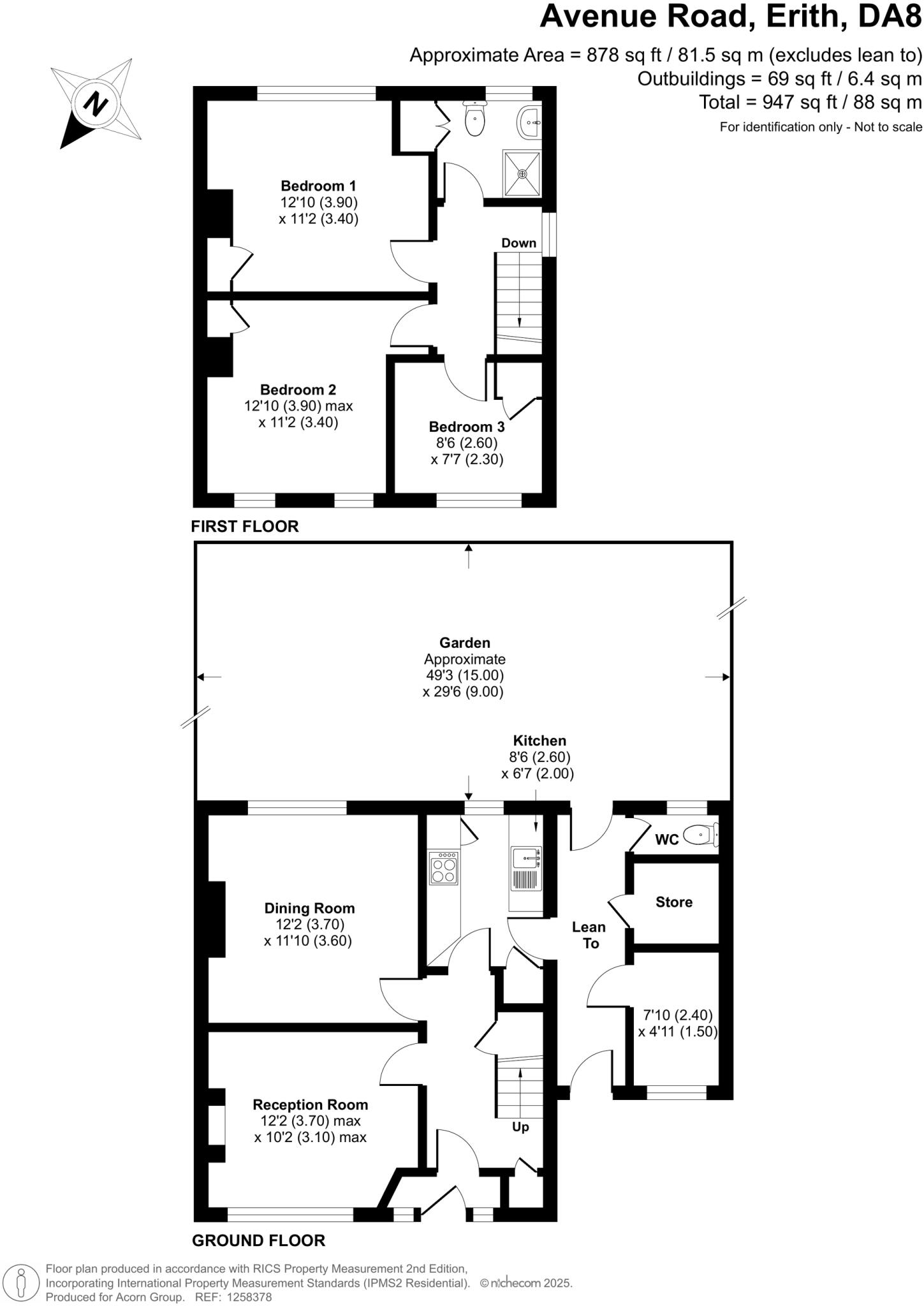
This well-maintained family home is located within a sought-after area in Northumberland Heath, providing a great opportunity for buyers to add value and create their dream home with tons of potential to extend (STPP). The accommodation offers 878sqft of floorspace internally with extra space whe...
Property Oracle says ..
This property is a 3-bedroom, 2-bathroom semi-detached house located on Avenue Road in Erith, Bexley. The list price is £475,000, and the property has a plot size of 947 sqft and is 2080 sqft in size. The area has an average house price of £452,381 and an average price per sqft of £440. While the property shows its age and could benefit from some modernisation, it is situated in a convenient location close to local amenities and transport links. The presence of a garden adds to its appeal. However, the list price is slightly above the average for the area, and comparable properties in the vicinity have varying price points. A thorough inspection is recommended to assess the property’s condition and value accurately.
Therefore, we give this property 7 / 10. *Disclaimer: This is our option and does constitute a recommendation or financial advice. Do your own research. *
- Price
- 7
- Condition
- 6
- Location
- 8
- Land
- 7
- Bedrooms
- 3
- Bathrooms
- 2
- Sqft (est)
- 2,080.00
- Lot (est)
- 947.00
The heatmap indicates the level of crime in the area. The color of the heatmap indicates the crime severity and recency.
Metrics Year-on-Year
- Average area value
- 510,714.00 £Increased by 18.39 %
- Est sale value
- 815,360.00 £Decreased by 17.99 %
- Average area rental value
- 1,850.00 £/moDecreased by 3.09 %
- Est letting value
- 2,080.00 £/moDecreased by 50.00 %
- Est rental Yield
- 4.35 %Decreased by 18.08 %
- Crime Rate
- 2.00 %Unchanged by 0.00 %
Agent Activity
Acorn created the listing.
Nearby Schools
| Name | Type | Ofsted | Distance |
|---|---|---|---|
| King Henry School | Academy Sponsor Led | 0.44 KM | |
| Christ Church (Erith) Cofe Primary School | Academy Sponsor Led | Outstanding | 0.45 KM |
| Woodside Academy | Academy Special Converter | 0.53 KM | |
| Normandy Children'S Centre | Children's Centre Linked Site | 0.69 KM | |
| Normandy Primary School | Academy Sponsor Led | Good | 0.73 KM |
Images
Nearby Streets
| Name | Average Price | Average Sqft | Distance |
|---|---|---|---|
| Elm Grove | £ 0 | 0 | 0.00 KM |
| Hardwick Court | £ 0 | 0 | 0.00 KM |
| Randall Close | £ 365,000 | 0 | 0.00 KM |
| Lambert Court | £ 0 | 0 | 0.00 KM |
| Halstead Road | £ 275,000 | 0 | 0.00 KM |
Nearby Transport
| Name | NLC | TLC | Distance |
|---|---|---|---|
| Erith | 5104 | ERH | 0.91 KM |
| Barnehurst | 5089 | BNH | 1.61 KM |
| Slade Green | 5154 | SGR | 2.40 KM |
| Belvedere | 5092 | BVD | 2.73 KM |
| Crayford | 5100 | CRY | 3.15 KM |
Nearby Listings
| Address | Price | Type | Score | Distance |
|---|---|---|---|---|
| Avenue Road, Erith | £ 650,000 | BUY | Unknown | 0.00 KM |
| Avenue Road, Erith | £ 475,000 | BUY | 7 / 10 | 0.00 KM |
| Avenue Road, Erith, DA8 3AZ | £ 650,000 | BUY | Unknown | 0.00 KM |
| Avenue Road, Bexleyheath, Kent, DA8 | £ 420,000 | BUY | Unknown | 0.10 KM |
| Lesney Park, Erith, DA8 | £ 850,000 | BUY | 6 / 10 | 0.12 KM |
Nearby Properties
| Address | Price | Distance |
|---|---|---|
| 146 Avenue Road | £ 568,000 | 0.01 KM |
| 148 Avenue Road | £ 180,000 | 0.01 KM |
| 134 Avenue Road | £ 355,000 | 0.01 KM |
| 152 Avenue Road | £ 370,000 | 0.01 KM |
| 150 Avenue Road | £ 360,000 | 0.01 KM |